This house on Funda: https://www.funda.nl/en/detail/koop/sommelsdijk/huis-schoolpad-3/43882726/

Description
In een gezellige buurt in Sommelsdijk, op loopafstand van het centrum, mogen we je deze leuke starterswoning aanbieden. De woning is voorzien van een gezellige woonkamer, een woonkeuken en drie slaapkamers. De voortuin is gelegen op het zuiden.
INDELING
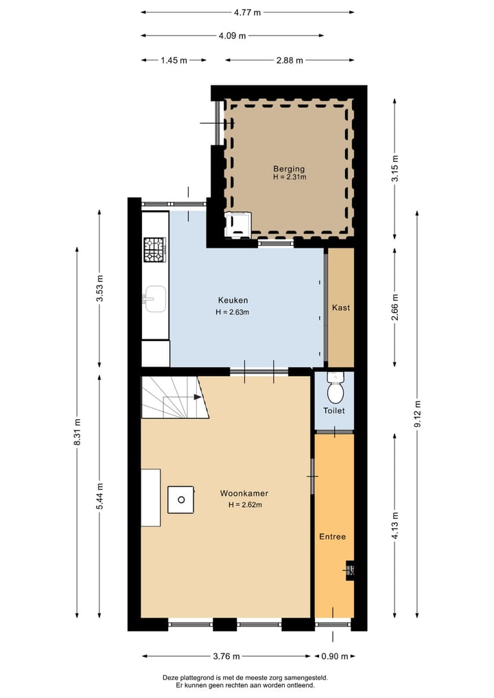
Begane grond:
De entreehal, met toilet, geeft toegang tot de woonkamer. De gezellige woonkamer is voorzien van een laminaatvloer met vloerverwarming, een schouw met sfeervolle houtkachel, een balkenplafond en de trap naar de eerste verdieping. De ramen zorgen voor veel natuurlijke lichtinval. Via openslaande deuren is de woonkeuken bereikbaar. De woonkeuken, met plavuizen vloer en vaste kast, is voorzien van opbergruimte en diverse apparatuur: kookplaat, afzuigkap, combi-oven, koel-/vriescombinatie en vaatwasser. Vanuit de keuken heb je toegang de de achtertuin.
Eerste verdieping:
De overloop, met vaste kast, geeft toegang tot de drie slaapkamers en een berging met daarin de CV-ketel. De slaapkamers zijn voorzien van een houten vloer. De slaapkamers aan de voorzijde zijn vergroot middels een dakkapel. De slaapkamer aan de achterzijde geeft toegang tot de badkamer en het balkon. De mooie, geheel betegelde badkamer is voorzien van een ligbad, een inloopdouche, een toilet, een wastafel en elektrische vloerverwarming. Het dakraam zorgt voor voldoende lichtinval.
Tuin, berging & balkon:
De voortuin, gelegen op het zuiden, is voorzien van bestrating en borders met diverse planten en struiken. Het is hier heerlijk vertoeven. Aan de achterzijde van de woning is de houten berging aangebouwd. Naast de berging is de poort waardoor je toegang hebt tot de achterdeur.
Het balkon, bereikbaar vanuit de slaapkamer aan de achterzijde, is gelegen op het noorden.
Bijzonderheden:
– Oplevering: in overleg
– Vloerverwarming in de woonkamer
– Elektrische vloerverwarming in de badkamer
– Voortuin, gelegen op het zuiden
– Autoluwe straat
Features
Transfer of ownership
- Original asking price
- € 275,000 kosten koper
- Last asking price
- € 250,000 kosten koper
- Asking price per m²
- € 3,378
- Status
- Sold
Construction
- Kind of house
- Single-family home, row house
- Building type
- Resale property
- Year of construction
- 1915
- Specific
- Protected townscape or village view (permit needed for alterations)
- Type of roof
- Gable roof covered with roof tiles
Surface areas and volume
- Areas
- Living area
- 74 m²
- Other space inside the building
- 9 m²
- Exterior space attached to the building
- 3 m²
- Plot size
- 89 m²
- Volume in cubic meters
- 264 m³
Layout
- Number of rooms
- 4 rooms (3 bedrooms)
- Number of bath rooms
- 1 bathroom and 1 separate toilet
- Bathroom facilities
- Walk-in shower, bath, toilet, and sink
- Number of stories
- 2 stories
- Facilities
- Flue
Energy
- Energy label
- C
- Insulation
- Double glazing and floor insulation
- Heating
- CH boiler, wood heater and partial floor heating
- Hot water
- CH boiler
- CH boiler
- Remeha (gas-fired combination boiler from 2015, in ownership)
Cadastral data
- SOMMELSDIJK B 4672
- Cadastral map
- Area
- 86 m²
- Ownership situation
- Full ownership
- SOMMELSDIJK B 2362
- Cadastral map
- Area
- 1 m²
- Ownership situation
- Held in common ownership
- SOMMELSDIJK B 4680
- Cadastral map
- Area
- 1 m²
- Ownership situation
- Held in common ownership
- SOMMELSDIJK B 4681
- Cadastral map
- Area
- 1 m²
- Ownership situation
- Held in common ownership
Exterior space
- Location
- In residential district
- Garden
- Back garden and front garden
- Front garden
- 24 m² (5.10 metre deep and 4.66 metre wide)
- Garden location
- Located at the south
- Balcony/roof terrace
- Balcony present
Storage space
- Shed / storage
- Attached wooden storage
Parking
- Type of parking facilities
- Public parking
Photos 25
© 2001-2025 funda
























