This house on Funda: https://www.funda.nl/en/detail/koop/son-en-breugel/huis-snijderstraat-2/43734654/

Description
INSTAPKLAAR & ENERGIELABEL A+! Deze praktische geheel gemoderniseerde en zeer goed geïsoleerde hoekwoning is gelegen in de gewilde wijk Oud-Breugel. Deze woning biedt u o.a. een fijne woonkeuken, 4 volwaardige slaapkamers, enorme, luxe badkamer en fraai aangelegde tuin met veranda. Qua duurzaamheid zijn onder andere de kozijnen vervangen, de vloer en het dak vernieuwd en geïsoleerd en 16 zonnepanelen geïnstalleerd. Deze woning is fraai gelegen nabij natuur, sportfaciliteiten, basisscholen, supermarkt, uitvalswegen etc!
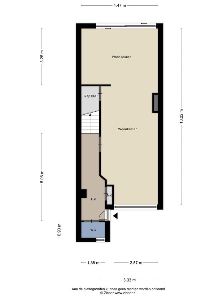
BEGANE GROND:
Hal voorzien van een moderne PVC-vloer met vloerverwarming die beide doorlopen over de begane grond. Vernieuwde, zeer uitgebreide meterkast (circa 2021) voorzien van 22 groepen, 6 aardlekschakelaars; glasvezel aansluiting aanwezig. Toilet (circa 2021) voorzien van wandcloset, fonteintje en mechanische ventilatie. Riante woonkamer met open keuken (samen circa 37 m²) voorzien van grote raampartijen voor veel natuurlijk lichtinval. Trapkast met elektra en unit vloerverwarming. Fijne woonkeuken voorzien van een hoek-keukenopstelling, schuifpui naar de achtertuin en de volgende inbouwapparatuur: inductiekookplaat, afzuigkap, oven, vaatwasmachine, koel-/vriescombinatie en een close-in-boiler.
EERSTE VERDIEPING:
Overloop voorzien van moderne laminaatvloer (circa 2022) die doorloopt in de slaapkamers. Royale slaapkamer 1 (achterzijde; afmetingen circa 4,48 x 3,05 m). Slaapkamer 2 (voorzijde; afmetingen circa 4,00 x 2,19 m). Bijzonder royale en luxe badkamer uit circa 2021 (afmetingen maar liefst ca 6,01 x 2,15 m!) voorzien van luxe inloopdouche met regendouche, duoligbad, dubbele wastafel met meubel, elektrische vloerverwarming, designradiator, mechanische ventilatie en aansluitingen wasapparatuur. Separaat toilet (circa 2021) voorzien van wandcloset en mechanische ventilatie.
TWEEDE VERDIEPING:
Overloop voorzien van moderne laminaatvloer (circa 2022) die doorloopt in de slaapkamers. Slaapkamer 3 (achterzijde; afmetingen circa 4,35 x 2,53 m) voorzien van dakkapel (circa 2021), inbouwspotjes, designradiator en mechanische ventilatie. Slaapkamer 2 (voorzijde) voorzien van dakkapel, berging achter schot, airco (2017) en mechanische ventilatie. Technische ruimte voorzien van HR-combiketel (ATAG, circa 2021), aansluitingen wasapparatuur, unit mechanische ventilatie (circa 2021) en unit tbv de zonnepanelen.
TUIN & BERGING:
Fraai aangelegde voortuin. Omheinde achtertuin voorzien van sierbestrating, gazon, buitenkraantje en achterom naast de woning. Fijne aluminium terrasoverkapping aan de woning (afmetingen circa 4,74 x 3,53 m). Achterin de tuin vindt u nog een sfeervolle veranda waar u heerlijk kunt zitten! Berging (afmetingen circa 4,66 x 2,20 m) voorzien van elektra, 2e unit zonnepanelen en 2e achterom.
ALGEMEEN:
- Deze woning is de afgelopen jaren grootschalig gemoderniseerd en verduurzaamd!
- Qua verduurzaming zijn de volgende maatregelen genomen: pannen dak vernieuwd en aan de buitenzijde voorzien van nieuwe isolerende dakplaten (2021); 16 zonnepanelen (6 op de berging in 2021 en 10 op de woning in 2023); plaatsing digitale (slimme) thermostaatkranen op de radiatoren (2023); plaatsing moderne HR-combiketel (2021); kozijnen, deuren en schuifpui vervangen door aluminium kozijnen met HR++ beglazing (2021 en 2024); begane grondvloer verwijderd en nieuwe geïsoleerde betonvloer aangelegd met vloerverwarming (circa 2018); spouwmuurisolatie kopgevel (circa 2013); opmetselen en isoleren voor- en achtergevel (circa 2012).
- Daarnaast zijn de afgelopen jaren o.a. de volgende moderniseringen uitgevoerd: plaatsing 2e dakkapel aan de achterzijde (2021); groepenkast vernieuwen en uitbreiden elektra (2021); toiletten vernieuwen (2021); aanbrengen mechanische ventilatie (2021); vernieuwen badkamer (2021); laminaatvloer 1e en 2e verdieping (2022); diverse keukenapparatuur vernieuwd (2021, 2022, 2023); schoorsteen gevoegd (2019); PVC-vloer begane grond (2018); keuken vernieuwd (2015).
- De woning is voorzien van een nieuw energielabel A+, geldig tot 2034!
- Praktisch geheel gemoderniseerde en instapklare woning in de zeer gewilde wijk Oud-Breugel!
- Koper dient er rekening mee te houden dat er in de koopovereenkomst zoals gebruikelijk een bankgarantie / waarborgsom van 10% van de koopsom wordt opgenomen.
- Woonoppervlakte circa 126 m².
- Inhoud woonhuis circa 420 m³.
- Perceeloppervlakte 231 m².
- Bouwjaar circa 1968.
- Aanvaarding in overleg.
Features
Transfer of ownership
- Last asking price
- € 450,000 kosten koper
- Asking price per m²
- € 3,571
- Status
- Sold
Construction
- Kind of house
- Single-family home, corner house
- Building type
- Resale property
- Year of construction
- 1968
- Type of roof
- Gable roof covered with roof tiles
Surface areas and volume
- Areas
- Living area
- 126 m²
- Exterior space attached to the building
- 17 m²
- External storage space
- 10 m²
- Plot size
- 231 m²
- Volume in cubic meters
- 420 m³
Layout
- Number of rooms
- 5 rooms (4 bedrooms)
- Number of bath rooms
- 1 bathroom and 2 separate toilets
- Bathroom facilities
- Double sink, walk-in shower, bath, underfloor heating, and washstand
- Number of stories
- 3 stories
- Facilities
- Air conditioning, alarm installation, optical fibre, mechanical ventilation, passive ventilation system, sliding door, TV via cable, and solar panels
Energy
- Energy label
- A+
- Insulation
- Roof insulation, double glazing, energy efficient window, insulated walls, floor insulation and completely insulated
- Heating
- CH boiler and partial floor heating
- Hot water
- CH boiler
- CH boiler
- Atag HR-combiketel (gas-fired combination boiler from 2021, in ownership)
Cadastral data
- SON EN BREUGEL E 111
- Cadastral map
- Area
- 231 m²
- Ownership situation
- Full ownership
Exterior space
- Location
- Alongside a quiet road, in wooded surroundings and in residential district
- Garden
- Back garden and front garden
- Back garden
- 104 m² (16.00 metre deep and 6.50 metre wide)
- Garden location
- Located at the east with rear access
Storage space
- Shed / storage
- Detached brick storage
- Facilities
- Electricity
Parking
- Type of parking facilities
- Public parking
Photos 41
© 2001-2025 funda








































