This house on Funda: https://www.funda.nl/en/detail/koop/sprang-capelle/huis-kerkstraat-20/89545585/

Kerkstraat 205161 ED Sprang-CapelleSprang
€ 575,000 k.k.
Eye-catcherHalfvrijstaande jaren 30 woning met bedrijfshal!
Description
Halfvrijstaande woning met bedrijfshal
Op een mooie en goed bereikbare locatie aan de doorgaande weg van Sprang-Capelle staat deze karakteristieke halfvrijstaande woning met ruime bedrijfshal. De woning is netjes gedateerd en heeft volop authentieke details en sfeer, waaronder glas-in-loodramen en een terrazzo vloer in de hal.
De combinatie van wonen en werken maakt dit object uniek: naast het wooncomfort biedt de grote hal volop mogelijkheden voor opslag, werkplaats of hobbyruimte.
Begane grond:
Centrale hal met trapopgang naar de verdieping, voorkamer/werkkamer, keuken met rechte opstelling voorzien van inbouwapparatuur, woonkamer met schouw, toilet, ruime bijkeuken met wasmachineaansluitingen en CV-opstelling. Aansluitend bevindt zich de badkamer met tweede toilet, douche en wastafel. Aan de achterzijde geven authentieke dubbele deuren toegang tot de tuin. Vanuit buiten is ook de inpandige bergruimte bereikbaar.
Verdieping:
Overloop met toegang tot drie slaapkamers en een inloopkast/berging. Via een loopdeur is er toegang tot het dakterras.
Bergzolder:
Bergzolder bereikbaar middels een vlizotrap.
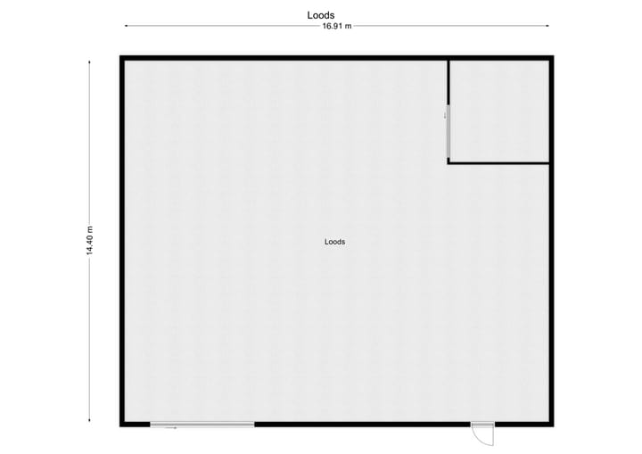
Bedrijfshal
Achter op het perceel staat de royale bedrijfshal van ca. 243 m². Deze is bereikbaar via de oprit en beschikt over een grote schuifdeur. De hal is voorzien van krachtstroom en een heater (verwarming).
Tuin
Het buitenterrein aan de voorzijde van het pand is ingericht met bestrating en hoort eveneens bij het perceel. Links van de woning bevindt zich de oprit met toegang naar de hal. De groene tuin is ingericht met verschillende terrassen, sierbestrating, gazon en plantenborders. Er is op elk moment van de dag een plek om van de zon te genieten. Achter het pand is het terrein deels verhard en is er volop ruimte voor buitenactiviteiten. Parkeren kan op eigen terrein en in de directe omgeving.
Omgeving
De woning ligt in een straat met vergelijkbare bebouwing. In de directe omgeving zijn alle dagelijkse voorzieningen aanwezig, zoals winkels, scholen en sportfaciliteiten. Ook liggen de Loonse en Drunense Duinen en de Efteling op fietsafstand. De woning heeft een gunstige ligging nabij de A59 met snelle verbinding naar Waalwijk, Tilburg en ’s-Hertogenbosch.
Bijzonderheden
• Bouwjaar woning circa 1930, bouwjaar bedrijfshal circa 1980.
• De constructie van de woning bestaat uit een betonvloer met daarop in spouw opgetrokken metselwerk en een deels pannen- en deels bitumendakbedekking. De verdiepingsvloeren zijn van hout.
• De bedrijfshal beschikt over een betonnen vloer, gemetselde muren en een bitumendak (vernieuwd in 2023).
• Energielabel woning: klasse E.
• Gezien het bouwjaar zal in de koopovereenkomst een ouderdomsclausule worden opgenomen.
• In de koopakte zal een waarborgsom/bankgarantie van 10% van de koopsom worden gesteld, te voldoen door koper binnen 6 tot 8 weken na het tot stand komen van de koopovereenkomst.
• Aanvaarding in overleg, op korte termijn mogelijk.
Features
Transfer of ownership
- Listed since
- Acceptance
- Available in consultation
- Asking price
- € 575,000 kosten koper
- Asking price per m²
- € 5,227
- Status
- Available
Construction
- Kind of house
- Single-family home, semi-detached residential property
- Building type
- Resale property
- Year of construction
- 1930
- Type of roof
- Gable roof covered with roof tiles
- Quality marks
- Energie Prestatie Advies
Surface areas and volume
- Areas
- Living area
- 110 m²
- Other space inside the building
- 29 m²
- External storage space
- 243 m²
- Plot size
- 705 m²
- Volume in cubic meters
- 565 m³
Layout
- Number of rooms
- 5 rooms (4 bedrooms)
- Number of bath rooms
- 1 bathroom and 1 separate toilet
- Bathroom facilities
- Shower, toilet, and sink
- Number of stories
- 2 stories
Energy
- Energy label
- E
- Insulation
- Partly double glazed
- Heating
- CH boiler
- Hot water
- CH boiler
- CH boiler
- Nefit (gas-fired combination boiler from 2014, in ownership)
Cadastral data
- SPRANG C 3376
- Cadastral map
- Area
- 455 m²
- SPRANG C 1085
- Cadastral map
- Area
- 250 m²
Exterior space
- Garden
- Back garden
- Back garden
- 192 m² (17.50 metre deep and 11.00 metre wide)
- Garden location
- Located at the north with rear access
Parking
- Type of parking facilities
- Parking on private property and public parking
Commercial property
- Commercial property
- 244 m², detached
Photos 45
Floorplans 3
© 2001-2025 funda















































