This house on Funda: https://www.funda.nl/en/detail/koop/stiens/appartement-appartement-16/43701355/

Description
Burmaniastate
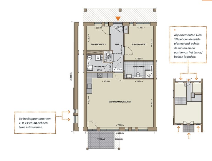
Appartement 16 - Type A
Het gemak en het woongenot van alles gelijkvloers in een riant, eigentijds appartement, plus iedere dag weer de sfeer en de uitstraling van een chic buitenhuis. Op een ‘landgoed’ met een heel oude naam: Burmaniastate.
Klassieke binnentuin, bomen, water en weidevogels rondom. Op loopafstand de dorpskerk op een hoge terp. Naar hartje
Leeuwarden in ietsje minder dan een kwartier.
De 19 moderne appartementen zelf zijn bovengemiddeld licht en ruim. Allemaal op een eigen terrein, bereikbaar
via een karakteristieke smeedijzeren toegangspoort. Levensloopbestendig, praktisch, buitengewoon sfeervol wonen.
Koop je op deze unieke plek een appartement, dan ben je verzekerd van een waardevaste, altijd gewilde woning. Goed om te weten, al wil je er vermoedelijk de rest van je leven niet meer weg.
Als bewoner van Burmaniastate mag je rekenen op veel woongenot:
- Royale koopappartementen met 2 slaapkamers
- Living: riante open ruimte
- Zonnig balkon of terras
- Alles gelijkvloers, dus levensloopbestendig
- Parkeren op eigen terrein met toegangspoort, voorbereiding laadpaal
- Zonwering op de zuidwest en zuidoost zijde
- Eigen berging (5,0 m2) met elektriciteit
- Energiezuinig, onder andere dankzij de zonnepanelen
- Lift
- Wonen op een fraaie, historische plek
- Architectuur die mooi aansluit bij het rijke verleden
- Centrum Stiens op loopafstand
Kijk op de projectwebsite voor meer informatie of neem contact op met Makelaardij Hoekstra of Germeraad Makelaars
Features
Transfer of ownership
- Listed since
- Acceptance
- Available in consultation
- Asking price
- € 382,125 vrij op naam
- Asking price per m²
- € 4,294
- Status
- Under option
Construction
- Type apartment
- Galleried apartment (apartment)
- Building type
- New property
- Year of construction
- 2025
- Quality marks
- Woningborg Garantiecertificaat
Surface areas and volume
- Areas
- Living area
- 89 m²
- Volume in cubic meters
- 280 m³
Layout
- Number of rooms
- 4 rooms (2 bedrooms)
- Number of bath rooms
- 1 bathroom and 1 separate toilet
- Bathroom facilities
- Shower, toilet, and sink
- Number of stories
- 1 story
- Facilities
- Mechanical ventilation and solar panels
- Located at
- 1st floor
Energy
- Energy label
- A+++
- Insulation
- Completely insulated
- Heating
- Complete floor heating, heat recovery unit and heat pump
- Hot water
- Electrical boiler
Exterior space
- Location
- In centre
- Balcony/roof terrace
- Balcony present
Storage space
- Shed / storage
- Attached wooden storage
Garage
- Type of garage
- Parking place
Parking
- Type of parking facilities
- Parking on gated property
Photos 8
© 2001-2025 funda







