This house on Funda: https://www.funda.nl/en/detail/koop/tegelen/bouwgrond-roermondseweg-53/89449052/

Roermondseweg 535931 EB TegelenTegelen-Centrum
€ 158,000 k.k.
Description
Nog te bouwen levensloopbestendige woning met garage! - Bouwkavel met vergund bouwplan €158.000 k.k.
Altijd al je eigen huis willen bouwen, maar geen zin in het gedoe van vergunningen en lange wachttijden? Dit is jouw kans! Dit halfvrijstaande nieuwbouw huis met garage heeft al een vergunning en wacht alleen nog op jouw persoonlijke touch. Hier creëer je jouw droomwoning precies zoals jij het wilt, met een levensloopbestendige indeling zoals een slaapkamer op de begane grond en een garage met eigen oprit.
Waarom is dit jouw perfecte woning?
- Gloednieuw en volledig naar eigen wens af te werken
- Tuingerichte woonkamer met openslaande tuindeuren naar de tuin
- Open keuken, ideaal voor gezellige avonden en direct contact met medebewoners
- Slaapkamer op de begane grond, perfect voor levensloopbestendig wonen
- Nog vrij in te delen eerste verdieping met mogelijkheid voor twee slaapkamers en een badkamer
- Extra zolderverdieping waar eventueel een vierde slaapkamer gerealiseerd kan worden
- Vrij in te richten tuin met volop ruimte en prachtig vrij uitzicht
- Eigen garage voor opslag of een hobbyruimte of eventueel een badkamer
De voorlopige indeling van de woning is al volgt ingetekend:
Begane grond
Je komt binnen in een hal met toilet en trapopgang. De woonkamer heeft openslaande tuindeuren waardoor je een mooie verbinding met buiten hebt. Aan de achterzijde staat ook de woonkamer in open verbinding met de keuken. Dit biedt volop mogelijkheden om deze naar eigen wens in te richten. Daarnaast bevindt zich op de begane grond een ruime slaapkamer die via de hal bereikbaar is, ideaal voor gelijkvloers wonen of als werkkamer.
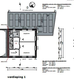
Eerste verdieping
Deze verdieping is nog vrij in te delen met ruimte voor twee grote slaapkamers en een badkamer. Wil je liever een inloopkast of een extra werkkamer? Hier kan het!
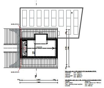
Tweede verdieping
De zolder biedt nóg meer mogelijkheden! Hier kun je bijvoorbeeld een extra slaapkamer, hobbyruimte of thuiswerkplek creëren.
Buitenruimte
De tuin is vrij aan te leggen, zodat jij je eigen buitenparadijs kunt ontwerpen. Geniet van rust, ruimte en een tuin op het zuidoosten.
Bouw jouw toekomst hier!
Dit huis biedt alles wat je zoekt in een nieuwbouwwoning maar dan zonder het lange traject van vergunningen en wachten. Zie jij jezelf hier al wonen? Neem contact op en ontdek de mogelijkheden!
Features
Transfer of ownership
- Listed since
- Acceptance
- Available in consultation
- Asking price
- € 158,000 kosten koper
- Status
- Available
Construction
- Type of property
- Building plot
- Ready for construction
- Yes
Layout
- Plot size
- 274 m²
Cadastral data
- TEGELEN A 9321
- Cadastral map
- Area
- 200 m²
- Ownership situation
- Full ownership
Exterior space
- Location
- In residential district and unobstructed view
Photos 12
© 2001-2025 funda











