This house on Funda: https://www.funda.nl/en/detail/koop/terneuzen/huis-voltastraat-4/43892810/

Description
Welkom in de woning aan de Voltastraat 4 in Terneuzen.
Zoekt u een ruime 2^1 kapwoning met onder andere zonnepanelen, airco, kunststof kozijnen met HR++ glas, een overkapping en een extra brede garage? Dan is een bezichtiging van dit huis zeker de moeite waard!
Deze instapklare woning met ruime tuin, overkapping en garage is gelegen op 250 m² eigen grond en ligt op wandelafstand van sportvelden en de Otheense kreek.
Met een woonoppervlakte van 115 m² geniet u hier iedere dag van de binnenruimte.
+ instapklaar
+ 4 slaapkamers
+ extra brede garage
+ overkapping
+ ruim perceel
+ nieuw gevoegd (2022)
+ airco (koelen / verwarmen)
+ kunststof kozijnen met HR++ glas
+ spouwmuurisolatie (2023)
+ energievriendelijk met 10 zonnepanelen
+ op loopafstand van de Otheense Kreek
Begane grond:
Entree:
Via de voordeur komt u in de ruime hal.
Hal:
De hal met laminaatvloer is voorzien van inbouwspotjes. De hal biedt toegang tot het moderne toilet, trapkast, woonkamer en trap naar de 1e verdieping.
Woonkamer:
Deze woning heeft een heerlijk lichte woonkamer met laminaatvloer en airconditioning (koelen / verwarmen). In de woonkamer treft u een sfeervolle schouw met houtkachel en openslaande tuindeuren.
Keuken:
De moderne keuken met laminaatvloer is uitgevoerd in hoogglans zwart met een natuurstenen blad. De keuken is voorzien van inbouwapparatuur: inductie kookplaat, afzuigkap, combi-oven, koelkast, diepvries en een vaatwasser. Vanuit de keuken heeft u toegang tot de achtertuin.
Bijzonderheden begane grond:
* voorzien van een laminaatvloer
* modern toilet voorzien van een tegelvloer
* volledig voorzien van kunststof kozijnen m.u.v. tuindeuren
* volledig voorzien van HR++ glas
* volledig voorzien van gestuukte muren en plafonds
* schouw met houtkachel
* airconditioning (koelen / verwarmen) (2023)
* meterkast voorzien van 9 groepen, 2 aardlekschakelaars (2022)
* moderne keuken met inbouwapparatuur
* traprenovatie
* modern deurbeslag
* nieuwe schakelaars met dimlicht (2022)
* muurisolatie (2023)
* gevel nieuw voegwerk (2022)
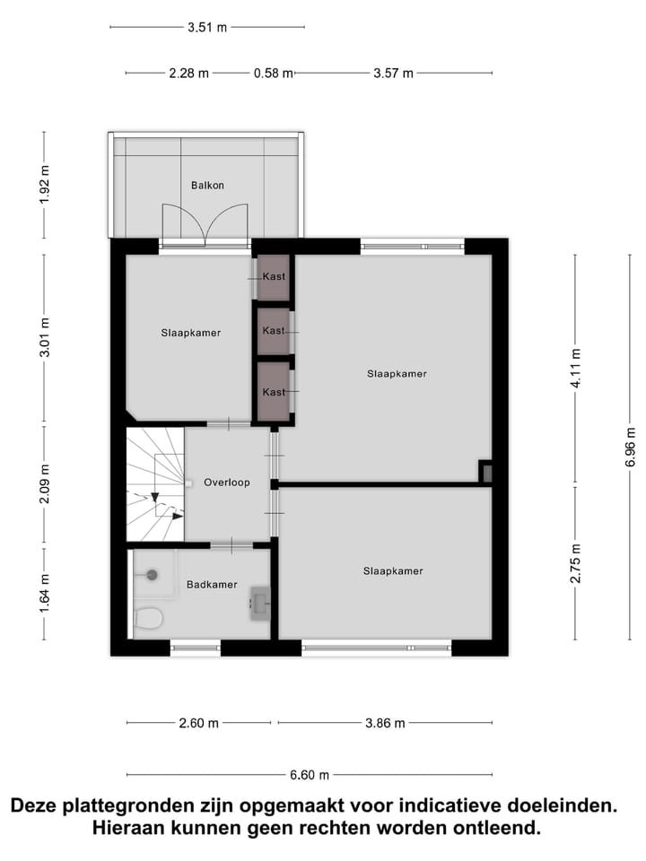
1e verdieping:
Via de overloop met laminaatvloer heeft u toegang tot de drie slaapkamers, de badkamer en de trap naar de 2e verdieping.
Slaapkamers:
Er zijn drie slaapkamers met een laminaatvloer waarvan één slaapkamer beschikt over een balkon en een inbouwkast en één slaapkamer beschikt over een dubbele inbouwkast en airconditioning (koelen / verwarmen). Alle slaapkamers bieden grote raampartijen voor veel lichtinval.
Badkamer:
De badkamer is voorzien van een tegelvloer, inbouwspotjes, een inloopdouche, wastafelmeubel en een hangtoilet. De kranen zijn in de wanden geïntegreerd wat een luxe uitstraling aan de badkamer geeft.
Bijzonderheden 1e verdieping:
* voorzien van een laminaatvloer
* badkamer voorzien van een tegelvloer
* volledig voorzien van kunststof kozijnen
* volledig voorzien van HR++ glas
* volledig voorzien van gestuukte muren
* 3 slaapkamers
* airconditioning (koelen / verwarmen) (2023)
* balkon
* moderne badkamer
* traprenovatie
* modern deurbeslag
* nieuwe schakelaars met dimlicht (2022)
* muurisolatie (2023)
* gevel nieuw voegwerk (2022)
2e verdieping:
Via de trap komt u op de 2e verdieping. De overloop met laminaatvloer biedt toegang tot de cv-/bergruimte en de 4e slaapkamer
Slaapkamer:
De 4e slaapkamer is voorzien van een laminaatvloer en een raam voor natuurlijke lichtinval. Er is veel bergruimte achter de knieschotten.
Bijzonderheden 2e verdieping:
* volledig voorzien van een laminaatvloer
* voorzien van kunststof kozijn met HR++ glas
* volledig voorzien van gestuukte muren
* 4e slaapkamers
* veel bergruimte
* modern deurbeslag
* nieuwe schakelaars met dimlicht (2022)
* cv Intergas (2023)
* wasmachine aansluiting
* omvormer zonnepanelen
* 10 zonnepanelen 3750 Wp
Tuin:
Er is een ruime, onderhoudsvriendelijke tuin met een overkapping, dubbele poort en een duurzame schutting. De tuin ligt op het noordwesten en biedt zeer veel privacy. Er is een vrij achterom.
Hier kunt u alle seizoenen heerlijk genieten van het buitenleven!
Bijzonderheden tuin:
* ruim
* onderhoudsvriendelijk
* veel privacy
* brede garage
* overkapping (2023)
* vrij achterom
* afwatering ssysteem
Garage:
De extra brede garage met elektrische sectionaaldeur biedt veel (berg)ruimte en voldoende ruimte voor een auto. De garage is voorzien van elektriciteit en water. In de garage is de opstelling voor de wasmachine en droger.
* afmeting garage: 3,99 m x 6,04 m
* oppervlakte garage: 24 m²
Bijzonderheden garage:
* elektriciteit
* water
* elektrische sectionaaldeur
* veel ruimte
* wasmachine en wasdroger aansluiting
Houthok:
In de tuin is een praktisch houthok voor het opslaan van hout.
* afmeting tuinhuis: 0,98 m x 3,99 m
Overkapping:
In de overkapping geniet u heel het seizoen van het heerlijke buitenleven. De overkapping is voorzien van elektriciteit en verlichting.
* afmeting overkapping: 5,81 m x 2,86 m
* oppervlakte overkapping: 17 m²
Bijzonderheden:
Deze instapklare 2^1 kapwoning ligt in een rustige woonwijk van Terneuzen op wandelafstand van sportvelden, de Otheense kreek met jachthaventje, basis- en middelbare school. Tevens op fietsafstand van verschillende winkelcentra, theater, bioscoop, skihal en overige sportaccommodaties.
Met de auto bent u snel in Gent, Brugge, Antwerpen, Middelburg, Goes of bij het Noordzeestrand.
De Westerscheldetunnel is tolvrij per 1-1-2025 (muv vrachtverkeer)
Heeft u nog vragen? Of wilt u een bezichtiging?
Bel, app, mail of kom gewoon langs!
Nog een prettige dag!
GeuS uw makelaar
Features
Transfer of ownership
- Last asking price
- € 350,000 kosten koper
- Asking price per m²
- € 3,043
- Status
- Sold
Construction
- Kind of house
- Single-family home, double house
- Building type
- Resale property
- Year of construction
- 1961
- Type of roof
- Gable roof covered with other and roof tiles
- Quality marks
- Energie Prestatie Advies
Surface areas and volume
- Areas
- Living area
- 115 m²
- Exterior space attached to the building
- 7 m²
- External storage space
- 29 m²
- Plot size
- 250 m²
- Volume in cubic meters
- 412 m³
Layout
- Number of rooms
- 5 rooms (4 bedrooms)
- Number of bath rooms
- 1 bathroom and 1 separate toilet
- Bathroom facilities
- Walk-in shower, toilet, and washstand
- Number of stories
- 3 stories
- Facilities
- Air conditioning, skylight, optical fibre, rolldown shutters, flue, and solar panels
Energy
- Energy label
- C
- Insulation
- Energy efficient window and insulated walls
- Heating
- CH boiler
- Hot water
- CH boiler
- CH boiler
- Intergas (gas-fired combination boiler from 2023, in ownership)
Cadastral data
- TERNEUZEN E 1737
- Cadastral map
- Area
- 250 m²
- Ownership situation
- Full ownership
Exterior space
- Location
- Alongside a quiet road and in residential district
- Garden
- Back garden and front garden
- Back garden
- 109 m² (11.20 metre deep and 9.75 metre wide)
- Garden location
- Located at the northwest with rear access
Garage
- Type of garage
- Detached brick garage
- Capacity
- 1 car
- Facilities
- Electrical door, electricity and running water
- Insulation
- No insulation
Parking
- Type of parking facilities
- Parking on private property and public parking
Photos 36
© 2001-2025 funda



































