This house on Funda: https://www.funda.nl/en/detail/koop/terneuzen/huis-waterlanden-57/43850446/

Description
Welkom in de woning aan de Waterlanden 57 in Othene, Terneuzen.
Zoekt u een jonge woning met een heerlijke serre? Dan is een bezichtiging van deze tussenwoning in Othene zeker de moeite waard!
Deze energiezuinige woning met grote houten berging en tuin op het westen is gelegen op 134 m² eigen grond.
Hier geniet u iedere dag van luxe en de heerlijke ruimte! Deze woning heeft namelijk een woonoppervlakte van 121 m².
+ jonge woning
+ gestuukte muren (2024)
+ energiezuinig
+ gasloos
+ warmtepomp
+ 19 zonnepanelen
+ energielabel A
Indeling:
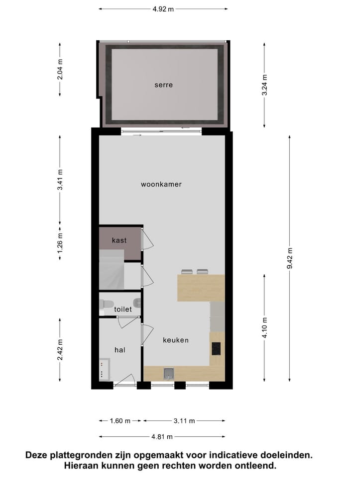
Hal:
De hal heeft een moderne tegelvloer, meterkast en toilet.
Woonkamer:
De ruime woonkamer heeft een grote trapkast, schuifpui naar de serre, een moderne tegelvloer en veel lichtinval door de grote raampartijen.
Keuken:
De moderne keuken is voorzien van een praktische bar met betonlook aanrechtblad en inbouwapparatuur: vaatwasser, koelkast, vriezer, combi-oven, oven, inductie kookplaat en een afzuigkap. De keuken heeft een tegelvloer en u kijkt uit over de voortuin.
Serre:
Via de woonkamer en heeft u toegang tot de serre. De serre is voorzien van een tegelvloer, elektrisch screen en schuifdeuren naar de achtertuin. Via de serre heeft u toegang tot de achtertuin.
* afmeting: 4,92 m x 3,24 m
* oppervlakte: 15,90 m²
Bijzonderheden begane grond:
* volledig voorzien van een tegelvloer (2020)
* volledig voorzien van vloerverwarming m.u.v. serre (2020)
* volledig voorzien van kunststof kozijnen (2020)
* volledig voorzien van draai-kiepramen (2020)
* volledig voorzien van HR++ glas (2020)
* volledig voorzien van gestuukte muren (2024)
* keuken (2020)
* meterkast met 15 groepen en krachtstroom
* voorzien van vloerisolatie
* voorzien van muurisolatie
1e verdieping:
Overloop:
Via de trap komt u op de ruime overloop met laminaatvloer.
Slaapkamers:
Er zijn twee slaapkamers met een laminaatvloer en veel lichtinval door de sfeervolle raampartijen met draai- kiepsluiting. De ouderslaapkamer bevindt zich aan de achterzijde en is heerlijk ruim.
Badkamer:
De moderne badkamer is voorzien van een ruime douche, wastafelmeubel, hangtoilet, vloerverwarming en elektrische handdoekradiator.
Technische ruimte / wasruimte
Hier bevindt zich de warmtepomp, 180 liter boiler, omvormer van de zonnepanelen en witgoed aansluitingen.
Bijzonderheden 1e verdieping:
* grotendeels voorzien van laminaatvloer (2020)
* badkamer en wasruimte voorzien van een tegelvloer (2020)
* volledig voorzien van kunststof kozijnen (2020)
* volledig voorzien van draai-kiepramen (2020)
* volledig voorzien van HR++ glas (2020)
* deels voorzien van elektrische rolluiken (2020)
* volledig voorzien van gestuukte muren (2024)
* volledig voorzien van elektrische radiatoren m.u.v. badkamer (2020)
* badkamer voorzien van vloerverwarming en elektrische handdoekradiator (2020)
* badkamer (2020)
* mechanische ventilatie (2020)
* elektrische boiler 180 liter (2020)
* warmtepomp Inventum ecolution modulaire (2020)
* omvormer zonnepanelen (2020)
* voorzien van muurisolatie
2e verdieping:
Overloop:
Via de trap kom je op de ruime overloop met laminaatvloer.
Slaapkamers:
Er zijn twee ruime slaapkamers met een laminaatvloer en veel lichtinval door de Velux dakramen.
Bijzonderheden 2e verdieping:
* volledig voorzien van een laminaatvloer (2020)
* volledig voorzien van hardhouten Velux dakramen
* volledig voorzien van HR++ glas
* volledig voorzien van gestuukte muren (2024)
* volledig voorzien van elektrische radiatoren (2020)
* 19 zonnepanelen (2020)
* voorzien van muurisolatie
* voorzien van dakisolatie
Tuin:
Er is een zonnige tuin gelegen op het westen met een grote berging en vrij achterom.
U kunt hier alle seizoenen van het buitenleven genieten!
Bijzonderheden tuin:
* vrij achterom
* duurzame schutting
* buitenkraantje
* grote berging
Berging:
De houten berging is voorzien van elektriciteit en een EPDM dakbedekking.
Bijzonderheden berging:
* berging (2020)
* afmeting: 1,88 m x 2,80 m
* oppervlakte: 5 m²
Bijzonderheden:
Bent u op zoek naar een jonge woning met een heerlijke serre? Dan is dit misschien wel uw droomhuis. Deze woning ligt in de populaire woonwijk Othene. In deze kindvriendelijke woonwijk van Terneuzen zijn 2 basisscholen, bakker, kapper, supermarkt en een eeterij aanwezig.
De woonwijk "Othene" ligt enerzijds op fietsafstand van verschillende winkelcentra, theater, bioscoop, skihal, sportaccommodaties en middelbare scholen. Tevens ligt het op wandelafstand van de Zeeuwse polders en de Westerschelde waar u de rust kunt vinden.
Met de auto bent u snel in Antwerpen, Gent, Brugge, Middelburg, Goes of bij het Noordzeestrand.
Heeft u nog vragen? Wilt u extra informatie? Of wilt u een bezichtiging?
Bel, app, mail of kom gewoon langs!
Nog een prettige dag!
GeuS uw makelaar
Features
Transfer of ownership
- Last asking price
- € 399,000 kosten koper
- Asking price per m²
- € 3,298
- Status
- Sold
Construction
- Kind of house
- Single-family home, row house
- Building type
- Resale property
- Year of construction
- 2020
- Type of roof
- Gable roof covered with other and roof tiles
- Quality marks
- Energie Prestatie Advies
Surface areas and volume
- Areas
- Living area
- 121 m²
- Other space inside the building
- 16 m²
- External storage space
- 11 m²
- Plot size
- 134 m²
- Volume in cubic meters
- 445 m³
Layout
- Number of rooms
- 6 rooms (4 bedrooms)
- Number of bath rooms
- 1 bathroom and 1 separate toilet
- Bathroom facilities
- Shower, toilet, underfloor heating, and washstand
- Number of stories
- 3 stories
- Facilities
- Skylight, optical fibre, mechanical ventilation, sliding door, and solar panels
Energy
- Energy label
- A
- Insulation
- Roof insulation, energy efficient window, insulated walls, floor insulation and completely insulated
- Heating
- Electric heating, partial floor heating and heat pump
- Hot water
- Electrical boiler
Cadastral data
- TERNEUZEN T 2643
- Cadastral map
- Area
- 134 m²
- Ownership situation
- Full ownership
Exterior space
- Location
- Alongside a quiet road and in residential district
- Garden
- Back garden and front garden
- Back garden
- 65 m² (13.00 metre deep and 5.00 metre wide)
- Garden location
- Located at the west with rear access
Storage space
- Shed / storage
- Detached wooden storage
- Facilities
- Electricity
- Insulation
- No insulation
Parking
- Type of parking facilities
- Public parking
Photos 40
© 2001-2025 funda







































