This house on Funda: https://www.funda.nl/en/detail/koop/tilburg/appartement-korvelseweg-31/43831089/

Korvelseweg 315025 JB TilburgSint Anna Zuid
€ 215,000 k.k.
Description
Spacious Corner House with Endless Possibilities on the Vibrant Korvelseweg!
Are you looking for a versatile home with room for your own vision?
This corner house on the lively Korvelseweg offers countless possibilities and could soon be yours!
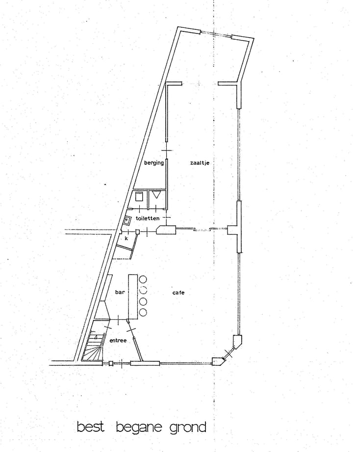
With a total area of approximately 97 m², this property boasts a generous living space and multiple rooms.
Layout
On the ground floor, you'll find a spacious living room with plenty of natural light, a compact kitchenette, and a storage room/utility space that can easily be converted into additional living space. Additionally, there's a covered area of approximately 18 m², perfect for storage, a hobby space, or even a cozy urban garden.
With two toilets and a kitchen, this property offers great potential.
Location & Opportunities
Situated on the popular Korvelseweg, in a vibrant neighborhood with shops, restaurants, and various amenities, you’ll benefit from a lively atmosphere and a prime central location. This makes the property ideal for private residence or as an investment with future potential.
An exciting feature is that the space is currently used as a retail unit. However, the zoning plan (see below) allows for conversion into a residential home! You will need to have a discussion with the upstairs neighbor first, as you will be part of a VvE (Owners' Association).
Are you ready to turn this property into your dream home? Contact us now for a viewing!
Zoning: Centrum-Lint
The land designated as "Centrum - Lint" is intended for:
- Businesses listed in **Annex 1 Business Activities Function Mix** under categories A and B, excluding:
- Businesses as defined in Article 41 of the **Noise Pollution Act** and **Annex 1D** of the **Environmental Law Decree**
- **Retail**, as long as it aligns with the provisions listed in Annex 1
- **Offices**, up to a maximum of **250 m² gross floor area per unit**, with a **total maximum of 700 m² per zoning lot**
- **Social facilities**, excluding noise-sensitive institutions such as hospitals, medical clinics, or similar healthcare facilities
- **Recreational facilities**, **sports**, **services**, and **hospitality**, as specified in Annex 1
- **Residential use**, including **both apartments and ground-level homes**
- **Bed & Breakfast**, with a maximum of **2 guest rooms**
**Measurement Information:**
This property has been measured according to the Measurement Instruction, based on NEN2580, which aims to provide a standardized way of measuring usable floor space. However, differences in measurement results can occur due to interpretation, rounding, or measurement limitations.
While we have measured the property with great care and to the best of our knowledge, discrepancies may still arise. The provided measurements are indicative, and minor differences may exist. Depending on the specific nature of the property being measured, these differences can be larger or smaller. If exact measurements are essential for you, we recommend measuring the property yourself or having it done professionally.
All stated years are approximate and purely indicative.
**Legal Information:**
A verbal agreement between a private seller and a private buyer is not legally binding. In other words, there is no sale until the purchase agreement is signed by both parties. This is in accordance with Article 7:2 of the Dutch Civil Code. A confirmation of verbal agreement by email or a draft purchase agreement is not considered a 'signed purchase agreement.'
The purchase agreement will be a standard NVM contract with several additional clauses, such as:
- Notary clause (maximum costs for seller and time determination)
- Measurement clause (liability of seller and broker)
- Other clauses as applicable
This information has been compiled with great care. This applies to the measurements, stated years, and all other information provided. Should you have any doubts regarding any aspect, please let us know. However, no liability will be accepted for any inaccuracies, incompleteness, or other issues, nor the consequences thereof. This is especially true for information that is older, harder to obtain, or open to interpretation.
Features
Transfer of ownership
- Original asking price
- € 239,500 kosten koper
- Listed since
- Acceptance
- Available in consultation
- Asking price
- € 215,000 kosten koper
- Asking price per m²
- € 2,216
- Status
- Available
Construction
- Type apartment
- Ground-floor apartment (apartment)
- Building type
- Resale property
- Year of construction
- 1906
Surface areas and volume
- Areas
- Living area
- 97 m²
- External storage space
- 18 m²
- Volume in cubic meters
- 300 m³
Layout
- Number of rooms
- 2 rooms (1 bedroom)
- Number of bath rooms
- 1 separate toilet
- Number of stories
- 1 story
- Located at
- Ground floor
Energy
- Energy label
- Not available
- Heating
- CH boiler
- Hot water
- CH boiler
- CH boiler
- Gas-fired combination boiler, in ownership
Cadastral data
- TILBURG Q 7221
- Cadastral map
- Ownership situation
- Full ownership
VVE (Owners Association) checklist
- Registration with KvK
- No
- Annual meeting
- No
- Periodic contribution
- No
- Reserve fund present
- No
- Maintenance plan
- No
- Building insurance
- No
Photos 15
© 2001-2026 funda














