This house on Funda: https://www.funda.nl/en/detail/koop/valkenswaard/huis-beemdweg-20/43043058/

Description
Verrassende en uitgebouwde hoekwoning met garage gelegen op een ruim en breed perceel van maar liefst circa 340 m².
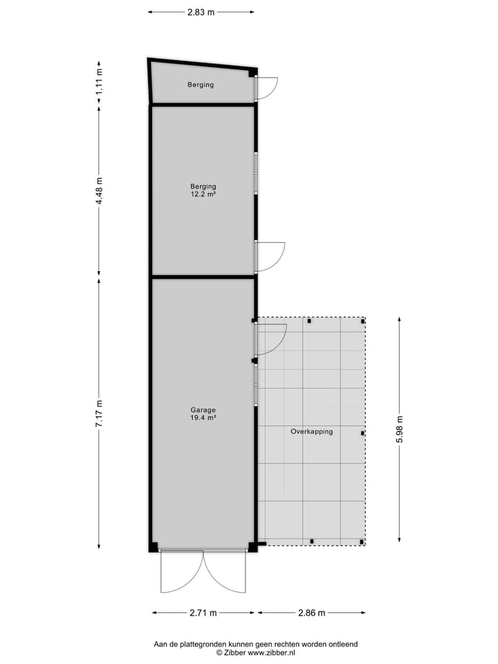
Deze half vrijstaande woning bestaat op de begane grond uit een hal met toiletruimte, uitgebouwde woonkamer, dichte keuken met eenvoudige opstelling en verdiepte trapkast. Aansluitend is de ruime bijkeuken/berging gesitueerd met aansluiting wasapparatuur, opstelling c.v. en luik naar bergvliering. De eerste verdieping biedt een drietal slaapkamers en een doucheruimte. Door middel van een luik is de bergvliering te bereiken. De privacy biedende achtertuin met zijpoort is zeer ruim qua omvang en beschikt over een relatief eenvoudig opgebouwde garage met en een eigen oprit en een berging.
Deze woning beschikt over houten kozijnen met deels HR++-glas en vernieuwd dak met isolatie. Het energielabel D en is geldig tot 17-01-2030 (oud label).
Daarnaast is deze woning over het algemeen goed onderhouden maar aan de binnenzijde eenvoudig c.q. sober afgewerkt. De woonlocatie is centrumgericht gelegen en met vrije zichtlijnen aan de voorzijde.
AANVULLENDE INFORMATIE EN VOORWAARDEN:
- De woning is recent door een onafhankelijke NVM-makelaar getaxeerd op € 400.000,--.
- Het perceel van deze woning dient nog te worden ingemeten; de afmetingen zijn indicatief. De kosten voor de kadastrale inmeting zijn voor de koper.
- De overdracht van dit huis dient plaats te vinden bij Potters Notarissen in Valkenswaard.
- In een koopovereenkomst wordt een zelfbewoningsplicht voor 2 jaar, een asbest- en ouderdomsclausule opgenomen en wordt vermeld dat de verkopende partij het huis nooit zelf heeft bewoond.
- De aanvaarding is in overleg maar kan, desgewenst, per direct!
Tot zekerheid van de nakoming van de verplichtingen van de koopovereenkomst dient de kopende partij, na het tot stand komen van de koopovereenkomst, een bankgarantie (10% van de koopsom) te stellen bij een Nederlandse bankinstelling c.q. een waarborgsom (10% van de koopsom) te storten bij de notaris.
Features
Transfer of ownership
- Last asking price
- € 400,000 kosten koper
- Asking price per m²
- € 4,706
- Status
- Sold
Construction
- Kind of house
- Single-family home, corner house
- Building type
- Resale property
- Year of construction
- 1953
- Type of roof
- Gable roof covered with roof tiles
Surface areas and volume
- Areas
- Living area
- 85 m²
- External storage space
- 35 m²
- Plot size
- 340 m²
- Volume in cubic meters
- 300 m³
Layout
- Number of rooms
- 4 rooms (3 bedrooms)
- Number of bath rooms
- 1 bathroom
- Bathroom facilities
- Shower, sink, and washstand
- Number of stories
- 2 stories
Energy
- Energy label
- Insulation
- Roof insulation and double glazing
- Heating
- CH boiler
- Hot water
- CH boiler
- CH boiler
- Intergas (gas-fired combination boiler from 2019, in ownership)
Cadastral data
- VALKENSWAARD E 2051
- Cadastral map
- Area
- 340 m²
- Ownership situation
- Full ownership
Exterior space
- Location
- Alongside a quiet road and in residential district
- Garden
- Back garden, front garden and side garden
- Back garden
- 221 m² (13.00 metre deep and 17.00 metre wide)
- Garden location
- Located at the southeast with rear access
Storage space
- Shed / storage
- Detached brick storage
Garage
- Type of garage
- Detached brick garage
- Capacity
- 1 car
Parking
- Type of parking facilities
- Parking on private property and public parking
Photos 27
© 2001-2026 funda


























