This house on Funda: https://www.funda.nl/en/detail/koop/veldhoven/huis-pastorij-15/43029532/

Pastorij 155508 LT VeldhovenHeikant-Oost
€ 1,295,000 k.k.
Eye-catcher "Heikant-Oost/Pastorij" gelegen vrijstaande villa met grote garage
Description
Op een fraaie locatie in de exclusieve wijk "Heikant-Oost/Pastorij" gelegen, royale vrijstaande villa met ruime garage en fraai aangelegde tuin (zuidwest) met zwembad en wellnessruimte. Tevens voorzien van royale speelse woonkamer, groot multifunctioneel verwarmd souterrain, de aanwezigheid van vier ruime slaapkamers plus een zolderkamer maken deze woning uitstekend geschikt voor een groot gezin of voor bijvoorbeeld werk-aan-huis. Door de ideale ligging aan diverse belangrijke verbindingswegen is zowel de Randstad alsook het zuiden en oosten van het land gemakkelijk te bereizen.
GLOBALE TOELICHTING:
BEGANE GROND:
Overdekte buitenentree.
Fraaie hal met natuurstenen vloer, meterkast en grote garderobe.
Bordestrap naar de eerste verdieping.
Separate toiletruimte met wandcloset en fonteintje.
Royale living, verdeelt in een zitkamer en eetgedeelte en een separate werkkamer/slaapkamer.
De zitkamer met gezellige open haard is ruim opgezet. Een "roomdevider" zorgt voor een logische afscheiding met het eetgedeelte.
Vanuit de eetkamer bereikt men de tweede zithoek/tuinkamer.
Dit gedeelte is in 1999) aangebouwd, heeft een luxe uitstraling, een separate toiletruimte, twee schuifdeuren met toegang tot de achtertuin en zonne-screens aan de buitenkant.
Grote woonkeuken met prachtig zicht op de achtertuin.
Fraaie professionele keuken inrichting met meer dan voldoende opbergruimte in onder- en bovenkasten.
De inrichting bestaat uit hete luchtoven, combi-oven magnetron, stoomoven, warmtelade, vaatwasser, koelkast, vriezer, spoelbak en quooker.
Daarbij ook nog een praktische bijkeuken met aansluitingen voor was-apparatuur, wastafel, met daarmee extra opberg- en werkruimte en toegang naar de achtertuin.
SOUTERRAIN:
Vanuit de tuinkamer toegang tot grote multifunctionele werk/speelkamer.
Aangename ruimte voorzien van leistenen vloer met vloerverwarming, tevens prettig natuurlijk lichtinval door de aanwezige koekoek. Deze ruimte leent zich ideaal als speelkamer voor de kinderen of werkkamer.
EERSTE VERDIEPING:
Fraaie bordestrap naar de eerste verdieping.
Grote ramen in de hal/trapopgang zorgen voor een prettige natuurlijke lichtinval op zowel de begane grond als eerste verdieping.
Overloop met aan beide kanten een opbergkast onder de kapschuinte.
In deze bergruimte is tevens de opstelling van de cv-ketel (2022) gesitueerd.
Toegang tot maar liefst 4 slaapkamers en twee badkamers.
Slaapkamer 1 t/m 3 zijn allen ruime kamers en gelegen aan de voorzijde.
Slaapkamer 4 is de "master-bedroom" en heeft toegang tot het dakterras.
Tevens is vanuit deze kamer doorloop naar een ruime inloopkast.
Betegelde badkamer met ligbad, douche, wandcloset, bidet en dubbele wastafel.
Tweede badkamer bereikbaar vanuit de hal, deze is voorzien van een douche, wandcloset en wastafel.
TWEEDE VERDIEPING:
Via een vaste trapopgang in een afgesloten trappenhuis is de tweede verdieping bereikbaar.
Overloop en toegang tot voorzolder.
5e slaapkamer met dakraam.
BUITEN:
Prachtig aangelegde achtertuin met zwembad, overdekt zonneterras, gazon, volwassen beplanting en vrijstaande houten berging.
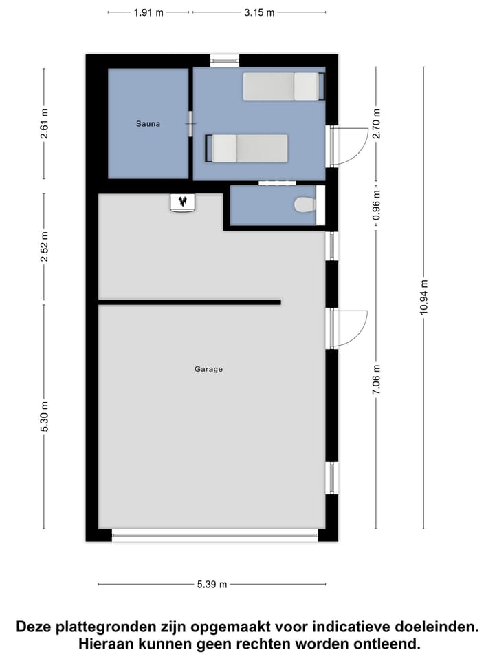
Grote dubbele garage met tegelvloer, dubbele elektrisch bedienbare sectional garagedeur, aansluitend de technische ruimte waar de installaties van het zwembad zijn geplaatst.
Daarnaast is er ook nog een wellness ruimte (2008) met sauna, douche, toilet en elektrische vloerverwarming.
ALGEMEEN:
* Bouwjaar: 1989
* Woonoppervlak: 306 m2
* Perceelgrootte: 1004 m2;
* Gelegen in exclusieve villawijk van Veldhoven;
* 44 zonnepanelen;
* Airco in woonkeuken, living en "masterbedroom.
* Energielabel A.
* Gehele woning is in 2024 gereinigd/gezandstraald en geïmpregneerd;
* Hoogwaardig afwerkingsniveau;
* Begane grondvloer voorzien van vloerverwarming;
* Ideaal voor werk aan huis en- of een groot gezin;
* Zeer centraal gelegen t.o.v. diverse uitvalswegen.
* Tot zekerheid voor de nakoming van de verplichtingen dient de kopende partij, binnen de afgesproken termijn na het tot stand komen van de koopovereenkomst, een waarborgsom (10 % van de koopsom) te storten bij de notaris. Het is de kopende partij ook toegestaan een bankgarantie te stellen bij een Nederlandse bankinstelling ter grootte van dit bedrag;
* De woning is zorgvuldig professioneel ingemeten. De Meetinstructie is gebaseerd op de NEN2580. De Meetinstructie is bedoeld om een meer eenduidige manier van meten toe te passen voor het geven van een indicatie van de gebruiksoppervlakte. De Meetinstructie sluit verschillen in meetuitkomsten niet volledig uit, door bijvoorbeeld interpretatieverschillen, afrondingen of beperkingen bij het uitvoeren van de meting.
* Verkoopprocedure: Voor informatie over deze woning kunt u contact opnemen met van Engelen de Wilde Makelaars. Na mondelinge overeenstemming wordt er door partijen een koopovereenkomst getekend. In tegenstelling tot de situatie vóór 1 september 2003 is de koop van een woning (door een consument) pas gesloten als de koopovereenkomst door koper en verkoper is ondertekend. Tot die tijd is er geen rechtsgeldige koop. Dit is door meerdere gerechtshoven bevestigd; indien een koopovereenkomst ten aanzien van een woning niet schriftelijk wordt vastgelegd conform artikel 7:2 BW, is de sanctie nietigheid.
* Deze informatie is door ons met de nodige zorgvuldigheid samengesteld. Onzerzijds wordt echter geen enkele aansprakelijkheid aanvaard voor enige onvolledigheid, onjuistheid of anderszins, dan wel de gevolgen daarvan. Alle opgegeven maten en oppervlakten zijn indicatief. Van toepassing zijn de NVM voorwaarden.
Wij nodigen u graag uit om te komen kijken!
Features
Transfer of ownership
- Original asking price
- € 1,345,000 kosten koper
- Listed since
- Acceptance
- Available in consultation
- Asking price
- € 1,295,000 kosten koper
- Asking price per m²
- € 4,205
- Status
- Available
Construction
- Kind of house
- Villa, detached residential property
- Building type
- Resale property
- Year of construction
- 1989
- Type of roof
- Gable roof covered with roof tiles
Surface areas and volume
- Areas
- Living area
- 308 m²
- Exterior space attached to the building
- 31 m²
- External storage space
- 71 m²
- Plot size
- 1,004 m²
- Volume in cubic meters
- 1,142 m³
Layout
- Number of rooms
- 9 rooms (5 bedrooms)
- Number of bath rooms
- 2 bathrooms and 1 separate toilet
- Bathroom facilities
- Sauna, bidet, double sink, walk-in shower, bath, 2 toilets, shower, and sink
- Number of stories
- 3 stories and a basement
- Facilities
- Air conditioning, outdoor awning, optical fibre, flue, sauna, sliding door, solar panels, and swimming pool
Energy
- Energy label
- A
- Insulation
- Roof insulation, double glazing, energy efficient window, insulated walls and floor insulation
- Heating
- CH boiler, fireplace and partial floor heating
- Hot water
- CH boiler
- CH boiler
- Remeha (gas-fired combination boiler from 2022, in ownership)
Cadastral data
- VELDHOVEN I 2371
- Cadastral map
- Area
- 1,004 m²
- Ownership situation
- Full ownership
Exterior space
- Location
- Alongside a quiet road, sheltered location, in wooded surroundings and in residential district
- Garden
- Surrounded by garden and sun terrace
- Balcony/roof terrace
- Balcony present
Storage space
- Shed / storage
- Detached wooden storage
Garage
- Type of garage
- Detached brick garage
- Capacity
- 2 cars
- Facilities
- Electrical door, electricity and running water
Parking
- Type of parking facilities
- Parking on private property and public parking
Photos 47
© 2001-2025 funda














































