This house on Funda: https://www.funda.nl/en/detail/koop/veldhoven/huis-zandparel-3/43840879/

Zandparel 35506 DG VeldhovenVerspreide huizen Zittard
€ 1,226,000 v.o.n.
Description
This modern villa is built on a spacious plot of 550 m2 and has approximately 213 m2 of living space. The house is delivered with aluminum frames with triple insulating glass, a ground source heat pump, solar panels, underfloor heating and cooling and a WTW system. There will be no floor and wall finishing, finishing of sanitary facilities and kitchen in the house, these can be finished entirely to your own taste.
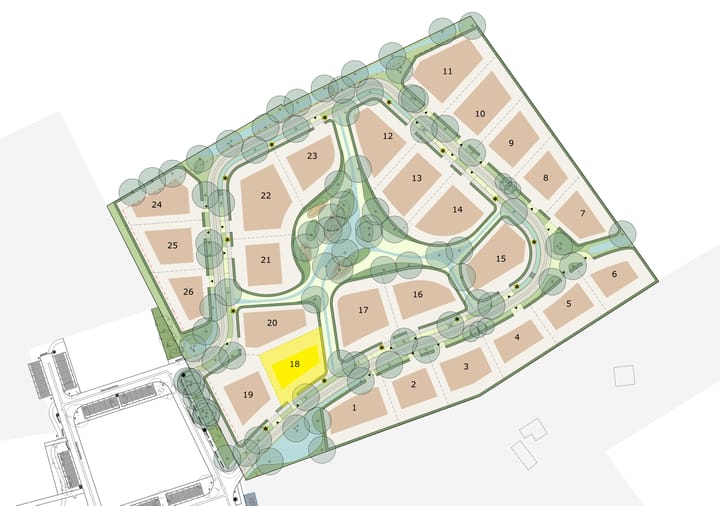
PLOT 18
This lot is located with the backyard on the northwest and has a spacious ground floor. On the ground floor is a spacious kitchen that can easily be closed off from the living room. From here there is a beautiful view of the garden and there is a direct connection to the covered terrace. In addition, there is an indoor storage room, a double driveway with a half-deep carport and a multifunctional space. On the first floor there are 4 more bedrooms, a bathroom and a separate toilet.
LAYOUT
GROUND FLOOR
Entrance to hall with staircase and access to the kitchen, living room, indoor storage, a wardrobe niche and the toilet.
From the kitchen there is a view of the garden through large windows and the terrace roof can be reached. The living room has a spacious sitting area with access to the multifunctional room and an extra storage room.
The house has a covered entrance and a terrace roof at the rear.
FIRST FLOOR
From the landing there is access to 4 bedrooms, a bathroom and a separate toilet.
GENERAL FEATURES
- Aluminum frames with triple glazing;
- Ground source heat pump;
- Solar panels;
- Underfloor heating/cooling;
- WTW system;
- Built with Woningborg Guarantee;
- Delivery of the house without floor and wall finishing, without finishing of kitchen and bathroom and to be finished entirely to your own taste;
- Possibility of complete finishing.
Features
Transfer of ownership
- Listed since
- Acceptance
- Available in consultation
- Asking price
- € 1,226,000 vrij op naam
- Asking price per m²
- € 5,756
- Status
- Available
Construction
- Kind of house
- Villa, detached residential property
- Building type
- New property
- Year of construction
- 2025
- Type of roof
- Flat roof covered with asphalt roofing
- Quality marks
- Woningborg Garantiecertificaat
Surface areas and volume
- Areas
- Living area
- 213 m²
- Plot size
- 555 m²
- Volume in cubic meters
- 794 m³
Layout
- Number of rooms
- 6 rooms (4 bedrooms)
- Number of bath rooms
- 1 bathroom and 2 separate toilets
- Bathroom facilities
- Shower, bath, and sink
- Number of stories
- 2 stories
- Facilities
- Balanced ventilation system, optical fibre, sliding door, and solar panels
Energy
- Energy label
- Not available
- Insulation
- Triple glazed and completely insulated
- Heating
- Heat recovery unit and heat pump
- Hot water
- Geothermal heating
Cadastral data
- VELDHOVEN C 5712
- Cadastral map
- Area
- 555 m²
- Ownership situation
- Full ownership
Exterior space
- Location
- On the edge of a forest, alongside a quiet road and in residential district
- Garden
- Surrounded by garden
Storage space
- Shed / storage
- Built-in
Parking
- Type of parking facilities
- Parking on private property
Photos 18
Floorplans 2
© 2001-2025 funda



















