This house on Funda: https://www.funda.nl/en/detail/koop/venray/appartement-merseloseweg-76-a/43259659/

Merseloseweg 76-A5801 CE VenrayCentrum
€ 468,000 v.o.n.
Description
Royaal appartement met vijf kamers en dakterras met optioneel een lift en 2e badkamer midden in het centrum van Venray.
Op een markante plek in het centrum van Venray verrijst De Spaak: een kleinschalige herontwikkeling met een bijzonder verhaal. Waar vroeger fietsenzaak Jeucken was gevestigd, met werkplaats en bovenwoning, ontstaat nu een eigentijds woonproject met vier royale en duurzame appartementen. Een vertrouwde plek krijgt een nieuw leven, met behoud van karakter en aandacht voor comfort van nu.
Appartement 4 is het grootste appartement binnen Project De Spaak en biedt royaal wonen verdeeld over de eerste en tweede verdieping. Met veel leefruimte, meerdere kamers en een dakterras is dit een woning voor wie ruimte en comfort zoekt.
De verwachte oplevering is begin juli 2026. Tot aan de oplevering wordt geen bouwrente en geen grondrente berekend.
HIGHLIGHTS
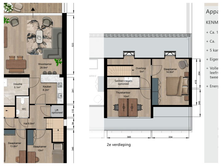
• Appartement op 1e en 2e verdieping (met wijnkelder)
• Ca. 142 m² woonoppervlak
• Dakterras van 21 m² met uitzicht op de Grote Kerk
• 5 kamers
• Energielabel A+
• Inclusief luxe sanitair en tegelwerk
• Keuken met stelpost van € 6.000,- incl. btw
• Vloerverwarming op de gehele eerste verdieping
• Eigen berging
• Optioneel in dit appartement is de lift, zonnepanelen en een tweede badkamer (2e verd.)
• Lage VvE-bijdrage, € 112 per maand
RUIME WOONKAMER EN OPEN KEUKEN
De royale woonverdieping biedt volop ruimte voor een comfortabele zithoek en eethoek. De open keuken sluit hier naadloos op aan en vormt het hart van de woning.
In de koopsom is een keukenstelpost van € 6.000,- incl. btw opgenomen, vrij te besteden bij de projectshowroom zodat je de keuken volledig naar eigen smaak kunt samenstellen.
SLAAPKAMERS EN LUXE BADKAMER
Met vijf kamers is dit appartement flexibel in te delen, bijvoorbeeld met werk- of hobbyruimte. De badkamer wordt luxe en compleet opgeleverd inclusief sanitair en tegelwerk. Keuze voor ander tegelwerk en sanitair is natuurlijk mogelijk en te bespreken met de showroom.
DAKTERRAS
Het dakterras met uitzicht op de Grote Kerk van circa 21 m² biedt een prettige en rustige buitenruimte met privacy.
COMFORTABEL EN DUURZAAM WONEN
Appartement 4 is volledig gasloos en voorzien van een lucht-water warmtepomp, vloerverwarming op de eerste verdieping en een hoog isolatieniveau.
WONEN IN HET CENTRUM VAN VENRAY
Centraal wonen met alle voorzieningen binnen handbereik, zonder concessies aan ruimte en comfort.
VENRAY ALS LEEFOMGEVING
Venray is voor veel mensen van buitenaf een aangename verrassing. Met ruim 43.000 inwoners combineert Venray de voorzieningen van een stad met de gemoedelijkheid en overzichtelijkheid van een dorp. Het centrum is compleet en levendig, met winkels, horeca, supermarkten, zorgvoorzieningen, scholen en sportaccommodaties, terwijl de sfeer persoonlijk blijft. Voor wie nu in of rond Nijmegen of andere grotere stad woont, biedt Venray vooral rust, ruimte en goede bereikbaarheid. Natuurgebieden zoals De Maasduinen en het Peelgebied liggen op korte afstand. Net over de grens zijn Duitse plaatsen als Goch, het historische Hülm en Straelen geliefd voor dagjes uit, terwijl grotere steden als Krefeld en Düsseldorf volop winkel-, cultuur- en uitgaansmogelijkheden bieden. Dankzij de ligging aan de A73 woon je hier groen en ontspannen, met veel variatie binnen handbereik.
APPARTEMENTENCOMPLEX DE SPAAK
Appartement 4 maakt deel uit van De Spaak, een kleinschalig appartementencomplex met vier woningen.
Features
Transfer of ownership
- Listed since
- Acceptance
- Available in consultation
- Asking price
- € 468,000 vrij op naam
- Asking price per m²
- € 3,296
- Status
- Available
Construction
- Type apartment
- Maisonnette (apartment)
- Building type
- New property
- Year of construction
- 2025
Surface areas and volume
- Areas
- Living area
- 142 m²
- Volume in cubic meters
- 477 m³
Layout
- Number of rooms
- 5 rooms (4 bedrooms)
- Number of bath rooms
- 1 bathroom and 1 separate toilet
- Bathroom facilities
- Shower and sink
- Number of stories
- 1 story
- Facilities
- Mechanical ventilation
- Located at
- 1st floor
Energy
- Energy label
- Insulation
- Roof insulation, energy efficient window and floor insulation
- Heating
- Partial floor heating and heat pump
Exterior space
- Location
- In centre
Parking
- Type of parking facilities
- Public parking
VVE (Owners Association) checklist
- Registration with KvK
- Yes
- Annual meeting
- Yes
- Periodic contribution
- Yes
- Reserve fund present
- Yes
- Maintenance plan
- Yes
- Building insurance
- Yes
Photos 13
Floorplans
© 2001-2026 funda













