This house on Funda: https://www.funda.nl/en/detail/koop/venray/huis-smakterveldweg-2-e/43200772/

Description
TE KOOP: 2 levensloopbestendige tussenwoningen met berging
Aan de Smakterveldweg in Venray verrijst een kleinschalig nieuwbouwproject met vier levensloopbestendige woningen. Deze karaktervolle en duurzame woningen zijn ontworpen met het oog op comfortabel wonen voor nu én de toekomst, met alle woonvoorzieningen op de begane grond. De woningen bieden volop wooncomfort en zijn gelegen op royale percelen, in een woonwijk nabij alle voorzieningen van Venray.
Levensloopbestendige woningen
Koopsommen:
* Woning 2D (hoek): VERKOCHT
* Woning 2E (tussen): € 549.500,- v.o.n.
* Woning 2F (tussen): € 537.500,- v.o.n.
* Woning 2G (hoek): VERKOCHT
Alle woningen beschikken over een parkeerplaats op eigen terrein en een eigen achterom.
Indeling & comfort
Ervaar het gemak van gelijkvloers wonen!
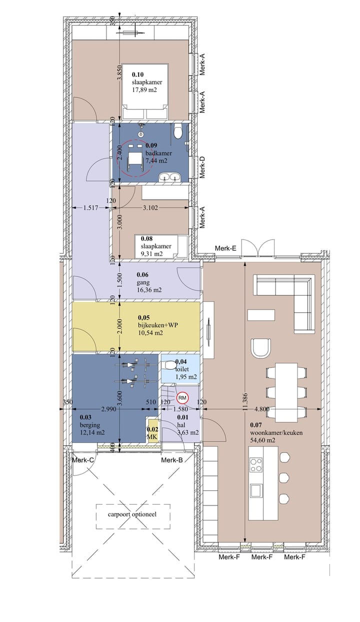
Indeling:
Hal met meterkast en toiletruimte. De riante leefkeuken bevindt zich aan de straatzijde. De grote woonkamer grenst aan de royale achtertuin. Een gang welke toegang biedt aan 2 slaapkamers, een badkamer met inloopdouche, wandcloset en dubbele wastafel. Een bijkeuken met warmtepomp en de opstelplaats voor de wasmachine en een doorgang naar de inpandige berging. Parkeren doe je veilig en vertrouwd op je eigen oprit, er zijn namelijk maar liefst twee parkeerplaatsen voorzien op het perceel! Deze woningen hebben een praktische indeling en duurzame bouw. Ze worden gasloos gebouwd en voldoen aan de BENG-normering (Bijna Energie Neutrale Gebouwen).
Venray – wonen met voorzieningen en goede bereikbaarheid
Venray is een levendige en veelzijdige plaats in Noord-Limburg, met een combinatie van stedelijke voorzieningen en groene omgeving. De ligging is gunstig:
* Venlo – 30 min
* Nijmegen – 45 min
* Duitse grens – 25 min
* Eindhoven – 50 min
Venray beschikt over een uitgebreid aanbod aan voorzieningen, waaronder een modern winkelcentrum, scholen, zorginstellingen, sportverenigingen en diverse horecagelegenheden. Daarnaast ligt de natuur altijd dichtbij, met onder andere het Nationaal Park De Maasduinen en het Peelgebied in de omgeving, ideaal voor wandelaars en fietsers.
Kortom: een unieke kans in Limburg
* Ruime levensloopbestendige woningen
* Grote percelen tot 480 m²
* Energiezuinig en gasloos
* Twee parkeerplaatsen op eigen terrein
* Rustige ligging met goede bereikbaarheid
Ben je op zoek naar ruimte én comfort? Interesse? Neem dan contact op met Peelrand Makelaardij.
Features
Transfer of ownership
- Listed since
- Acceptance
- Available in consultation
- Asking price
- € 549,500 vrij op naam
- Asking price per m²
- € 3,568
- Status
- Under option
Construction
- Kind of house
- Bungalow, row house
- Building type
- New property
- Year of construction
- 2026
- Type of roof
- Flat roof covered with asphalt roofing
Surface areas and volume
- Areas
- Living area
- 154 m²
- Volume in cubic meters
- 512 m³
Layout
- Number of rooms
- 3 rooms (2 bedrooms)
- Number of bath rooms
- 1 bathroom and 1 separate toilet
- Bathroom facilities
- Double sink, walk-in shower, and toilet
- Number of stories
- 1 story
- Facilities
- Mechanical ventilation and solar panels
Energy
- Energy label
- Insulation
- Completely insulated
- Hot water
- Electrical boiler
Exterior space
- Location
- Alongside a quiet road and in residential district
- Garden
- Back garden and front garden
- Back garden
- 300 m² (30.00 metre deep and 10.00 metre wide)
- Garden location
- Located at the southeast with rear access
Parking
- Type of parking facilities
- Parking on private property
Photos 7
© 2001-2026 funda






