
Description
Welcome to this spacious corner house in the sought-after and peaceful residential area of Middenhoven in Amstelveen. A unique location, ideal for families looking for space, privacy, and a modern level of finish!
What makes this house so special?
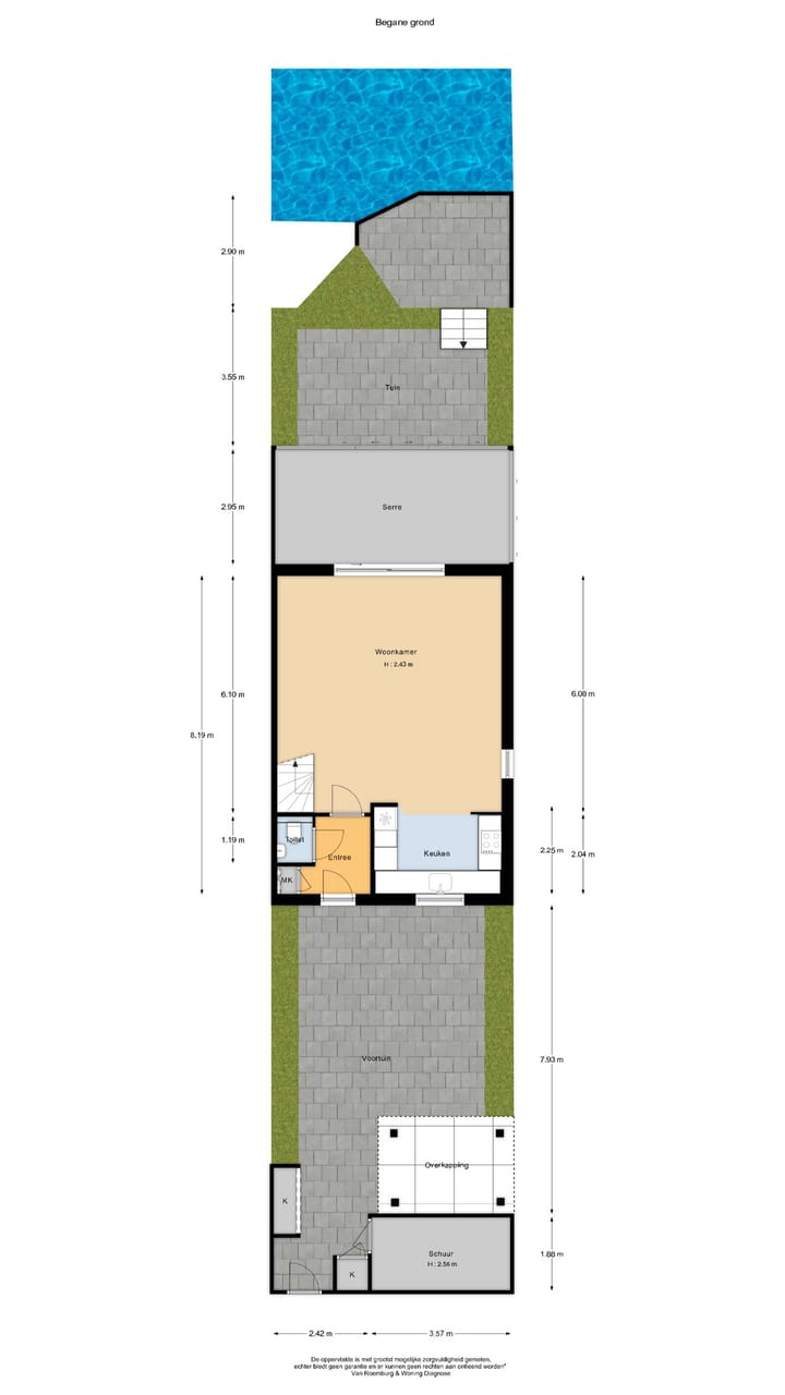
The property is situated on a corner, providing extra privacy and plenty of natural light. The front garden includes a convenient bicycle shed and a charming south-facing veranda, perfect for dining or for children to play. At the back, you’ll enjoy a beautiful view of ornamental water and lush greenery.
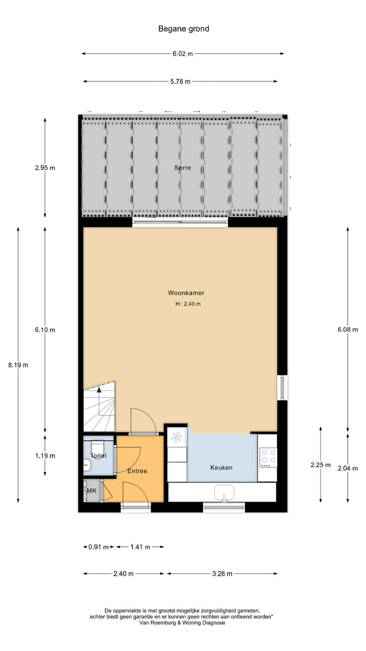
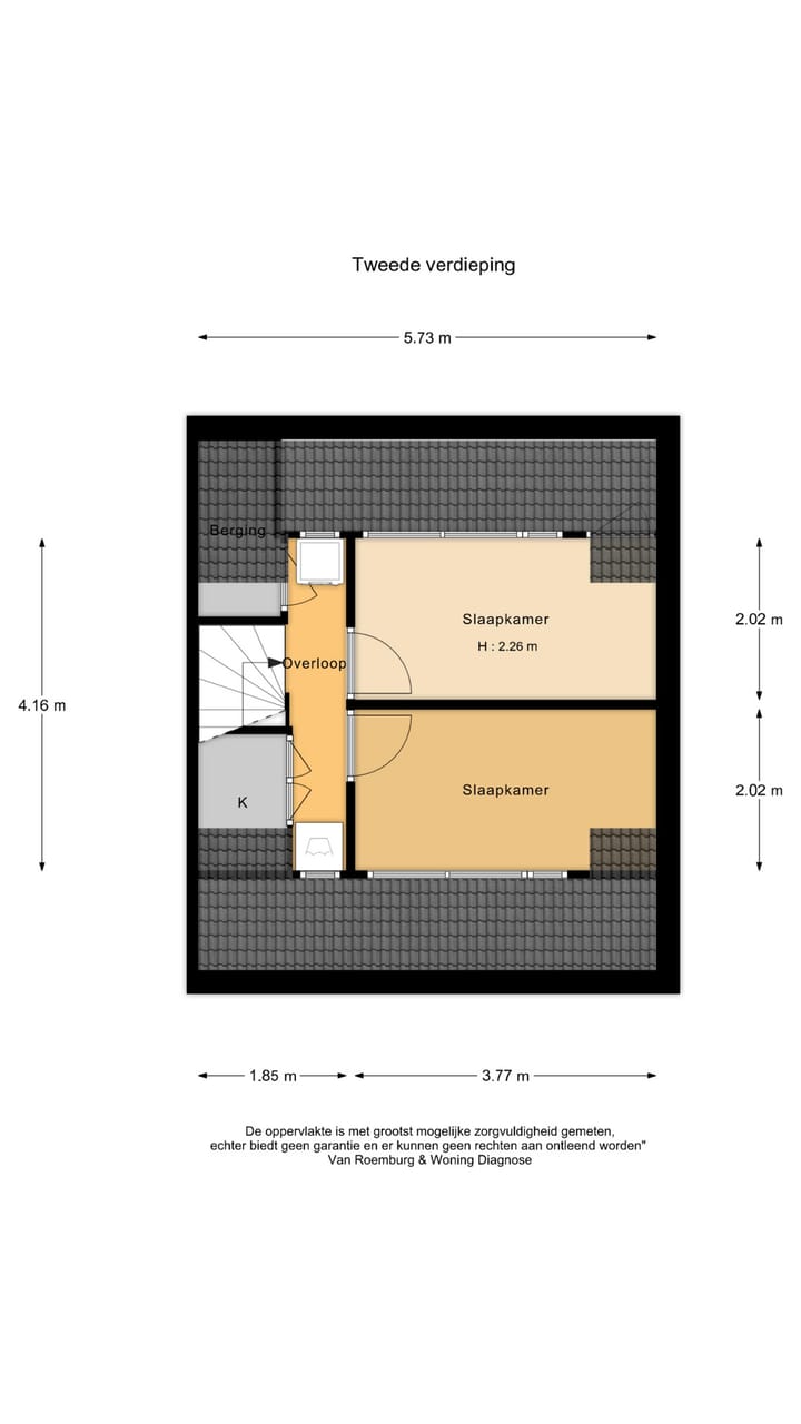
In 2023, the house was modernized with a stylish conservatory featuring large windows, which brings the green surroundings inside. The modern kitchen is equipped with high-end built-in appliances, including a Quooker tap, Bora cooktop, dishwasher, and two ovens. With five spacious bedrooms, there’s plenty of room for the whole family (and for working from home!). The bathroom was updated in 2018 with a walk-in shower, double sink, and toilet. The attic features two dormer windows, creating two additional comfortable bedrooms. This floor also houses the washing machine and water heater.
Why would you want to live here?
The location of this property is exceptionally favorable. Middenhoven is known as a quiet, green, and family-friendly neighborhood in Amstelveen. You’ll live in an area with plenty of green spaces and playgrounds. For families with children, it’s an ideal spot, with various primary schools, daycare centers, and playgrounds within walking distance. Children can safely play outdoors in the quiet streets or on the many local playgrounds.
The house is also well-connected. The Middenhoven shopping center, several supermarkets, a bus stop with quick connections to Amsterdam and Schiphol, and access to the A9 and Beneluxbaan are all just a short distance away. There is plenty of free parking available on the street and in the surrounding area. For sports and nature lovers, the nearby parks and sports facilities, such as the Amsterdamse Bos, sports fields, and tennis courts, are sure to impress.
Personal note from the sellers:
We have lived here for nearly twenty years with great joy. It’s a wonderful place with plenty of green space behind the house and a peaceful, friendly neighborhood. The garden and the surroundings always gave us a sense of space and freedom. We have always had a good relationship with our neighbors—it’s truly been a wonderful place to raise a family and call home.
What else would you like to know?
• The house has an A+ energy label.
• Air conditioning available, which also provides heating.
• A heat pump system with an air-to-air system was installed in 2023.
• The property has 13 solar panels.
• The conservatory has foundation work, lighting, and a sunshade.
• There is a sunshade in the front garden and a screen at the dormer window at the front of the house.
• This is a move-in ready home in a beautiful location—contact us for a viewing!
Features
Transfer of ownership
- Last asking price
- € 695,000 kosten koper
- Asking price per m²
- € 6,096
- Status
- Sold
Construction
- Kind of house
- Single-family home, corner house
- Building type
- Resale property
- Year of construction
- 1986
- Type of roof
- Gable roof covered with roof tiles
Surface areas and volume
- Areas
- Living area
- 114 m²
- External storage space
- 25 m²
- Plot size
- 195 m²
- Volume in cubic meters
- 429 m³
Layout
- Number of rooms
- 6 rooms (5 bedrooms)
- Number of bath rooms
- 1 bathroom and 1 separate toilet
- Bathroom facilities
- Shower, double sink, and toilet
- Number of stories
- 3 stories
- Facilities
- Air conditioning, outdoor awning, mechanical ventilation, sliding door, and TV via cable
Energy
- Energy label
- A+
- Insulation
- Roof insulation, double glazing, energy efficient window, insulated walls and floor insulation
- Heating
- Heat pump
- Hot water
- CH boiler
Cadastral data
- AMSTELVEEN M 4576
- Cadastral map
- Area
- 195 m²
- Ownership situation
- Full ownership
Exterior space
- Garden
- Back garden and front garden
- Front garden
- 47 m² (7.93 metre deep and 5.90 metre wide)
- Garden location
- Located at the south
Storage space
- Shed / storage
- Detached brick storage
Parking
- Type of parking facilities
- Public parking
Photos 26
© 2001-2025 funda

























