
Description
Wonen aan het water met zonnige tuin en energielabel A+!
Ben je op zoek naar een unieke woning aan het water met volop potentie om jouw woonwensen te realiseren? Dan is Lange Vonder 32 in Amsterdam precies wat je zoekt. Deze ruime eengezinswoning beschikt over een heerlijke tuin op het zuidwesten, een eigen steiger én een royale indeling die je volledig naar eigen smaak kunt moderniseren. Of je nu droomt van een fijn gezinshuis, een combinatie van wonen en werken, of simpelweg een woning met karakter en ruimte? Hier ligt jouw kans!
Ligging aan het water met tuin op het zonnige zuidwesten
De achtertuin grenst direct aan het water en beschikt over een privésteiger: perfect om een bootje aan te leggen, te vissen of ontspannen te genieten aan de waterkant. Dankzij de ligging op het zuidwesten profiteer je hier volop van de middag- en avondzon, een zeldzame luxe in Amsterdam!
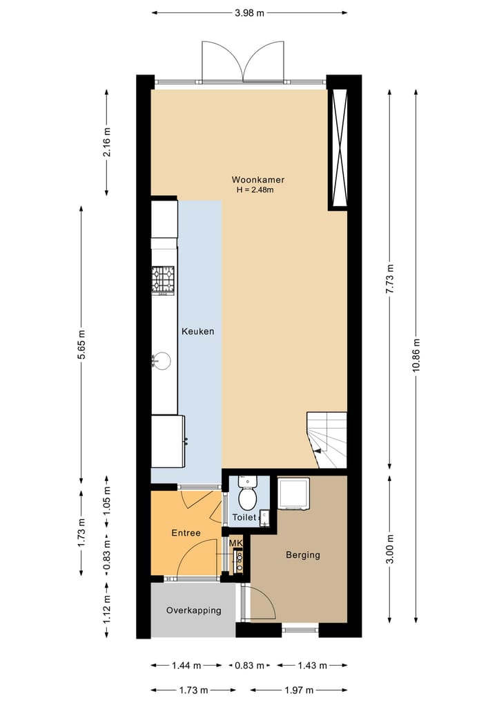
Indeling met mogelijkheden
Begane grond
Aan de voorzijde bevindt zich een praktische interne berging met aansluitingen voor wasmachine en droger – ideaal als bijkeuken of opslagruimte. Daarnaast is er een apart toilet. Aan de achterzijde ligt de royale woonkeuken, die is uitgebouwd en voorzien van een schuifpui naar de zonnige tuin.
De woonkeuken biedt volop ruimte voor een grote eettafel en kan volledig naar wens worden ingericht. Denk aan een moderne open keuken met kookeiland, een gezellige leefkeuken met ontbijtbar of juist een landelijke stijl met veel kastruimte. Dankzij het directe contact met de tuin wordt deze ruimte écht het hart van het huis – perfect voor lange diners, gezinsmomenten of het ontvangen van gasten.
Eerste verdieping
De eerste verdieping is momenteel één grote open ruimte en biedt daarmee talloze indelingsmogelijkheden. Je kunt hier een riante woonkamer creëren, eventueel gecombineerd met een werkruimte of extra slaapkamer. Dankzij de grote ramen aan beide zijden is het een lichte en prettige leefruimte die je volledig naar eigen wens kunt vormgeven.
Tweede verdieping
Op de bovenste etage bevindt zich centraal de complete badkamer met ligbad, aparte douche, toilet en wastafel. Aan de voor- en achterzijde vind je twee ruime, lichte slaapkamers – perfect als master bedroom en kinderkamer, of als slaapkamer en thuiswerkplek.
Rustig wonen nabij Het Twiske
De woning is gelegen in een rustige, groene buurt in Amsterdam-Noord, op slechts enkele minuten van het prachtige recreatiegebied Het Twiske. Hier kun je heerlijk wandelen, fietsen, zwemmen of genieten van de natuur. Daarnaast zijn voorzieningen zoals supermarkten, scholen, kinderopvang en openbaar vervoer op korte afstand. Met de fiets of bus ben je snel bij de pont naar het centrum van Amsterdam.
Bijzonderheden:
- Energielabel A+
- Gelegen aan het water met privésteiger
- Zonnige tuin op het zuidwesten
- Woonoppervlakte ca. 104 m²
- Drie woonlagen met flexibele indeling
- Woonkeuken met eethoek, schuifpui en volop inrichtingsmogelijkheden
- Interne berging met wasmachine- en drogeraansluiting
- 2 ruime slaapkamers (mogelijk uit te breiden naar 3 of 4)
- Badkamer met ligbad, douche, toilet en wastafel
- CV-installatie Intergas uit 2018
- Kozijnen vernieuwd
- Erfpacht afgekocht t/m 15-12-2042
- Woning dient gemoderniseerd te worden – veel potentie
- Rustige ligging nabij natuur en recreatiegebied Het Twiske
- Goede verbinding met het centrum via OV en pont
- Oplevering kan direct
Benieuwd naar de mogelijkheden van deze woning aan het water? Plan vandaag nog je bezichtiging in!
Features
Transfer of ownership
- Last asking price
- € 495,000 kosten koper
- Asking price per m²
- € 4,760
- Status
- Sold
Construction
- Kind of house
- Single-family home, row house
- Building type
- Resale property
- Year of construction
- 1993
- Specific
- Renovation project
- Type of roof
- Flat roof covered with asphalt roofing and other
Surface areas and volume
- Areas
- Living area
- 104 m²
- Other space inside the building
- 5 m²
- Exterior space attached to the building
- 2 m²
- External storage space
- 3 m²
- Plot size
- 83 m²
- Volume in cubic meters
- 368 m³
Layout
- Number of rooms
- 4 rooms (3 bedrooms)
- Number of bath rooms
- 1 bathroom and 1 separate toilet
- Bathroom facilities
- Shower, bath, toilet, and sink
- Number of stories
- 3 stories
- Facilities
- Mechanical ventilation, passive ventilation system, sliding door, and TV via cable
Energy
- Energy label
- A+
- Heating
- CH boiler
- Hot water
- CH boiler
- CH boiler
- Intergas (gas-fired combination boiler from 2018, in ownership)
Cadastral data
- AMSTERDAM AN 1967
- Cadastral map
- Area
- 83 m²
- Ownership situation
- Municipal ownership encumbered with long-term leaset (end date of long-term lease: 15-12-2042)
- Fees
- Paid until 15-12-2042
Exterior space
- Location
- On the edge of a forest, alongside park, alongside a quiet road, along waterway, alongside waterfront, in residential district, rural and unobstructed view
- Garden
- Back garden
- Back garden
- 50 m² (10.00 metre deep and 5.00 metre wide)
- Garden location
- Located at the southwest
Storage space
- Shed / storage
- Built-in
- Facilities
- Electricity
- Insulation
- Completely insulated
Parking
- Type of parking facilities
- Public parking
Photos 44
© 2001-2025 funda











































