
Description
Op aantrekkelijke en prachtige locatie gelegen vrijstaande semi bungalow met zonnige privacy biedende tuin op het Zuid Westen. Aan de voorzijde is er een carport voor twee auto's. Het geheel ligt op een ruim perceel (687m²). Deze in 1973 gebouwde ruime woning heeft een riante woonoppervlakte van ca. 176 m², verdeeld over de begane grond (ca. 140 m²), een eerste verdieping (ca. 36 m2) en een kelderruimte (ca. 25 m²). De begane grond kenmerkt zich door de aanwezigheid van een ruime tuin gerichte woonkamer met een moderne houtkachel van maar liefst ca 46 m² met een sfeervolle split level parket-/tegelvloer die overloopt in de keuken en vervolgens leidt naar de achterliggende slaapkamer en kelderruimte met wijnkelder. Bij deze slaapkamer zit ook een eigen badkamer met douche, wastafel en toilet. De begane grond ouderslaapkamer beschikt over een eigen badkamer met ligbad, inloop douche, toilet en dubbele wastafel. En dan is er nog een derde slaapkamer. Alle slaapkamers op de begane grond hebben verbinding met buiten. Een wasmachine aansluiting bevindt zich in de kelder maar kan ook in de bijkeuken/berging. Verwarming geschiedt middels CV-gas hete lucht, Brink Allure (2003). Deze woning beschikt voorts over glas isolatie. Zoekt u een woning waar u gelijkvloers kunt wonen, met een fraaie tuin in een prachtige, rustige en bosrijke omgeving? Dan is dit misschien iets voor u!
INDELING:
Souterrain:
Ruime kelderruimte bijzonder geschikt als hobbyruimte met een wijnkelder.
Begane grond:
Ruime entree/hal met meterkast, garderobe, toiletruimte met fonteintje,
L-vormige woonkamer (ca. 46 m2)in split level met een tegel- en parketvloer. Ook is er een grote schuifpui naar het buitenterras en een moderne sfeervolle houtkachel. De open keuken met inbouwapparatuur grenst aan de woonkamer en heeft mede het voordeel van de schuifpui. Grenzend aan de keuken is er een bijkeuken en een berging. De ouderslaapkamer (ca. 14 m2) heeft een eigen badkamer met ligbad, inloopdouche, zwevend toilet en dubbele wastafel. De 2e slaapkamer is ruim en licht en bevindt zich naast de toegang tot de beneden liggende hobbyruimte (kelder). De derde slaapkamer heeft directe verbinding met de hal en is ook zeer geschikt als werkkamer.
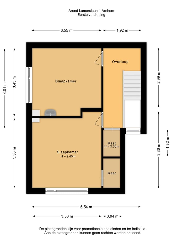
1e verdieping:
Deze wordt bereikt via de gang naar de ouderslaapkamer en heeft een overloop met daaraan gelegen 2 slaapkamers op het Zuiden. Beide slaapkamers beschikken over een wastafel. Er is een ruime overloopkast en een kast op een van de slaapkamers.
Bijzonderheden:
• Perceel: 687 m²;
• Inhoud circa 757 m³;
• Bruto woonoppervlakte circa 214 m²;
• Bouwjaar 1973;
• Ligging tuin op zuid/westen;
• Dubbele carport aan de voorzijde;
• Parkeren op eigen terrein;
• sfeervolle parketvloer in woonkamer ;
• Hoofd-dak in 2018 vernieuwd, bij-dak in 2020;
• Glasisolatie;
• 19 zonnepanelen aanwezig
• Aanvaarding in overleg.
Features
Transfer of ownership
- Last asking price
- € 875,000 kosten koper
- Asking price per m²
- € 4,972
- Status
- Sold
Construction
- Kind of house
- Bungalow, detached residential property (semi-bungalow)
- Building type
- Resale property
- Year of construction
- 1973
- Type of roof
- Flat roof covered with asphalt roofing
Surface areas and volume
- Areas
- Living area
- 176 m²
- Other space inside the building
- 38 m²
- Plot size
- 687 m²
- Volume in cubic meters
- 757 m³
Layout
- Number of rooms
- 6 rooms (5 bedrooms)
- Number of bath rooms
- 2 bathrooms and 1 separate toilet
- Bathroom facilities
- 2 showers, double sink, bath, underfloor heating, washstand, toilet, and sink
- Number of stories
- 2 stories and a basement
- Facilities
- Solar panels
Energy
- Energy label
- B
- Insulation
- Double glazing and floor insulation
- Heating
- CH boiler and hot air heating
- Hot water
- Gas water heater
- CH boiler
- Brink-Allure HR B40 (gas-fired from 2003, in ownership)
Cadastral data
- ARNHEM L 1487
- Cadastral map
- Area
- 687 m²
- Ownership situation
- Full ownership
Exterior space
- Location
- Alongside a quiet road, sheltered location, in wooded surroundings, in residential district and rural
- Garden
- Surrounded by garden
Storage space
- Shed / storage
- Built-in
- Facilities
- Electricity and running water
Garage
- Type of garage
- Carport
Parking
- Type of parking facilities
- Parking on private property
Photos 87
© 2001-2025 funda






















































































