
Description
Lyonnetstraat 117, een recent gerenoveerd vierkamerappartement !
De woning, gelegen op de eerste etage, beschikt onder meer over een lichte living en een drietal slaapkamers van goed formaat. Het appartement verkeert in een meer dan goede staat van onderhoud mede door de nieuw geplaatste keuken inclusief nieuwe apparatuur en sanitair, de aanleg van centrale verwarming en volledig uitgevoerd schilderwerk.
Bovendien maakt de woning deel uit van een actieve vereniging van eigenaren.
Kortom, een aantrekkelijk geheel direct zonder extra kosten te betrekken !
LOCATIE
De woning is gelegen in een rustige woonstraat in het Laakkwartier. Door de uitstekende openbaar vervoersverbindingen (tram 1, 15 & 17) liggen het centrum van Den Haag en alle treinstations binnen handbereik. Tevens bereikt u binnen enkele autominuten diverse uitvalswegen (A4 Den Haag - Amsterdam, A12 Den Haag - Utrecht, A13 Den Haag - Rotterdam).
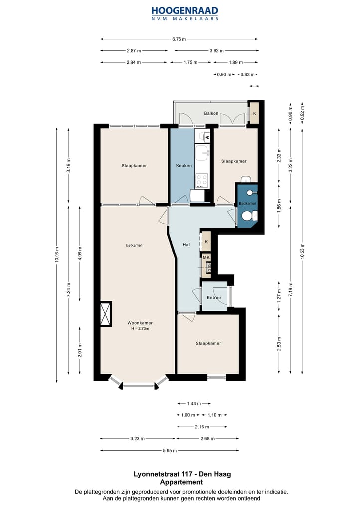
INDELING
Entree op de eerste etage; ontvangsthal; gang met toegang tot alle vertrekken; royale en lichte living; voorzijkamer van goed formaat; aan de achterzijde gelegen hoofdslaapkamer; naastgelegen keuken met nette inrichting waaronder nieuw geplaatst keukenblok met 4-zone inductiekookplaat, afzuigkap, vaatwasser, was-/ droogcombinatie, combimagnetron, koel-/ vriescombinatie, opstelplaats cv-ketel en toegang tot zonnig balkon op het noordwesten; naastgelegen derde slaapkamer met wastafel en openslaande deuren naar het balkon; tussengelegen badkamer met douche en toilet.
RENOVATIE UITGEVOERD IN 2022
- uitgebreide elektrische installatie met 8 groepen incl. kookgroep en aardlekschakelaars
- nieuw geplaatste keuken, inclusief apparatuur
- nieuw geplaatste badkamer
- volledig nieuw cv-circuit met radiatoren
- nieuw geplaatste cv-combiketel NEFIT Proline, 2022
- woning geheel voorzien van laminaatvloer
- glasvezelaansluiting aanwezig
- woning is volledig geschilderd en gesausd
HET WETEN WAARD
- bouwjaar 1929
- actieve VVE met een maandelijkse bijdrage van € 150,=
- geheel voorzien van dubbele beglazing, HR-glas
- 3 slaapkamers van goed formaat
- zonnig balkon op het noordwesten
- NVM ouderdomsclausule van toepassing
- gelegen op eigen grond
- oplevering in overleg
INTERESSE ?
Schakel direct uw eigen NVM-aankoopmakelaar in.
Uw NVM-aankoopmakelaar komt op voor uw belang en bespaart u tijd, geld en zorgen.
Adressen van collega NVM-aankoopmakelaars in Haaglanden vindt u op Funda.
Features
Transfer of ownership
- Original asking price
- € 285,000 kosten koper
- Last asking price
- € 275,000 kosten koper
- Asking price per m²
- € 4,365
- Status
- Sold
- VVE (Owners Association) contribution
- € 150.00 per month
Construction
- Type apartment
- Residential property with shared street entrance (apartment)
- Building type
- Resale property
- Year of construction
- 1929
- Type of roof
- Flat roof covered with asphalt roofing
Surface areas and volume
- Areas
- Living area
- 63 m²
- Exterior space attached to the building
- 3 m²
- Volume in cubic meters
- 215 m³
Layout
- Number of rooms
- 4 rooms (3 bedrooms)
- Number of bath rooms
- 1 bathroom
- Bathroom facilities
- Shower and toilet
- Number of stories
- 1 story
- Facilities
- Optical fibre
- Located at
- 2nd floor
Energy
- Energy label
- C
- Insulation
- Double glazing and energy efficient window
- Heating
- CH boiler
- Hot water
- CH boiler
- CH boiler
- NEFIT Proline (gas-fired combination boiler from 2022, in ownership)
Cadastral data
- 'S-GRAVENHAGE AI 7653
- Cadastral map
- Ownership situation
- Full ownership
Exterior space
- Location
- Alongside a quiet road and in residential district
- Balcony/roof terrace
- Balcony present
Parking
- Type of parking facilities
- Paid parking, public parking and resident's parking permits
VVE (Owners Association) checklist
- Registration with KvK
- Yes
- Annual meeting
- Yes
- Periodic contribution
- Yes (€ 150.00 per month)
- Reserve fund present
- Yes
- Maintenance plan
- Yes
- Building insurance
- Yes
Photos 31
© 2001-2025 funda






























