
Description
Verwen jezelf met deze prachtige, luxe en duurzame villa in Ede, gelegen aan de rustige Van Regteren Altenastraat. Deze woning is gebouwd in 2018 en biedt een zeer energiezuinige en comfortabele levensstijl, dankzij functies zoals vloerverwarming en koeling door de gehele woning, een warmtepomp en zonne-collectoren voor warmwatervoorziening. De woning heeft maar liefst 5 slaapkamers alsmede een extra slaap- of werkkamer op de begane grond. Er is genoeg ruimte voor een gezin om comfortabel te leven en zelfs gasten te ontvangen. Kom en ontdek de hoogwaardige afwerking en luxe details van dit prachtige huis.
**Locatie & Omgeving**
Deze luxe villa bevindt zich op een zeer gunstige locatie in Ede, dichtbij parken, scholen en belangrijke uitvalswegen. De buurt is rustig met weinig verkeer, ideaal voor gezinnen die op zoek zijn naar een rustige leefomgeving. De woning is gelegen aan een wandelpark, in de buurt van speeltuinen, winkels en andere voorzieningen. Station Ede-Wageningen is op loopafstand gelegen.
**Algemene kenmerken van de woning**
Deze vrijstaande luxe villa met een energielabel A+++ is gebouwd in 2018 en is volledig geïsoleerd, inclusief warmtepomp. De woning heeft een prachtige uitstraling dankzij de zorgvuldig gekozen materialen en de goed onderhouden binnen- en buitenruimten.
**Begane grond**
Op de begane grond vind je een grote L-vormige woonkamer met erker, de royale open keuken is voorzien van een spoeleiland, veel kastruimte en diverse luxe inbouwapparatuur. De openslaande deuren bieden toegang tot het terras achter de woning. Het innovatieve design van de begane grond maakt het mogelijk om vanuit elke kamer te genieten van een optimaal buitenzicht en een overvloed aan natuurlijk licht.
**Verdiepingen & indeling**
Op de eerste verdieping zijn er 3 slaapkamers gelegen waarvan 1 slaapkamer met inloopkast en loggia. De luxe badkamer is voorzien van een ligbad, een inloopdouche en een dubbele wastafelmeubel. Op de overloop bevindt zich nog een ruime bergkast alsmede een separaat toilet met fontein.
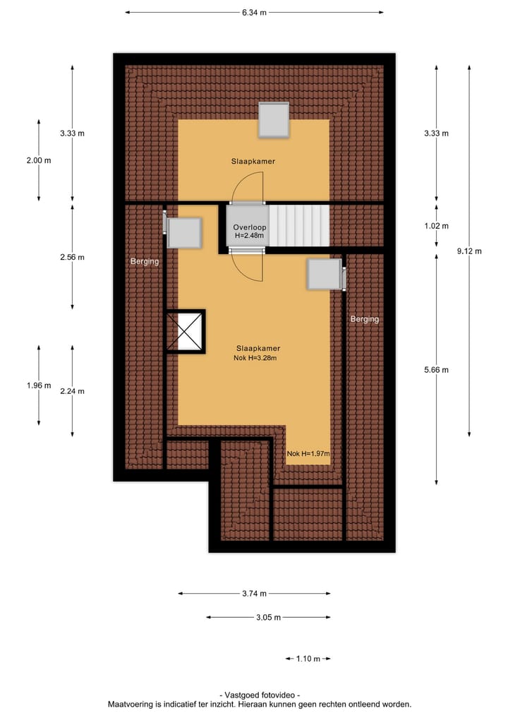
De zolderverdieping is bereikbaar via een vaste trap met nog eens twee sfeervolle slaapkamers voorzien van bergruimte, wat de flexibiliteit en het gebruikspotentieel van deze prachtige woning verder verhoogt.
**Buitenruimte & tuin**
Maak je klaar om te genieten van de prachtig aangelegde tuin. Of het nu de voortuin, achtertuin of zij-tuin is, deze woning biedt je veel buitenruimte. Achter de woning ligt een besloten tuin met terras, veel privacy en een veranda. De royale zij-tuin biedt voldoende ruimte om heerlijk van het buitenleven te genieten.
**Parkeren & extra voorzieningen**
Naast de woning bevindt zich een carport en is op eigen terrein voldoende ruimte voor het parkeren van 3 auto's. Daarnaast is er een laadpaal (ter overname) beschikbaar op het eigen terrein. Deze woning is ook voorzien van zonnepanelen en extra faciliteiten zoals zonne-collectoren, zonnepanelen en glasvezelkabel.
**Bijzonderheden & extra informatie**
- Met 7 kamers en 6 slaapkamers (waarvan 1 in gebruik als werkkamer), biedt de villa veel leefruimte.
- Volledig geïsoleerd.
- Gelegen nabij parken, scholen en belangrijke uitvalswegen.
- Zeer energiezuinige woning met energielabel A+++.
- Gebouwd in 2018 en in uitstekende staat van onderhoud.
Kortom, als je op zoek bent naar een luxe, ruime en energiezuinige woning dan is deze villa zeker een bezichtiging waard. Neem vandaag nog contact met ons op voor een persoonlijke rondleiding en ervaar zelf het hoge niveau van comfort en luxe dat deze villa te bieden heeft.
Features
Transfer of ownership
- Last asking price
- € 995,000 kosten koper
- Asking price per m²
- € 5,349
- Status
- Sold
Construction
- Kind of house
- Villa, detached residential property
- Building type
- Resale property
- Year of construction
- 2018
- Type of roof
- Combination roof covered with roof tiles
Surface areas and volume
- Areas
- Living area
- 186 m²
- Exterior space attached to the building
- 3 m²
- External storage space
- 7 m²
- Plot size
- 429 m²
- Volume in cubic meters
- 701 m³
Layout
- Number of rooms
- 7 rooms (6 bedrooms)
- Number of bath rooms
- 1 bathroom and 2 separate toilets
- Bathroom facilities
- Double sink, walk-in shower, bath, and washstand
- Number of stories
- 3 stories
- Facilities
- Skylight, optical fibre, mechanical ventilation, flue, TV via cable, solar collectors, and solar panels
Energy
- Energy label
- Insulation
- Completely insulated
- Heating
- Multi fuel burner, complete floor heating and heat pump
- Hot water
- Solar boiler and solar collectors
Cadastral data
- EDE D 10721
- Cadastral map
- Area
- 429 m²
- Ownership situation
- Full ownership
Exterior space
- Location
- Alongside park, alongside a quiet road, in residential district and unobstructed view
- Garden
- Back garden, front garden and side garden
- Back garden
- 87 m² (11.00 metre deep and 7.90 metre wide)
- Garden location
- Located at the west with rear access
Storage space
- Shed / storage
- Attached brick storage
- Facilities
- Electricity and running water
- Insulation
- Completely insulated
Garage
- Type of garage
- Carport
Parking
- Type of parking facilities
- Parking on private property
Photos 65
© 2001-2026 funda
































































