
Description
In gewild en jong appartementencomplex “Koninginnehof” bovenin gelegen met royale buitenruimte, ruim 3 kamerappartement met eigen parkeerplaats en fietsenberging in de parkeerkelder.
BIJZONDERHEDEN
- aanvaarding september 2025
- Zeer goed energielabel, A+;
- Bovenin gelegen met groot balkon / terras met optimale privacy en vrij uitzicht;
- Eigen parkeerplaats en bezoek kan tegenover het complex perfect parkeren;
- Je bent (te voet) binnen 10 min op het station in Helmond en vanaf daar binnen 10 min in Eindhoven;
- Servicekosten bedragen € 226,- exclusief stookkosten (€ 69,- voorschot);
- Het complex, dus ook dit appartement, is voorzien van een Warmte-/ KoudeOpslagsysteem (WKO) (aardwarmte/ gasloos) om je woning lekker te verwarmen met overal vloerverwarming maar ook in de warme zomer je appartement enigzins te koelen.
ALGEMEEN
Ben je op zoek naar een jong, instapklaar appartement met fantastisch uitzicht over de stad via een fijne royale, zonnige buitenruimte (14 m2!) waar je lekker met je vrienden of familie kunt vertoeven, dan is dit wel een heel unieke aanbieding !
Ook kan je veilig je auto parkeren in de inpandige parkeergarage op eigen plek met direct daarbij ook nog eens je fietsenberging.
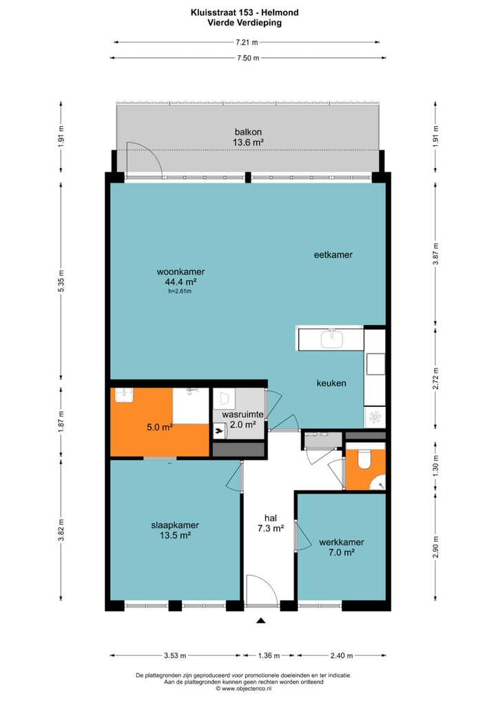
INDELING
Via lift of trapopgang ga je naar het op de 4e etage gelegen appartement.
ENTREE
Entree met moderne laminaatvloer doorlopend naar alle ruimtes behalve badkamer. Aan het einde van de hal bereik je het ruime leefgedeelte waar je de living hebt met open keuken.
WOONKAMER
Als je binnenkomt word je meteen getrakteerd op “een bak” licht door grote ramen aan de achterzijde. Daarnaast geven deze ramen ook nog eens een fijn uitzicht over de stad.
De living is dermate ruim (zie bijgevoegde plattegrond) dat je naast een royale zithoek ook een grote tafel kunt opstellen. In totaal zo’n 44 m2!. Ook de hoogte van het plafond ( 2,6 m) zorgt voor een ruimtelijk gevoel.
BUITENRUIMTE
Verrassend is het grote balkon van zo’n 14 m2 waarvan uit je over de stad kunt kijken, veel privacy en zoninval hebt.
KEUKEN
In een hoekopstelling met licht houten motief is de keuken geplaatst v.v. afzuigkap, hete luchtoven, vaatwasser en
inductiekookplaat.
BERGING & TOILET
Direct bij de keuken is de inpandige berging met wasmachineaansluiting, boileropstelling en mechanische
ventilatie. Ook hier is de laminaatvloer netjes door gelegd. Terug naar de hal, de deels betegelde toiletruimte met
wandcloset en fonteintje.
SLAAPKAMERS
Verder door naar de 2 slaapkamers van resp. 14 m2 en 7 m2.
BADKAMER
De masterbedroom van 14 m2 geeft toegang tot de licht betegelde badkamer met inloopdouche,
designradiator en vaste wastafel.
In de kelder van dit complex treft je je fietsenberging aan en direct nabij je eigen parkeerplaats.
Fijn is dat je binnendoor in het complex naar je berging en auto kunt maar zeker niet vergeten moet worden de binnenplaats/tuin van dit complex met zitjes, vijver en jeu de boules-baan. Je kunt hier ook heerlijk tijdens zomerse dagen vertoeven. Verder kan je bezoek gemakkelijk tegenover het complex openbaar parkeren.
Features
Transfer of ownership
- Last asking price
- € 329,000 kosten koper
- Asking price per m²
- € 3,917
- Status
- Sold
- VVE (Owners Association) contribution
- € 226.00 per month
Construction
- Type apartment
- Galleried apartment
- Building type
- Resale property
- Year of construction
- 2012
Surface areas and volume
- Areas
- Living area
- 84 m²
- Exterior space attached to the building
- 14 m²
- External storage space
- 4 m²
- Volume in cubic meters
- 272 m³
Layout
- Number of rooms
- 3 rooms (2 bedrooms)
- Number of bath rooms
- 1 bathroom and 1 separate toilet
- Bathroom facilities
- Walk-in shower and sink
- Number of stories
- 1 story
Energy
- Energy label
- Heating
- Complete floor heating and heat pump
- Hot water
- Electrical boiler
Cadastral data
- HELMOND I 3194
- Cadastral map
- Ownership situation
- Full ownership
- HELMOND I 3194
- Cadastral map
- Ownership situation
- Full ownership
- HELMOND I 3194
- Cadastral map
- Ownership situation
- Full ownership
Storage space
- Shed / storage
- Built-in
Garage
- Type of garage
- Underground parking
Parking
- Type of parking facilities
- Parking garage
VVE (Owners Association) checklist
- Registration with KvK
- Yes
- Annual meeting
- Yes
- Periodic contribution
- Yes (€ 226.00 per month)
- Reserve fund present
- Yes
- Maintenance plan
- Yes
- Building insurance
- Yes
Photos 50
© 2001-2026 funda

















































