
Description
Deze instapklare tussenwoning in het geliefde Hoef en Haag combineert luxe, ruimte en energiezuinig wonen (energielabel A) met vloerverwarming en de charme van een kindvriendelijk dorp. Met vier slaapkamers, een riante achtertuin met de hele dag zon en een keuken waar iedere kookliefhebber van droomt, is dit een woning die je gezien móét hebben!
Hoef en Haag is het jongste dorp van Nederland, gelegen tussen het historische Vianen, Hagestein en de rivier Lek. Deze woning bevindt zich in Het Dorpshart, een wijk met sfeervolle Oud-Hollandse architectuur. Alle dagelijkse voorzieningen liggen op loopafstand: een grote supermarkt, basisschool, gezondheidscentrum, tandarts, snackbar, dorpswinkel/bakkerij en diverse speelplekken.
Natuurliefhebbers kunnen genieten van het omringende buitengebied en recreatieplas Everstein. Dankzij de gunstige ligging nabij de A27, A2 en A12 ben je uitstekend verbonden met de rest van Nederland. Binnen 20 minuten sta je in hartje Utrecht, terwijl je toch geniet van de rust en gemoedelijkheid van een dorp.
Kom de woning zelf ervaren , wij laten u graag van binnen zien wat deze instapklare tussenwoning te bieden heeft.
INDELING
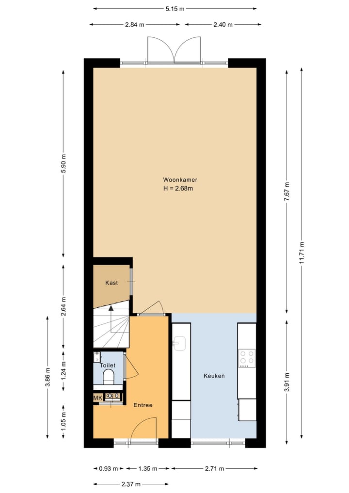
Begane grond
Via de entree kom je in een ruime hal met meterkast, modern zwevend toilet met fontein en trapopgang naar de eerste verdieping. Vanuit de hal bereik je de royale woonkamer, afgewerkt met een keurige pvc-visgraatvloer en vloerverwarming. Dankzij de uitbouw van 2,40 meter geniet je hier van extra leefruimte.
Via openslaande deuren stap je de fraai aangelegde achtertuin in. De tuin ligt op het zuidoosten, en biedt door de vrije ligging de hele dag zon. Voorzien van buitenverlichting, zonnescherm, buitenkraan en elektra, dit is een heerlijke plek om te ontspannen. Achterin de tuin staat een ruime berging met elektra en een achterom naar het parkeerterrein voor bewoners.
Aan de voorzijde bevindt zich de luxe Bruynzeel keuken voorzien van Siemens StudioLine inbouwapparatuur (2020) met een groot raam dat uitzicht biedt op de voortuin en de straat. De keuken is voorzien van diverse inbouwapparatuur:
• Bakoven met stoom-, magnetron- en zelfreinigingsfunctie;
• Stoomoven met zelfreinigingsfunctie;
• Quooker voor direct kokend water;
• Ruime, aparte koelkast en vriezer;
• PerfectDry vaatwasser met extra droogfunctie (Zeolith®)
• Inductiekookplaat met flexzone, automatisch gekoppeld aan de afzuigkap;
• Verlaagde plint
• Hoogwaardig composiet aanrechtblad.
Eerste verdieping
Ruime overloop met toegang tot drie slaapkamers van ca. 13 m², 12 m² en 8 m², waarvan de kamers aan de achterzijde zijn voorzien van rolluiken. De moderne badkamer is uitgerust met een raam voor natuurlijk daglicht, inloopdouche, ligbad, tweede toilet, wastafel en vloerverwarming. De gehele verdieping is voorzien van vloerverwarming en een keurige laminaatvloer.
Tweede verdieping
Via een vaste trap bereik je de riante zolder, voorzien van een vierde slaapkamer met vloerverwarming en laminaatvloer, strak afgewerkte wanden, een dakkapel en een nokhoogte van 4,50 meter. Daarnaast is er een aparte technische ruimte met opstelplaats voor wasmachine en droger, inclusief de warmtepompinstallatie.
Tuin
De woning beschikt over een voortuin op het noordwesten en een fraai aangelegde achtertuin op het zuidoosten. Dankzij de vrije ligging van de achtertuin is er de hele dag zon. Achterin de tuin staat een ruime berging met elektra en een achterom naar het parkeerterrein voor bewoners.
Bijzonderheden
• Bouwjaar: 2020
• Woonoppervlakte ca.140m², Inhoud 480m3;
• Energielabel A;
• Gelegen in een kindvriendelijke buurt;
• Voorzien van 13 zonnepanelen;
• Gehele woning is voorzien van vloerverwarming;
• Gehele woning is voorzien van HR+++ glas;
• Hoogwaardige keuken met topapparatuur;
• Achtertuin met zon van ’s ochtends vroeg tot ’s avonds laat;
• Aanvaarding in overleg
Hebben wij uw interesse gewekt? Bel snel voor een afspraak wij laten u graag van binnen zien wat deze instapklare tussenwoning te bieden heeft.
*Deze informatie is door ons met de nodige zorgvuldigheid samengesteld. Geen aansprakelijkheid wordt aanvaard voor enige onvolledigheid, onjuistheid of anderszins, of de consequenties daarvan. Alle maten en afmetingen zijn indicatief.*
Features
Transfer of ownership
- Last asking price
- € 625,000 kosten koper
- Asking price per m²
- € 4,464
- Status
- Sold
Construction
- Kind of house
- Single-family home, row house
- Building type
- Resale property
- Year of construction
- 2020
- Type of roof
- Gable roof covered with roof tiles
- Quality marks
- Algemene Woning Keur and Energie Prestatie Advies
Surface areas and volume
- Areas
- Living area
- 140 m²
- External storage space
- 8 m²
- Plot size
- 139 m²
- Volume in cubic meters
- 480 m³
Layout
- Number of rooms
- 5 rooms (4 bedrooms)
- Number of bath rooms
- 1 bathroom and 1 separate toilet
- Number of stories
- 3 stories
Energy
- Energy label
- Insulation
- Completely insulated
- Hot water
- Electrical boiler
Cadastral data
- VIANEN F 1551
- Cadastral map
- Area
- 139 m²
- Ownership situation
- Full ownership
Exterior space
- Location
- In residential district
- Garden
- Back garden
Storage space
- Shed / storage
- Detached brick storage
- Facilities
- Electricity
Parking
- Type of parking facilities
- Public parking
Photos 62
© 2001-2026 funda





























































