
Description
Keurig onderhouden TUSSENWONING met aangebouwde stenen berging voor een starter op de woningmarkt.
De woning is gelegen aan een doorgaande weg in een nette woonwijk met scholen, openbaar vervoer en winkels op loopafstand.
De woning is volledig voorzien van dubbele isolerende beglazing. Tevens is de woning voor enkele jaren geleden voorzien van nieuwe dakpannen.
Benedenverdieping:
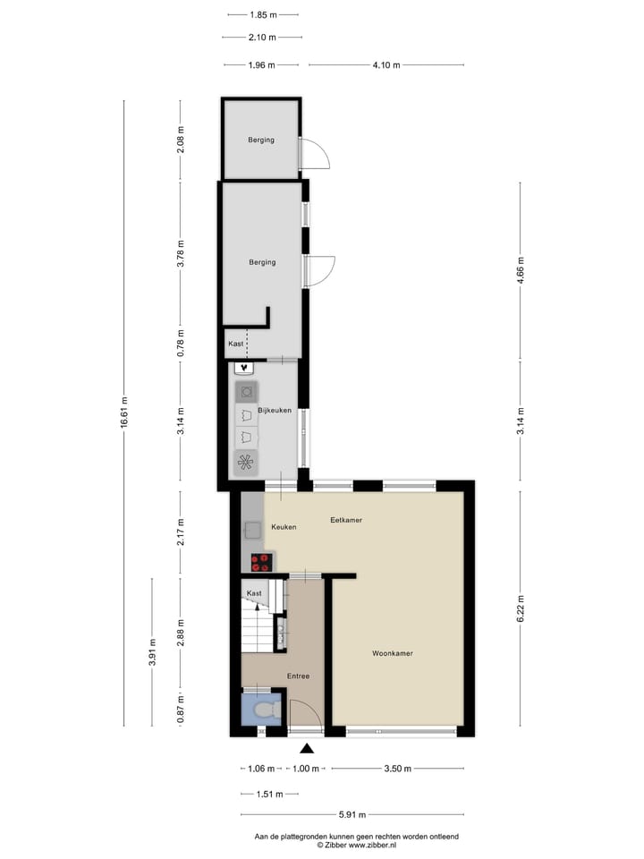
Entree/ hal, meterkast, kelder, L- vormige woonkamer met een open keuken van ca. 26 m2. Deze is voorzien van een eenvoudige hoekkeuken; aangebouwde bijkeuken met aansluitingen voor een wasmachine en een toegangsdeur tot het terras. Aangebouwde stenen schuur en een houten schuur voor tuingereedschap.
Eerste verdieping:
Overloop; 3 slaapkamers van ca. 12 m2; 10,5 m2 en 5 m2; eenvoudige badkamer voorzien van een wastafel en douche.
Tweede verdieping:
Middels een vlizotrap bereikbare zolderverdieping.
De tuin is gelegen op het zuiden en beschikt over een achterom.
Extra info:
- Verwarming middels een Intergas HR-combiketel (2016, eigendom)
- De woning is volledig voorzien van dubbele isolerende beglazing
- Nieuwe dakpannen
- Zonwering aan achterzijde van de woning
Er is een nieuw energielabel aangevraagd voor de woning!
Aanvaarding kan op korte termijn
Features
Transfer of ownership
- Last asking price
- € 210,000 kosten koper
- Asking price per m²
- € 2,593
- Status
- Sold
Construction
- Kind of house
- Single-family home, row house
- Building type
- Resale property
- Year of construction
- 1956
- Type of roof
- Gable roof covered with asphalt roofing and roof tiles
Surface areas and volume
- Areas
- Living area
- 81 m²
- Other space inside the building
- 17 m²
- External storage space
- 4 m²
- Plot size
- 147 m²
- Volume in cubic meters
- 343 m³
Layout
- Number of rooms
- 4 rooms (3 bedrooms)
- Number of bath rooms
- 1 bathroom and 1 separate toilet
- Bathroom facilities
- Shower and sink
- Number of stories
- 2 stories and an attic
- Facilities
- Outdoor awning and TV via cable
Energy
- Energy label
- E
- Insulation
- Roof insulation, triple glazed and energy efficient window
- Heating
- CH boiler
- Hot water
- CH boiler
- CH boiler
- Intergas HR combi (gas-fired combination boiler from 2016, in ownership)
Cadastral data
- HOOGEZAND K 3853
- Cadastral map
- Area
- 147 m²
- Ownership situation
- Full ownership
Exterior space
- Location
- Alongside a quiet road and in residential district
- Garden
- Back garden, front garden and sun terrace
- Back garden
- 48 m² (12.00 metre deep and 4.00 metre wide)
- Garden location
- Located at the south with rear access
Storage space
- Shed / storage
- Attached brick storage
- Facilities
- Electricity
Parking
- Type of parking facilities
- Public parking
Photos 24
© 2001-2025 funda























