
Description
Sfeervol, duurzaam en verrassend ruim aan de Tjerk Hiddestraat
Welkom bij Tjerk Hiddestraat 26 B in Leeuwarden! Wat een heerlijke woning is dit.
Alles klopt hier: het karakter van de jaren ’30, de ruimte, de lichtinval én de fijne sfeer. Met hoge plafonds, een prachtige erker en openslaande deuren naar de tuin is dit zo’n huis waar je direct blij van wordt.
De ligging? Ideaal! In een rustige straat, met buurtwinkels, scholen én het centrum van Leeuwarden op loopafstand. Hier woon je rustig, maar ben je in een paar minuten midden in de stad — de perfecte balans tussen levendig en ontspannen wonen.
Aankomst en entree
De charmante gevel en originele details geven de woning direct karakter. Bij binnenkomst valt het glas-in-lood bij de entree meteen op — prachtig authentiek, maar slim vernieuwd met isolerend dubbel glas. De hal straalt frisheid uit en is afgewerkt met een moderne PVC vloer die doorloopt over de gehele begane grond. Onder de trap bevindt zich het toilet — netjes, verzorgd en passend bij de stijl van het huis.
Wonen en koken
Wat een fijne leefruimte! De woonkamer ademt sfeer: veel licht door de erker aan de voorzijde, hoge plafonds die voor een ruimtelijk gevoel zorgen en strak gestucte wanden die het geheel een moderne uitstraling geven. De openslaande deuren aan de achterzijde brengen de tuin naar binnen — ideaal voor lange zomeravonden en gezellige etentjes met vrienden.
De halfopen keuken sluit perfect aan op de woonkamer en is met haar frisse mintkleur een echte blikvanger. Voorzien van een 4-pits gaskookplaat en oven, goed onderhouden en helemaal klaar voor jouw kookmomenten.
Aansluitend vind je de bijkeuken met ruimte voor de wasmachine, koelkast en cv-ketel. Vanuit hier stap je zo door naar de houten berging en de achterom. Praktisch én netjes geregeld.
Eerste verdieping
Op de eerste verdieping vind je drie verzorgde kamers en een badkamer met toilet, wastafel en douche. De slaapkamer aan de achterzijde is ruim en voorzien van een inbouwkast. Aan de voorzijde liggen nog twee kamers: een compacte, perfect als kantoor of kinderkamer, en een royale kamer met eveneens een inbouwkast en toegang tot een charmant balkon — een heerlijk plekje om even buiten te zitten.
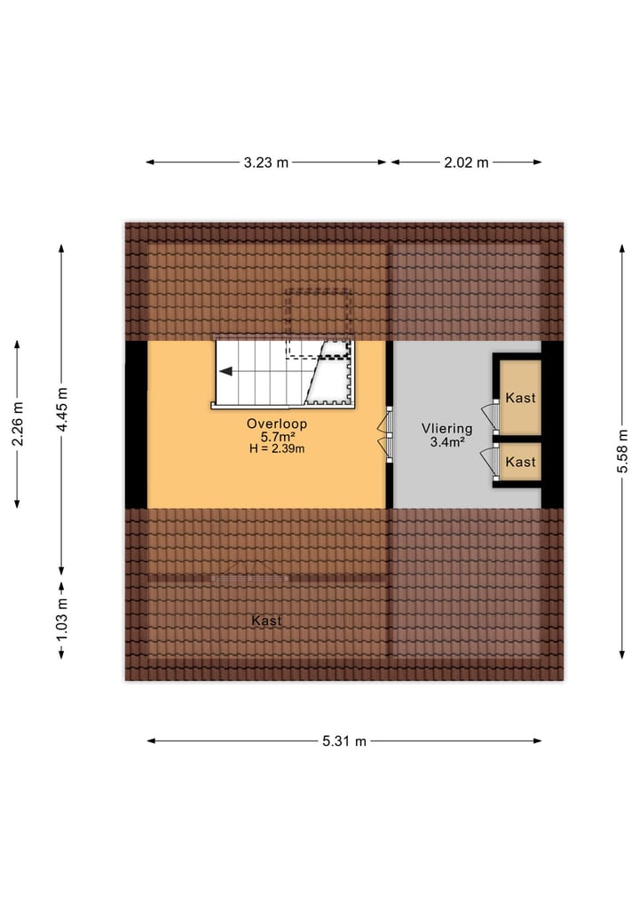
Tweede verdieping
De vaste trap brengt je naar de zolderverdieping: een lichte, verrassend ruime plek met verwarming en volop mogelijkheden. De zolder is bovendien geïsoleerd, wat bijdraagt aan comfort én energiezuinigheid. Richt hem in als vierde slaapkamer, creatieve werkruimte of speelzolder — wat jij wilt! Met drie slaapkamers én de optie om de zolder om te toveren tot nog eens één kamer groeit dit huis moeiteloos met je mee.
Technische pluspunten
- Schilderwerk uitgevoerd in 2024 en 2025.
- Zonnepanelen (2520 Wp) voor lagere energielasten.
- Overal vernieuwde radiatoren op de benedenverdieping.
- Riool vernieuwd en aangesloten op gemeentelijk riool in 2022.
- Isolatiepakket compleet: HR++ glas (2023), spouwmuurisolatie, vloerisolatie én dakisolatie.
- Origineel glas-in-lood bij entree, nu met isolerend dubbel glas.
- Hoge plafonds, erker en openslaande deuren naar de tuin.
-PVC vloer op de begane grond.
- Drie slaapkamers + zolder met mogelijkheid voor extra kamer.
- Centrale, rustige ligging op loopafstand van het centrum van Leeuwarden.
- Energielabel C.
Samenvatting
Tjerk Hiddestraat 26 B is zo’n woning die je meteen inpakt. De ruimte, de sfeer, het comfort — alles voelt hier goed. Met zorg gemoderniseerd, duurzaam verbeterd en met behoud van dat heerlijke jaren ’30 karakter.
Een huis waar oud en nieuw elkaar in perfecte harmonie ontmoeten.
Kom binnen, voel de warmte… en ontdek jouw nieuwe thuis in Leeuwarden.
Features
Transfer of ownership
- Last asking price
- € 279,500 kosten koper
- Asking price per m²
- € 2,612
- Status
- Sold
Construction
- Kind of house
- Single-family home, corner house
- Building type
- Resale property
- Year of construction
- 1930
- Type of roof
- Gable roof covered with roof tiles
Surface areas and volume
- Areas
- Living area
- 107 m²
- Other space inside the building
- 7 m²
- Exterior space attached to the building
- 2 m²
- Plot size
- 122 m²
- Volume in cubic meters
- 403 m³
Layout
- Number of rooms
- 4 rooms (3 bedrooms)
- Number of bath rooms
- 1 bathroom and 1 separate toilet
- Bathroom facilities
- Shower, toilet, and sink
- Number of stories
- 3 stories
- Facilities
- Mechanical ventilation and solar panels
Energy
- Energy label
- Insulation
- Double glazing, energy efficient window, insulated walls and floor insulation
- Heating
- CH boiler
- Hot water
- CH boiler
- CH boiler
- Bosch (gas-fired combination boiler from 2010, in ownership)
Cadastral data
- LEEUWARDEN F 6546
- Cadastral map
- Area
- 122 m²
- Ownership situation
- Full ownership
Exterior space
- Garden
- Back garden and front garden
- Back garden
- 48 m² (8.00 metre deep and 6.00 metre wide)
- Garden location
- Located at the southwest with rear access
Parking
- Type of parking facilities
- Resident's parking permits
Photos 58
© 2001-2026 funda

























































