
Description
Are you looking for a beautiful family home with a sunny front and back garden and your own private driveway?
Then Spechtenkamp 282 in Maarssen is exactly what you’re looking for! This well-maintained family home offers 103 m² of living space, three full-sized bedrooms, and the potential to expand to four or even five bedrooms. Perfect for a growing family or professionals working from home who need extra space.
Spechtenkamp is a vibrant, green, and family-friendly neighborhood in Maarssen. Everything you need is within easy reach: from primary schools, daycare centers, and a health center to several shopping centers. The Zwanenkamp shopping center is just a 10-minute walk away, and the larger Bisonspoor mall, offering a wide range of shops and restaurants, is also nearby. In terms of accessibility, the location is ideal. Major highways to Utrecht and Amsterdam can be reached within minutes. Maarssen has its own train station with direct connections to both cities, and the bus connections are also excellent. Fancy a walk or bike ride? The historic village center of Maarssen and the stunning Vecht river area are both within easy cycling distance.
Layout
Ground floor:
You enter the home through the hallway, which includes a cloakroom and a neatly finished toilet. From here, you step into the bright, garden-facing living room. Thanks to the large windows, daylight streams in beautifully. The space is stylishly finished with smooth plastered walls, an elegant acoustic wall panel, and a modern laminate floor.
At the front of the house, the semi-open kitchen is arranged in a practical L-shape and overlooks the front garden. The kitchen is equipped with a 4-burner gas hob, oven, dishwasher, extractor hood, recessed spotlights, and ample cupboard space.
First floor:
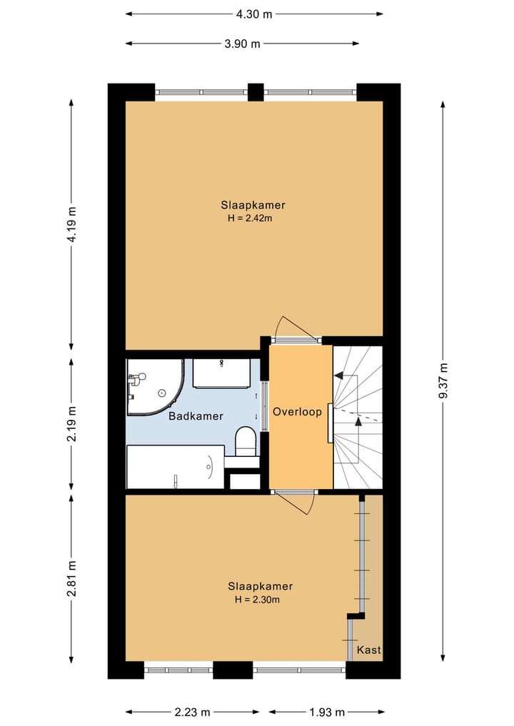
The staircase in the hall leads you to the first floor, where you’ll find two spacious bedrooms and a beautiful bathroom. One of the bedrooms is large enough to be split into two rooms if desired. The bathroom is fully equipped with a bathtub, shower, second toilet, vanity unit, designer radiator, and recessed lighting.
Second floor:
On the second floor, you will find a long landing with connections for both the washing machine and dryer, as well as the central heating system (installed in 2018). The spacious attic bedroom features two skylights and is stylishly finished with plastered walls and recessed spotlights. Thanks to the generous space and the two skylights, it's also possible to create two bedrooms here.
Garden:
This home features both a sunny front and back garden, allowing you to enjoy the sun all day long. The back garden faces northeast – perfect for starting your day quietly in the morning sun – and has a convenient back entrance. The front garden faces southwest and offers plenty of sun in the afternoon and evening, ideal for relaxing outdoors after work.
At the front of the property, there is a private driveway, providing extra convenience and parking space on your own property. In addition, cabling has been installed for an electric vehicle charging point, and the current charging station is available for takeover.
Key features:
- Beautiful family home;
- 103 m² of living space;
- Energy label A;
- Central heating system from 2018;
- Neatly plastered walls;
- Three bedrooms with potential for expansion;
- Private driveway with EV charging capability.
Ready to make Spechtenkamp 282 your new home? Schedule a viewing today!
Features
Transfer of ownership
- Last asking price
- € 450,000 kosten koper
- Asking price per m²
- € 4,369
- Status
- Sold
Construction
- Kind of house
- Single-family home, row house
- Building type
- Resale property
- Year of construction
- 1984
- Specific
- Partly furnished with carpets and curtains
- Type of roof
- Gable roof covered with roof tiles
Surface areas and volume
- Areas
- Living area
- 103 m²
- Other space inside the building
- 5 m²
- Plot size
- 121 m²
- Volume in cubic meters
- 372 m³
Layout
- Number of rooms
- 4 rooms (3 bedrooms)
- Number of bath rooms
- 1 bathroom and 1 separate toilet
- Bathroom facilities
- Shower, bath, toilet, sink, and washstand
- Number of stories
- 3 stories
- Facilities
- Skylight, mechanical ventilation, and TV via cable
Energy
- Energy label
- Insulation
- Roof insulation, double glazing, energy efficient window, insulated walls, floor insulation and completely insulated
- Heating
- CH boiler
- Hot water
- CH boiler
- CH boiler
- Kombi Kompakt HRE (gas-fired combination boiler from 2018, in ownership)
Cadastral data
- MAARSSEN B 7760
- Cadastral map
- Area
- 121 m²
- Ownership situation
- Full ownership
Exterior space
- Location
- Alongside a quiet road and in residential district
- Garden
- Back garden and front garden
- Back garden
- 41 m² (9.10 metre deep and 4.46 metre wide)
- Garden location
- Located at the northeast with rear access
Storage space
- Shed / storage
- Attached brick storage
- Facilities
- Electricity
- Insulation
- No cavity wall
Garage
- Type of garage
- Parking place
- Insulation
- No cavity wall
Parking
- Type of parking facilities
- Parking on private property and public parking
Photos 37
© 2001-2026 funda




































