
Description
Direct online een bezichtiging inplannen? Ga naar onze website!
Ben je op zoek naar jouw eerste eigen plek? Welkom bij dit charmante 2-kamer appartement in de populaire buurt Nije Veld! Perfect voor starters die een frisse, moderne woning zoeken met genoeg ruimte om comfortabel te leven. Geniet van de ruime woonkamer, een energielabel A en een zonnig balkon gelegen op het zuidoosten. De locatie is ideaal: je bent dichtbij winkels, openbaar vervoer en gezellige cafés. Dit is jouw kans om je eerste stap in de woningmarkt te zetten!
Bijzonderheden:
- Twee-kamer appartement met een eigentijdse uitstraling.
- Ruime woonkamer die uitnodigt tot ontspanning en gezelligheid.
- Energielabel A: duurzaam en laag in energiekosten.
- Zonnig balkon op het zuidoosten.
Gelegen in een levendige buurt met alle voorzieningen binnen handbereik.
Ideaal voor starters die klaar zijn voor hun eigen plek.
Indeling:
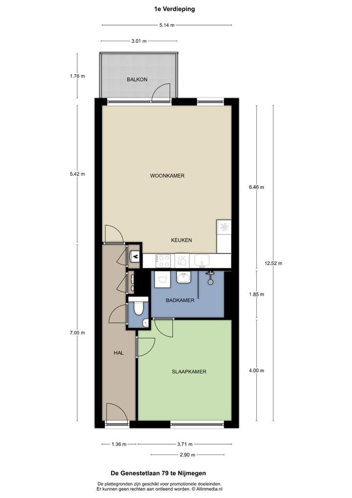
De ruime en lichte woonkamer geven een frisse uitstraling. Hier vind je de balans tussen gezelligheid en modern wonen. De keuken, slim ingedeeld, is voorzien van de nodige apparatuur.
Het appartement beschikt over één ruime slaapkamer. Via deze slaapkamer heb je toegang tot de badkamer welke is voorzien van een aansluiting voor de wasmachine en droger, wastafel en inloopdouche. Het aparte toilet bereik je via de hal.
En dan het balkon! Het balkon op het zuidoosten biedt de perfecte plek voor een knusse loungeplek met vrij uitzicht.
Met energielabel A ben je verzekerd van een groene toekomst met lage energiekosten. En de omgeving? Die biedt alles wat je je kunt wensen: van boodschappen doen op de hoek tot ontspannen in het park. Je woont hier op een steenworp afstand van alle gemakken die Nije Veld zo aantrekkelijk maken.
Features
Transfer of ownership
- Service charges
- € 142 per month
- Last asking price
- € 325,000 kosten koper
- Asking price per m²
- € 5,078
- Status
- Sold
Construction
- Type apartment
- Galleried apartment (apartment)
- Building type
- Resale property
- Year of construction
- 2008
- Type of roof
- Flat roof covered with asphalt roofing
Surface areas and volume
- Areas
- Living area
- 64 m²
- Exterior space attached to the building
- 5 m²
- External storage space
- 3 m²
- Volume in cubic meters
- 220 m³
Layout
- Number of rooms
- 2 rooms (1 bedroom)
- Number of bath rooms
- 1 bathroom and 1 separate toilet
- Bathroom facilities
- Walk-in shower and sink
- Number of stories
- 4 stories
- Facilities
- Elevator, mechanical ventilation, and passive ventilation system
- Located at
- 1st floor
Energy
- Energy label
- A
- Insulation
- Roof insulation, energy efficient window and completely insulated
- Heating
- CH boiler
- Hot water
- CH boiler
Cadastral data
- HATERT M 5022
- Cadastral map
- Ownership situation
- Full ownership
Exterior space
- Location
- In residential district and unobstructed view
- Balcony/roof terrace
- Balcony present
Storage space
- Shed / storage
- Built-in
- Facilities
- Electricity
Parking
- Type of parking facilities
- Public parking
VVE (Owners Association) checklist
- Registration with KvK
- Yes
- Annual meeting
- Yes
- Periodic contribution
- Yes
- Reserve fund present
- Yes
- Maintenance plan
- Yes
- Building insurance
- Yes
Photos 25
© 2001-2025 funda
























