
Description
Welkom bij de Schuitenberg 30A in Roermond, een comfortabel 3-kamerappartement gelegen op een toplocatie in het bruisende stadscentrum. Dit sfeervolle appartement biedt een lichte woonkamer, twee ruime slaapkamers en een praktische indeling. Ideaal voor starters of als pied-á-terre voor wie van het stadsleven wil genieten. Het prachtige instapklare gemeubileerde en gestoffeerde appartement met 2 slaapkamers en een groot balkon is zeker een bezoek waard!
Ligging
Gelegen in het hart van Roermond, op een uitstekende locatie met alle voorzieningen binnen handbereik. De woning ligt op loopafstand van het gezellige stadscentrum, waar je kunt genieten van een breed aanbod aan winkels, restaurants, cafés en culturele bezienswaardigheden. De nabijgelegen Roerpromenade biedt prachtige wandelroutes langs de rivier, ideaal voor ontspanning.
De bereikbaarheid is ook uitstekend; het NS station van Roermond ligt op enkele minuten afstand en met de nabijheid van de A73 en N280 zijn belangrijke uitvalswegen snel bereikbaar. Dit maakt de ligging ideaal voor zowel stedelijke voorzieningen als snelle verbindingen naar andere steden.
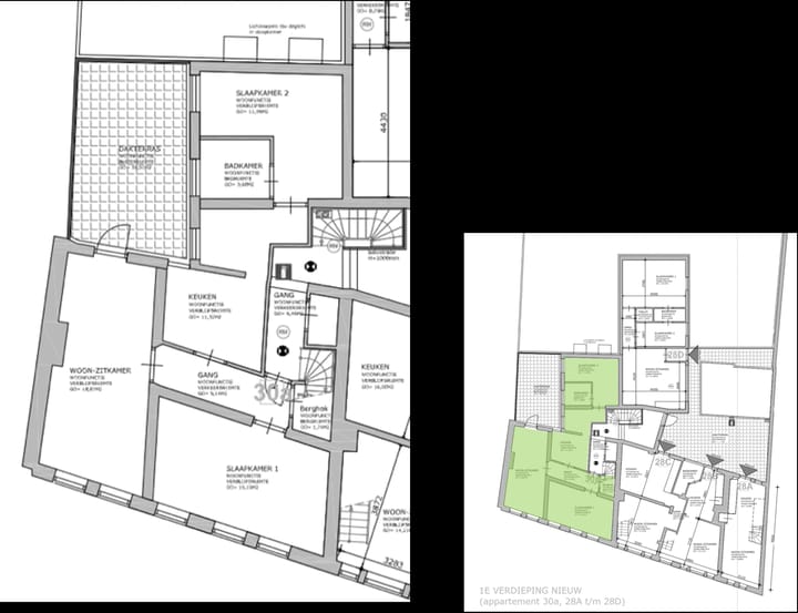
Indeling :
Entree :
Via een trapopgang krijg je toegang tot het appartement op de eerste verdieping.
Appartement :
Je komt binnen in de hal en vervolgens in de keuken en eetkamer. De sfeervolle keuken be-schikt over onder- en bovenkasten, een spoelelement, koelkast, vriezer en een combi magnetron. Vervolgens loop je door naar de woonkamer. De woonkamer is heerlijk licht door de grote raampartij en gezellige uitzicht op het monumentale pand en aan de andere zijde een royaal dakterras. Aan de overloop van de keuken grenst de badkamer en nog een slaapkamer. Het appartement is recentelijk gerenoveerd en voorzien van een mooie laminaatvloer.
Bijzonderheden :
Bouwjaar : 1923
Inhoud : 160 m3
Woonoppervlakte : 64 m2, conform NEN2580 voorwaarden gemeten;
- VVE bijdrage € 75,- per maand;
- Gedeeltelijk voorzien van dubbel glas;
- Verwarming en warm water middels CV ketel Remeha bouwjaar 200;
- Energielabel D;
- Gezamenlijke berging voor fiets(en);
- Aanvaarding/oplevering in overleg.
Informatieverstrekking, maten en oppervlakten – geen aansprakelijkheid MMX Makelaars
Deze informatie is door MMX Makelaars met de grootste zorgvuldigheid samengesteld. Wij aanvaarden echter geen enkele aansprakelijkheid voor eventuele onvolledigheid, onjuistheid of anderszins, dan wel voor de gevolgen daarvan. Alle opgegeven maten en oppervlakten zijn indicatief. Hieraan kunnen geen rechten worden ontleend.
Features
Transfer of ownership
- Last asking price
- € 235,000 kosten koper
- Asking price per m²
- € 3,672
- Status
- Sold
- VVE (Owners Association) contribution
- € 75.00 per month
Construction
- Type apartment
- Upstairs apartment (apartment)
- Building type
- Resale property
- Year of construction
- 1923
- Specific
- With carpets and curtains
Surface areas and volume
- Areas
- Living area
- 64 m²
- Other space inside the building
- 6 m²
- Volume in cubic meters
- 160 m³
Layout
- Number of rooms
- 3 rooms (2 bedrooms)
- Number of bath rooms
- 1 bathroom and 1 separate toilet
- Number of stories
- 1 story
- Located at
- 1st floor
Energy
- Energy label
- D
- Insulation
- Partly double glazed
- Heating
- CH boiler
- Hot water
- CH boiler
- CH boiler
- Remeha (gas-fired combination boiler from 2000, in ownership)
Exterior space
- Location
- In centre
VVE (Owners Association) checklist
- Registration with KvK
- No
- Annual meeting
- No
- Periodic contribution
- Yes (€ 75.00 per month)
- Reserve fund present
- No
- Maintenance plan
- No
- Building insurance
- No
Photos 14
© 2001-2025 funda













