
Description
Het is eindeloos genieten van de drukbevaren Westerschelde in dit royale 3-kamerappartement met dubbel balkon, ruime berging in de onderbouw en eigen parkeerplaats in de parkeergarage. Gelegen direct aan de Westerschelde op de 7e verdieping van “Scheldeflat I” met voorzieningen en het centrum van Terneuzen op korte afstand.
Dit aantrekkelijke en recent gerenoveerde appartement is schitterend gelegen en biedt een magnifiek zicht op de drukbevaren Westerschelde en aan de zuidzijde op de groene stad Terneuzen. Het appartement is zeer netjes onderhouden en mooi afgewerkt met o.a. een moderne compleet ingerichte keuken.
Indeling:
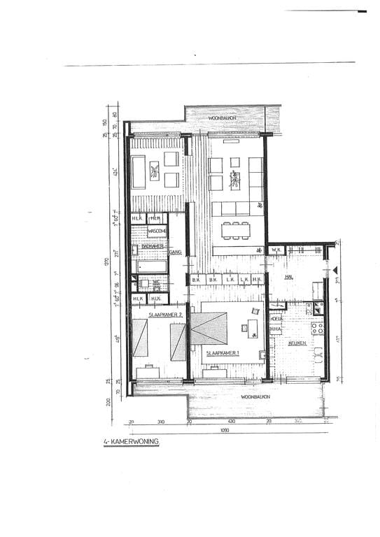
Binnenkomst in de hal, voorzien van tegelvloer, met videofoon, meterkast (9 groepen), garderobe en werkkast. Vanuit de hal zijn de woonkamer en woonkeuken bereikbaar.
De royale L-vormige woonkamer (45 m2) is voorzien van een mooie PVC-vloer en een ruime inbouwkastenwand. De grote raampartijen bieden een fantastisch uitzicht over de Westerschelde. Het Scheldebalkon met zonnescreens is op het noordwesten gelegen, waar het heerlijk genieten is van de namiddagzon tot zonsondergang.
De woonkeuken met tegelvloer geeft toegang tot het ruime tweede balkon met zonneschermen en is aan de zuidoostzijde van het gebouw gelegen. De complete keuken is voorzien van een moderne inrichting (vernieuwd in 2021) met inbouwapparatuur van Bosch:
* inductiekookplaat
* afzuigkap
* magnetron
* oven
* vaatwasser
* koelkast
* vriezer
* dubbele spoelbak
Daarnaast is de Nefit HR cv-combi ketel (2019) netjes geïntegreerd in de keuken en is er voldoende ruimte voor het plaatsen van een ontbijttafel.
Vanuit de binnenhal zijn de 2 ruime slaapkamers, badkamer en het toilet met fonteintje bereikbaar.
De geheel vernieuwde luxe badkamer (2021) is geheel betegeld en uitgevoerd met een ruime inloopdouche en dubbele wastafel met meubel. Tevens is hier de aansluiting voor de wasapparatuur.
De master bedroom van circa 22m² heeft eveneens toegang tot het ruime balkon aan de landzijde en in de kleinere slaapkamer is in de vaste kast keurig de warm water boiler (huur) voor de badkamer weggewerkt. Beide slaapkamers zijn gelegen aan de achterzijde van het appartement en zijn ook voorzien van een PVC vloer.
Berging en parkeren
In de onderbouw van het complex (1e verdieping) beschikt het appartement nog over een royale berging (550*210cm) en een eigen parkeerplaats (370*565cm) in de algemene garage.
Algemeen;
- Servicekosten appartement EUR 240,61 p/m
- Servicekosten parkeergarage EUR 20,00 p/m
- Huurboiler warm water EUR 17,43 p/m
Droomt u ook van onbezorgd wonen op een heerlijke rustige woonlocatie met een fantastisch zicht op de druk bevaren Westerschelde en op korte afstand van alle voorzieningen?
Neem gerust contact met ons op voor meer informatie en plan een bezichtiging in!
Features
Transfer of ownership
- Last asking price
- € 375,000 kosten koper
- Asking price per m²
- € 3,024
- Status
- Sold
- VVE (Owners Association) contribution
- € 240.61 per month
Construction
- Type apartment
- Apartment with shared street entrance (apartment)
- Building type
- Resale property
- Year of construction
- 1971
- Type of roof
- Flat roof covered with asphalt roofing
Surface areas and volume
- Areas
- Living area
- 124 m²
- Other space inside the building
- 12 m²
- Exterior space attached to the building
- 24 m²
- Volume in cubic meters
- 325 m³
Layout
- Number of rooms
- 3 rooms (2 bedrooms)
- Number of bath rooms
- 1 bathroom and 1 separate toilet
- Bathroom facilities
- Double sink, walk-in shower, and washstand
- Number of stories
- 1 story
- Facilities
- Outdoor awning, elevator, mechanical ventilation, and TV via cable
- Located at
- 7th floor
Energy
- Energy label
- A
- Insulation
- Energy efficient window and insulated walls
- Heating
- CH boiler
- Hot water
- Electrical boiler (rental)
- CH boiler
- Nefit (gas-fired combination boiler from 2019, in ownership)
Cadastral data
- TERNEUZEN D 1001
- Cadastral map
- Ownership situation
- Full ownership
- TERNEUZEN D 2375
- Cadastral map
- Ownership situation
- Full ownership
Exterior space
- Location
- Along waterway, unobstructed view and sea view
- Balcony/roof terrace
- Balcony present
Storage space
- Shed / storage
- Built-in
- Facilities
- Electricity
- Insulation
- No insulation
Garage
- Type of garage
- Parking place
- Insulation
- No insulation
Parking
- Type of parking facilities
- Public parking
VVE (Owners Association) checklist
- Registration with KvK
- Yes
- Annual meeting
- Yes
- Periodic contribution
- No
- Reserve fund present
- Yes
- Maintenance plan
- Yes
- Building insurance
- Yes
Photos 20
© 2001-2025 funda



















