
Description
JONG GELUK
Deze leuke moderne tussenwoning, in een rijtje van vier, is buitengewoon geschikt voor een jong stel of gezin die lekker zonder zorgen willen gaan wonen. Zowel de woning als de tuin zijn helemaal af en afgewerkt met neutrale kleuren. Volledig geïsoleerd (bouwjaar 2009) en voorzien van 8 zonnepanelen, resulterend in een energielabel A. De woning is gelegen in woonwijk Kerkverreweide, een geliefde woonwijk, dichtbij (basis)scholen en speeltuinen.
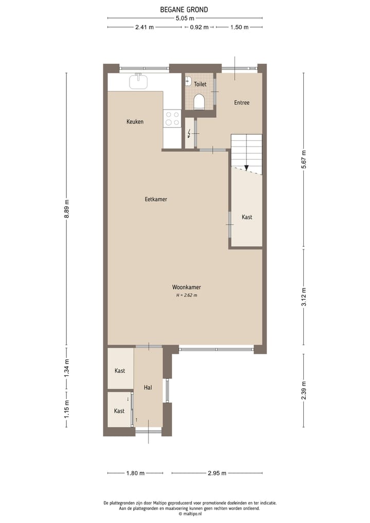
Indeling: hal, meterkast, moderne toiletruime voorzien van een zwevend toilet met een fonteintje, vaste trap naar de eerste verdieping, deur naar de woonkamer. De woonkamer met praktische trapkast is gelegen aan de achterzijde van de woning. De open keuken aan de voorzijde. De keuken heeft een unit in hoekopstelling in een neutrale kleurstelling en is voorzien van inbouwapparatuur. Aan de achterzijde van de woning een bijkeuken met de aansluitingen voor de wasmachine en bergruimte, die ook dienst doet als toegang achterom.
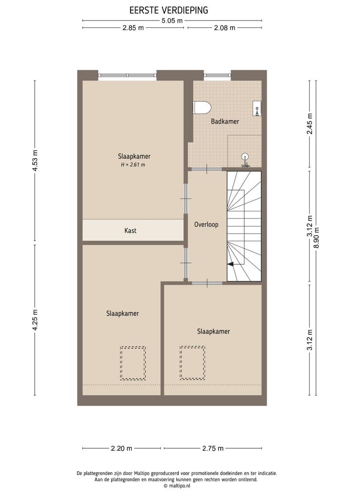
Eerste verdieping: overloop met vaste trap naar de tweede verdieping, drie leuke slaapkamers en de nette badkamer met douchecabine, 2e toilet en een wastafelmeubel met spiegel.
Tweede verdieping: overloop met dakraam, opstelling van de cv-ketel en aansluitingen voor de wasmachine. In 2023 is op deze verdieping een extra slaap/werkkamer gecreëerd, voorzien van dakraam en berging.
In de achtertuin, ook achterom bereikbaar, staat een prachtige houten berging met overkapping, geschikt voor het bergen van tuinspullen en de barbecue. De achtertuin is gelegen op het zonnige westen en is ingericht met terras, zandbak en gazon. De borders staan vol met prachtige siergrassen en kleurige vaste planten waar je het hele jaar door van kunt genieten.
Het totale perceeloppervlak bedraagt 140 m2. Voor de woning is op openbaar terrein voldoende mogelijkheid voor het parkeren van de auto.
Wijk en Aalburg is een gemoedelijk Brabants dorp met veel voorzieningen als winkels, scholen, bibliotheek, diverse kerken en veel (sport)verenigingen. De nabijheid van natuur in de omgeving, in de uiterwaarden en aan de afgedamde Maas biedt mogelijkheden voor (sportieve) recreatie in de buitenlucht; wandelen, fietsen en zwemmen bij een van de strandjes aan de Maas, heerlijk om te doen! Het dorp is dichtbij de uitvalswegen A2, A59 en A27 gelegen zodat grote steden goed te bereiken zijn.
Willen jullie aan de toekomst bouwen? Bel voor een bezichtiging ViaJoop Makelaardij!
Features
Transfer of ownership
- Last asking price
- € 415,000 kosten koper
- Asking price per m²
- € 3,673
- Status
- Sold
Construction
- Kind of house
- Single-family home, row house
- Building type
- Resale property
- Year of construction
- 2009
- Type of roof
- Gable roof covered with roof tiles
Surface areas and volume
- Areas
- Living area
- 113 m²
- External storage space
- 7 m²
- Plot size
- 427 m²
- Volume in cubic meters
- 398 m³
Layout
- Number of rooms
- 5 rooms (4 bedrooms)
- Number of bath rooms
- 1 bathroom and 1 separate toilet
- Bathroom facilities
- Shower, toilet, sink, and washstand
- Number of stories
- 3 stories
- Facilities
- Skylight, mechanical ventilation, TV via cable, and solar panels
Energy
- Energy label
- A
- Insulation
- Energy efficient window and completely insulated
- Heating
- CH boiler
- Hot water
- CH boiler
- CH boiler
- Remeha Quinta (gas-fired combination boiler from 2009, in ownership)
Cadastral data
- AALBURG F 3923
- Cadastral map
- Area
- 140 m²
- Ownership situation
- Full ownership
- AALBURG F 3573
- Cadastral map
- Area
- 157 m² (part of parcel)
- Ownership situation
- Full ownership
- AALBURG F 3920
- Cadastral map
- Area
- 130 m² (part of parcel)
- Ownership situation
- Full ownership
Exterior space
- Location
- Alongside a quiet road and in residential district
- Garden
- Back garden and front garden
- Back garden
- 57 m² (11.60 metre deep and 5.20 metre wide)
- Garden location
- Located at the west with rear access
Storage space
- Shed / storage
- Detached wooden storage
- Facilities
- Electricity
- Insulation
- Roof insulation
Parking
- Type of parking facilities
- Public parking
Photos 49
© 2001-2026 funda
















































