
Description
Bijzonder leuke benedenwoning met tuin op een centrale plek in Woerden nabij de binnenstad van Woerden en op loopafstand van een winkelcentrum.
Deze woning is in 2020 nieuw ontwikkelt en perfect als starterswoning of wanneer de wens is om gelijkvloers te gaan wonen. Keurig afgewerkt en onderhouden met openslaande deuren naar de tuin, airco, open keuken en een slaapkamer met en suite badkamer.
Rustig gelegen aan een doodlopende waar u optimaal kunt genieten in de zonnige tuin met een ligging op het zuiden. Rondom de woning voldoende openbare parkeergelegenheden.
De ligging aan dit deel van de Leidsestraatweg is rustig en erg centraal gelegen met de gezellige binnenstad van Woerden op slechts 4 minuten fietsen afstand. Het treinstation van Woerden is circa 6 minuten fietsen. Het overdekte winkelcentrum is maar een paar minuten lopen; hier vindt u o.a.; supermarkt, Action, cafetaria, horeca, bloemist, slagerij, Primera, bakker en slijterij.
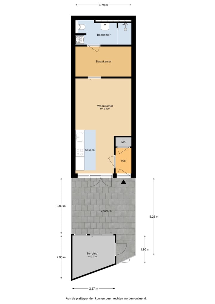
Begane grond:
Via de voortuin bereikt u de entree; bij binnenkomst een hal met meterkast en toegang naar de woonkamer. De woonkamer met open keuken heeft een aangename plafondhoogte en fraaie openslaande deuren naar de tuin. De grote glazen pui biedt veel lichtinval binnen en is buiten uitgerust met een groot zonnescherm.
De keuken heeft een complete inrichting met kookplaat (inductie), afzuiging, vaatwasser, spoelbak, oven en koelkast.
Vanuit de woonkamer toegang naar de achtergelegen slaapkamer met aangrenzende badkamer. De ruimtes kunnen verwarmd worden met een van de (elektrische) radiatoren en/of de airco installatie, volledig gasloos wonen!
De badkamer is verzorgd en netjes afgewerkt met volledig betegelde wanden, wastafel met meubel, inloopdouche, toilet en wasmachine aansluiting.
Disclaimer
Aanbiedingsinformatie kan niet worden beschouwd als een aanbieding en offerte. Informatie, eventuele gesprekken, onderhandelingen en dergelijke blijven vrijblijvend. Overeenstemming wordt pas bereikt op het moment dat een ondertekende overeenkomst is gesloten. Wij kunnen geen aansprakelijkheid aanvaarden voor de samengestelde gegevens.
Features
Transfer of ownership
- Last asking price
- € 295,000 kosten koper
- Asking price per m²
- € 7,564
- Status
- Sold
- VVE (Owners Association) contribution
- € 37.00 per month
Construction
- Type apartment
- Ground-floor apartment (apartment)
- Building type
- Resale property
- Year of construction
- 1970
- Specific
- Partly furnished with carpets and curtains
- Type of roof
- Flat roof covered with other
- Accessibility
- Accessible for people with a disability and accessible for the elderly
Surface areas and volume
- Areas
- Living area
- 39 m²
- External storage space
- 7 m²
- Volume in cubic meters
- 161 m³
Layout
- Number of rooms
- 2 rooms (1 bedroom)
- Number of bath rooms
- 1 bathroom and 1 separate toilet
- Bathroom facilities
- Shower, toilet, sink, and washstand
- Number of stories
- 1 story
- Facilities
- Air conditioning, outdoor awning, optical fibre, mechanical ventilation, and passive ventilation system
- Located at
- Ground floor
Energy
- Energy label
- C
- Insulation
- Roof insulation, double glazing and energy efficient window
- Heating
- Electric heating and hot air heating
- Hot water
- Electrical boiler
Cadastral data
- WOERDEN B 9438
- Cadastral map
- Ownership situation
- Full ownership
Exterior space
- Location
- Alongside a quiet road and in residential district
- Garden
- Front garden
- Front garden
- 21 m² (5.25 metre deep and 3.95 metre wide)
- Garden location
- Located at the south
Storage space
- Shed / storage
- Detached wooden storage
- Facilities
- Electricity
Parking
- Type of parking facilities
- Public parking
VVE (Owners Association) checklist
- Registration with KvK
- Yes
- Annual meeting
- No
- Periodic contribution
- Yes (€ 37.00 per month)
- Reserve fund present
- Yes
- Maintenance plan
- No
- Building insurance
- Yes
Photos 35
© 2001-2025 funda


































