
Eye-catcherRoyale drive-in woning met tuin, garage, eigen oprit en 2 x terras
Description
In de geliefde wijk Holy staat deze royale drive-in woning die volop mogelijkheden biedt. Hier woon je op een ideale plek: op loopafstand van winkelcentrum De Loper voor de dagelijkse boodschappen, scholen en sportverenigingen in de buurt en met het openbaar vervoer bijna voor de deur. Toch geniet je thuis van rust en ruimte, zowel binnen als buiten. De woning beschikt over een eigen garage met een ruime oprit, een slaapkamer op de begane grond die ook perfect als werkkamer kan dienen, een diepe achtertuin en bovendien twee fijne terrassen waar je in alle seizoenen van het buitenleven kunt genieten. Hoewel de woning gemoderniseerd mag worden naar eigen smaak, biedt de indeling en de hoeveelheid ruimte een solide basis om hier jouw droomhuis van te maken.
INDELING
Vanaf de straat is er een direct toegang tot de bestraten oprit. Deze biedt ruimte aan zeker twee auto’s en de garage en de voordeur zijn direct toegankelijk.
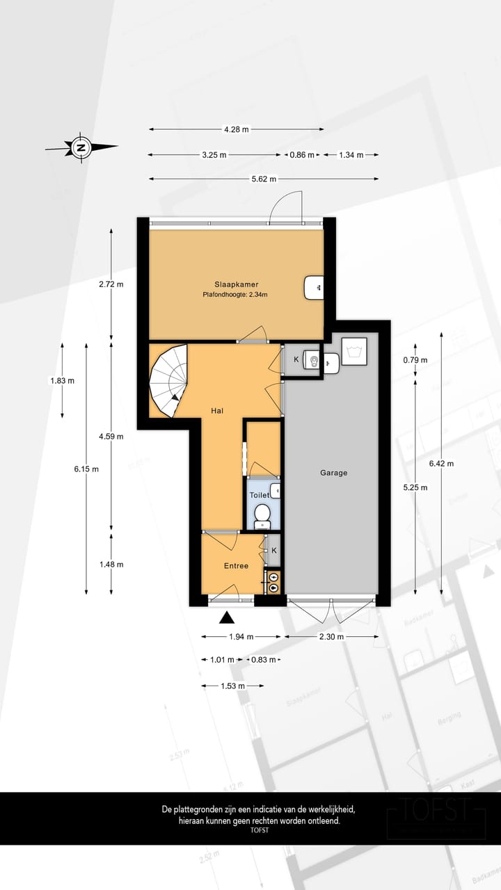
BEGANE GROND
Na de voordeur is er toegang tot de afgesloten entree met de meterkast en een vaste kast. Op de vloer ligt vloerbedekking en de wanden zijn afgewerkt met spachtelputz. Na de entreehal is de aangrenzende hal bereikbaar, die eveneens is voorzien van vloerbedekking en spachtelputz wanden. Deze beschikt over een spiltrap naar de verdiepingen, een vaste kast met de opstelling van de Cv-ketel en een open toegankelijk halletje met ruimte voor de garderobe en toegang tot het toilet. Daarnaast is er vanuit de hal nog toegang tot de garage en de eerste slaapkamer.
Het toilet is gedeeltelijk betegeld en voorzien van een staande toiletpot, een fonteintje en afzuiging.
De garage is handig voorzien van een tegelvloer en beschikt over elektra, verlichting, een wasmachine aansluiting en een uitstort gootsteen.
De eerste slaapkamer is tuingericht en is, indien gewenst uitermate geschikt als werkkamer. Er ligt een lichte laminaatvloer en de wanden zijn behangen. Het hardhout kozijnen is voorzien van enkel glas, er is een deur naar de achtertuin en er hangt een wastafel.
De diepe achtertuin is fraai bestraat met waaltjes en daarlangs voorzien van beplanting. De houten schuttingen zorgen voor een afscheiding naar de buren en achterin de tuin staat een groene haag. Het gedeelte bij de tuin is deels overdekt door het bovengelegen terras en er hangt een buitenlamp.
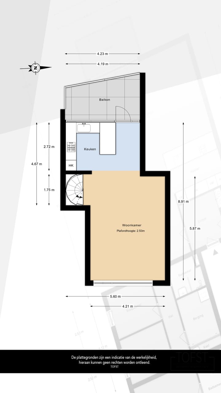
1E VERDIEPING
Na de trapopgang is er een open toegang tot deze woonverdieping, waarbij de woonkamer is gesitueerd aan de voorzijde en aan de achterzijde bevindt zich de open keuken. De vloer is voorzien van vloerbedekking en de wanden zijn deels behangen en deels voorzien van spachtelputz. Aan de voorzijde is het hardhouten kozijnen voorzien van dubbel glas en aan de achterzijde is het voorzien van enkel glas.
De keuken is opgesteld in een U-vorm en heeft aan het verhoogde gedeelte richting het terras een breed keukenblad, dat plaatst biedt aan eetkamerstoelen. De achterwand is netjes betegeld en naast dat er bovenkasten aanwezig zijn, is er ook een oven, een 4-pits gaskookplaat en een afzuigkap ingebouwd. De open kast biedt plaats aan een koelkast en onder het aanrechtblad is er ruimte voor een vaatwasser. De vloer is voorzien van vinyl en het plafond is glad afgewerkt.
Het terras is deels overdekt en biedt een rustig uitzicht over de achtertuin. Aan de gevel hangt een zonnescherm en de vloer is bedekt met houten vlonderplanken.
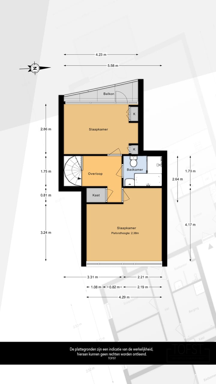
2E VERDIEPING
De overloop op deze verdieping geeft toegang tot de andere twee slaapkamers en de badkamer. Tevens is er een vaste kast aanwezig, is de vloer voorzien van vloerbedekking, zijn de wanden afgewerkt met spachtelputz en is het houten schroten plafond voorzien van inbouw spots.
De tweede slaapkamer is gelegen aan de voorzijde en is voorzien van vloerbedekking en behang. De derde slaapkamer is gelegen aan de achterzijde en beschikt over vaste kasten en een deur naar het tweede terras. De vloer is hier voorzien van laminaat en de wanden zijn behangen. Daarnaast zijn beide slaapkamers voorzien van hardhouten kozijnen met enkel glas.
De tweede terras is eveneens overdekt en aan de gevel hangt een zonnescherm.
De inpandige badkamer is halfhoog betegeld en uitgerust met een douchecabine, een ligbad met een handdouche, een wastafel en een toilet.
BIJZONDERHEDEN
- De woning is voorzien van hardhouten kozijnen met enkel glas
- De beschikking over een ruime oprit
- Eigen garage met verlichting, elektra, een wasmachine aansluiting en een uitstort gootsteen
- Twee terrassen op zowel de woon- als de slaapverdieping
- Diepe achtertuin
- De meterkast is voorzien van slimme meters
- Cv-ketel voor verwarming en warm water (ca. 2003)
- Gelegen op eigen grond
- Bouwjaar 1969
- Energielabel F
- Oplevering in overleg
Woonoppervlakte
De Meetinstructie is gebaseerd op de NEN2580. De Meetinstructie is bedoeld om een meer eenduidige manier van meten toe te passen voor het geven van een indicatie van de gebruiksoppervlakte. De Meetinstructie sluit verschillen in meetuitkomsten niet volledig uit, door bijvoorbeeld interpretatieverschillen, afrondingen of beperkingen bij het uitvoeren van de meting. Indien de exacte maten voor een koper van cruciaal belang zijn, adviseren wij deze zelf na te meten. De (kandidaat)koper(s) zullen, indien gewenst, daartoe in de gelegenheid gesteld worden op een passend moment teneinde teleurstellingen en schade te voorkomen.
Ouderdomsclausule
Bij woningen ouder dan 30 jaar zal er standaard in de koopakte een ouderdomsclausule worden opgenomen.
Notariskeuze en kosten
In principe ligt de notariskeuze bij de koper. Het doorhalen van de hypothecaire inschrijving in het kadaster moet door de verkoper betaald worden. Zijn de kosten voor deze doorhaling hoger dan € 400,- inclusief BTW dan wordt het meerdere bij de koper in rekening gebracht. Indien de koper een notaris kiest buiten een straal van 20 kilometer van de verkochte onroerende zaak dan zijn de eventuele kosten die de notaris berekent voor een eventuele verkoopvolmacht en legalisatie hiervan ten behoeve van de verkoper voor rekening van de koper.
Zelfbewoningsplicht
Koper is bekend met de zelfbewoningsplicht welke vanaf 01-01-2023 binnen de gemeente Vlaardingen van kracht is. De verkopend makelaar heeft koper doorverwezen naar de gemeente Vlaardingen omtrent de desbetreffende regelgeving. Verkoper noch verkopend makelaar aanvaarden geen enkele aansprakelijkheid voor geleden schade wegens het niet juist naleven van deze zelfbewoningsplicht.
Gunning
Verkoper behoudt zich uitdrukkelijk het recht voor het object te gunnen aan de gegadigde van zijn keuze.
Nadrukkelijk zij vermeld dat alle informatie in deze brochure moet beschouwd worden als een uitnodiging tot het doen van een bod of om in onderhandeling te treden. Er kunnen geen rechten worden ontleend aan deze informatie.
Vlietlanden NVM Makelaars streeft ernaar de informatie op haar website / brochures en andere uitingen zo actueel en nauwkeurig mogelijk weer te geven. Hoewel de informatie met de grootst mogelijke zorgvuldigheid is samengesteld aanvaarden wij geen enkele aansprakelijkheid ten aanzien van de juistheid van de vermelde gegevens.
Features
Transfer of ownership
- Original asking price
- € 439,000 kosten koper
- Listed since
- Acceptance
- Available in consultation
- Asking price
- € 420,000 kosten koper
- Asking price per m²
- € 3,889
- Status
- Sold under reservation
Construction
- Kind of house
- Single-family home, row house
- Building type
- Resale property
- Year of construction
- 1969
- Type of roof
- Flat roof covered with asphalt roofing
Surface areas and volume
- Areas
- Living area
- 108 m²
- Other space inside the building
- 14 m²
- Exterior space attached to the building
- 18 m²
- Plot size
- 152 m²
- Volume in cubic meters
- 419 m³
Layout
- Number of rooms
- 4 rooms (3 bedrooms)
- Number of bath rooms
- 1 bathroom and 1 separate toilet
- Bathroom facilities
- Shower, bath, toilet, and sink
- Number of stories
- 3 stories
- Facilities
- Outdoor awning and TV via cable
Energy
- Energy label
- F
- Insulation
- Partly double glazed
- Heating
- CH boiler
- Hot water
- CH boiler
- CH boiler
- Gas-fired combination boiler from 2003, in ownership
Cadastral data
- VLAARDINGEN K 840
- Cadastral map
- Area
- 152 m²
- Ownership situation
- Full ownership
Exterior space
- Location
- In residential district
- Garden
- Back garden and front garden
- Back garden
- 68 m² (12.15 metre deep and 5.62 metre wide)
- Garden location
- Located at the west with rear access
- Balcony/roof terrace
- Roof terrace present
Garage
- Type of garage
- Built-in
- Capacity
- 1 car
- Facilities
- Electricity, heating and running water
Parking
- Type of parking facilities
- Parking on private property and public parking
Photos 39
Floorplans 4
© 2001-2025 funda










































