
Description
Welkom in deze uitgebouwde en opgebouwde 2-onder-1-kapwoning gelegen in de luwte van het centrum van Vlijmen. Met vier slaapkamers, energielabel A en een royale achtertuin is dit de ideale gezinswoning voorzien van optimaal comfort.
Deze instapklare woning biedt niet alleen ruimte, maar is ook helemaal klaar voor de toekomst. Met maar liefst 18 zonnepanelen op het dak geniet je van lage energiekosten en een duurzame levensstijl.
INDELING
Begane grond:
De woonkamer is ruim opgezet en geniet van veel natuurlijk licht dankzij de grote en-suite schuifpui aan de achterzijde van de woning. De indeling is speels en praktisch: aan de achterzijde bevindt zich een comfortabele zitkamer met voldoende ruimte voor een royale hoekbank, tv-meubel en overige inrichting. Aan de voorzijde is een ruime eetkamer gecreëerd, met plaats voor een grote eettafel met stoelen – een ideale plek voor gezellige diners en borrels met familie/vrienden.
Centraal in de ruimte bevindt zich de open keuken, die het hart van de woning vormt. De keuken is uitgerust met moderne inbouwapparatuur, waaronder een combi-oven, stoomoven, koelkast, vriezer, vaatwasser, gaskookplaat en spoelbak. De afwerking is van hoog niveau: de wanden en plafonds zijn strak gestuct en voorzien van sfeervolle inbouwspots. De moderne grindvloer in een stijlvolle lichtgrijze kleur completeert het geheel en zorgt voor een eigentijdse uitstraling.
Tussen de keuken en de garage bevindt zich een praktische bergkast met doorgang naar de garage. Ideaal voor het opbergen van voorraad en andere spullen. Vanuit deze kast kom je in de garage, die naast extra bergruimte ook is voorzien van aansluitingen voor een wasmachine en droger. Een keukenblok met spoelbak maakt deze ruimte bijzonder praktisch en geschikt voor diverse doeleinden, zoals hobby’s of klussen. Boven de garage bevindt zich een ruime, geïsoleerde zolder, bereikbaar via een vlizotrap. Deze ruimte biedt volop mogelijkheden, bijvoorbeeld als speelkamer of extra opslagruimte. Tot slot bevinden zich in de hal nog het aparte toilet met fonteintje en de meterkast.
Eerste verdieping:
De eerste verdieping is bereikbaar via de vaste trap in de hal en komt uit op een ruime overloop die toegang biedt tot drie volwaardige slaapkamers en een moderne badkamer. De hoofdslaapkamer bevindt zich aan de achterzijde van de woning en beschikt over een royale oppervlakte. Er is voldoende ruimte voor een groot tweepersoonsbed met nachtkastjes en aanvullende meubels. Daarnaast is er een volledige wand beschikbaar voor het plaatsen van een royale kledingkast. Via stijlvolle en-suite schuifdeuren is het aangename balkon bereikbaar. Dit biedt niet alleen een fijne plek om van de buitenlucht te genieten, maar zorgt tevens voor een overvloed aan daglicht in de slaapkamer. De twee overige slaapkamers zijn eveneens ruim van formaat en daardoor flexibel in te delen, bijvoorbeeld als extra slaapkamer, werkkamer of inloopkast. De moderne badkamer is uitgevoerd met eigentijdse materialen en kleurstellingen. De ruimte is voorzien van een ligbad met douche, een toilet en een dubbele wastafel met een stijlvol meubel.
Tweede verdieping:
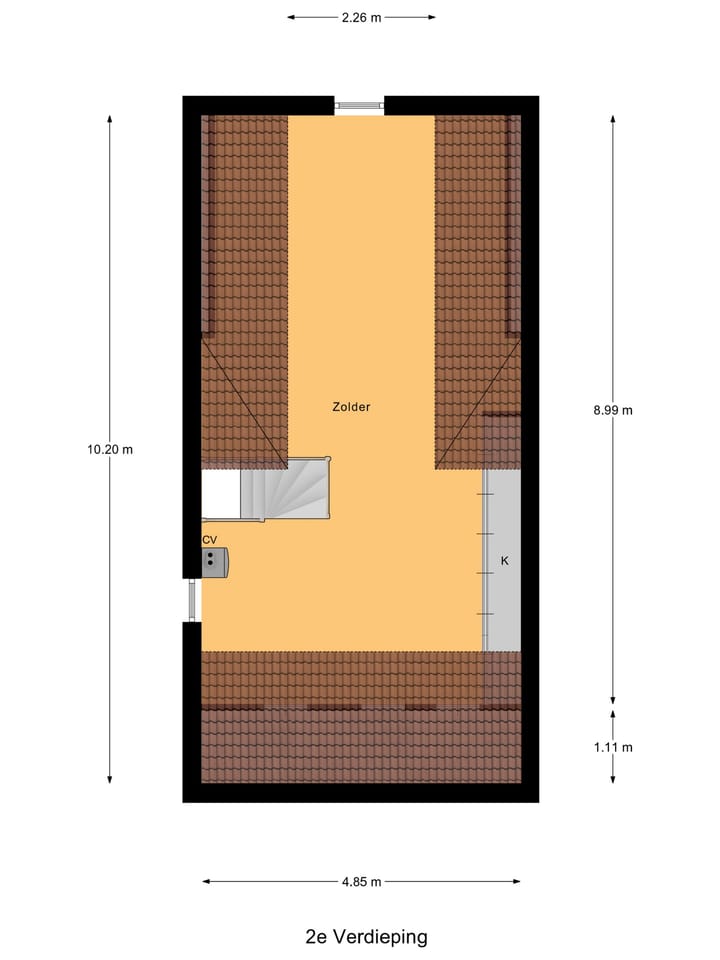
De tweede verdieping is eveneens bereikbaar via een vaste trap en biedt plaats aan de vierde slaapkamer van de woning. Deze ruime zolderkamer is uitstekend geschikt als volwaardige slaapkamer en biedt voldoende plek voor een tweepersoonsbed met nachtkastjes. De zichtbare houten balken van de kapconstructie geven de ruimte een karakteristieke uitstraling. Dankzij het aanwezige raam geniet de kamer van prettig daglicht. Er is daarnaast voldoende ruimte om een bank en een volwaardig bureau te plaatsen, wat de kamer veelzijdig maakt in gebruik. Op deze verdieping bevindt zich tevens de opstelplaats voor de cv-ketel. Op zolder is daarnaast een grote, diepe inbouwkast aanwezig, die veel bergruimte biedt. Indien gewenst kan de verdieping ook worden opgedeeld in twee afzonderlijke slaapkamers.
Buitenruimte:
De ruime en goed onderhouden buitenruimte vormt een groot pluspunt van deze woning. De achtertuin is met zorg aangelegd en beschikt over een combinatie van grote, nette tegels en een fraai aangelegde groenvoorziening met kunstgras. Direct aan de woning bevindt zich een brede, elektrisch bedienbare zonneluifel, waaronder een comfortabele zitruimte kan worden gecreëerd met een grote tuintafel en diverse stoelen – ideaal om in de zomermaanden te genieten met familie en vrienden.
Aan de achterzijde van de tuin bevindt zich een stijlvolle overkapping, volledig ingericht om het hele jaar door van het buitenleven te kunnen genieten. De overkapping is voorzien van een buitenkeuken en een houtkachel, wat niet alleen voor extra warmte zorgt in de koudere maanden, maar ook bijdraagt aan de sfeervolle uitstraling. Onder de overkapping is voldoende ruimte voor een royale eettafel of een comfortabele loungeset.
Daarnaast is er een praktische berging aanwezig, ideaal voor het opbergen van tuingereedschap, fietsen of andere tuinbenodigdheden. Tot slot is er een praktische achterom aanwezig via een houten poortje.
Locatie:
De woning ligt in een rustige en kindvriendelijke woonwijk in het gezellige centrum van Vlijmen. Alle dagelijkse voorzieningen zoals supermarkten, winkels en eetgelegenheden zijn op loopafstand te vinden. Moet je de stad in? De A59 ligt vlakbij waardoor je in nog tien minuten in het bruisende hart van 's-Hertogenbosch bent. Ideaal voor werk of een dagje winkelen. En voor wie graag de natuur in trekt zijn de prachtige ''Loonse en Drunense Duinen'' en het ''Engelermeer'' op korte afstand. Hier kun je heerlijk wandelen, fietsen of gewoon even uitwaaien in de natuur.
Bijzonderheden:
- Uitgebouwde en opgebouwde twee-onder-één-kapwoning;
- Energielabel A;
- 18 zonnepanelen;
- Luxe keuken met moderne inbouwapparatuur;
- Vier slaapkamers, waarvan hoofdslaapkamer met balkon;
- Inpandige en geïsoleerde garage voorzien van elektra en water;
- Ruimte oprit;
- Royale en verzorgde buitenruimte op het oosten;
- Stijlvolle houten overkapping met luxe buitenkeuken;
- Aparte berging aanwezig in de overkapping;
- Oplevering in overleg.
Features
Transfer of ownership
- Listed since
- Acceptance
- Available in consultation
- Asking price
- € 575,000 kosten koper
- Asking price per m²
- € 3,549
- Status
- Sold under reservation
Construction
- Kind of house
- Single-family home, double house
- Building type
- Resale property
- Year of construction
- 1990
- Type of roof
- Gable roof covered with roof tiles
Surface areas and volume
- Areas
- Living area
- 162 m²
- Other space inside the building
- 10 m²
- Exterior space attached to the building
- 5 m²
- External storage space
- 7 m²
- Plot size
- 245 m²
- Volume in cubic meters
- 580 m³
Layout
- Number of rooms
- 7 rooms (4 bedrooms)
- Number of bath rooms
- 1 bathroom and 1 separate toilet
- Bathroom facilities
- Double sink, bath, toilet, and washstand
- Number of stories
- 3 stories and an attic
- Facilities
- Outdoor awning, skylight, optical fibre, mechanical ventilation, passive ventilation system, rolldown shutters, sliding door, and TV via cable
Energy
- Energy label
- A
- Insulation
- Roof insulation, energy efficient window, insulated walls, floor insulation and completely insulated
- Heating
- CH boiler
- Hot water
- CH boiler
- CH boiler
- Intergas (gas-fired combination boiler from 2012, in ownership)
Cadastral data
- VLIJMEN L 2153
- Cadastral map
- Area
- 212 m²
- Ownership situation
- Full ownership
- VLIJMEN L 3166
- Cadastral map
- Area
- 33 m²
- Ownership situation
- Full ownership
Exterior space
- Location
- Alongside a quiet road, in wooded surroundings, in centre and in residential district
- Garden
- Back garden and front garden
- Back garden
- 76 m² (8.97 metre deep and 8.48 metre wide)
- Garden location
- Located at the east with rear access
- Balcony/roof terrace
- Balcony present
Storage space
- Shed / storage
- Detached wooden storage
- Facilities
- Electricity
Garage
- Type of garage
- Attached brick garage
- Capacity
- 1 car
- Facilities
- Loft, electricity and running water
- Insulation
- Roof insulation, insulated walls, floor insulation and completely insulated
Parking
- Type of parking facilities
- Parking on private property and public parking
Photos 58
© 2001-2025 funda

























































