
Eye-catcherIdeaal 2 kmr appartement op de begane grond nabij centrum en strand.
Description
Ideaal starters appartement op toplocatie!
Op loopafstand van het centrum vind je dit fijne 2 kamer appartement. Het appartement is gelegen op de begane grond en heeft een eigen terras waardoor je op zonnige dagen heerlijk buiten kunt zitten. Zin in een drankje in de gezellige binnenstad van Vlissingen of wil je graag een heerlijke strandwandeling maken? Binnen 10 minpunten lopen ben je in het centrum en loop je zo het strand op.
Het appartement heeft een nette badkamer en een eenvoudige keuken. Met een kleine investering kun je hier je een leuk appartement van maken. De woonkamer is ruim en licht. Er is 1 slaapkamer aanwezig. Het appartement heeft een totaal woonoppervlak van ca. 60 m2.
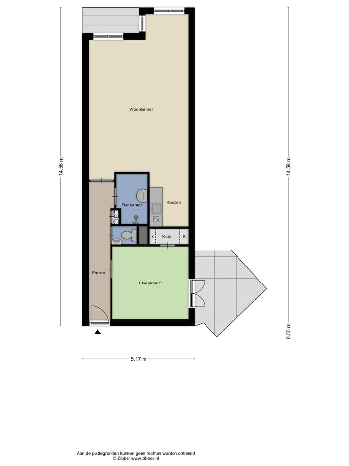
Indeling:
Begane grond: entree, hal, toegang naar slaapkamer, badkamer voorzien van douche, wastafel en wasmachine aansluiting. Ruime en lichte woonkamer met toegang tot het terras. De woonkamer is voorzien van een eenvoudig keukenblok.
Kom gauw kijken bij dit super leuke starters appartement. Bel snel voor een afspraak.
Inwoners en toekomstige inwoners van de gemeente Vlissingen kunnen onder bepaalde voorwaarden gebruik maken van de "Starterslening" en/of "Financiering van duurzame oplossingen". De voorwaarden zijn te vinden op de website van de gemeente Vlissingen.
Bijzonderheden:
* Ideale ligging aan de rand van het centrum en dichtbij het strand
* Woonoppervlak ca. 60 m2
* Inpandige berging, bereikbaar via het naastgelegen hofje
* 1 Slaapkamer
* Oplevering in overleg
Aan de koopovereenkomst zullen onderstaande clausules worden toegevoegd (zie verkoopbrochure voor de volledige tekst)
* Asbestclausule
* 'AS IS, WHERE IS'
* Lijst van zaken
* Energielabel
* Personalia
* Overdrachtsbelasting
* Projectnotaris
* Eigen notaris
* Aanvulling op artikel 6.2
* Vervroegen / datum eigendomsoverdracht uitstellen
* Toestemming uitwisseling persoonsgegevens
Features
Transfer of ownership
- Service charges
- € 60 per month
- Listed since
- Acceptance
- Available in consultation
- Asking price
- € 150,000 kosten koper
- Asking price per m²
- € 2,500
- Status
- Sold under reservation
- VVE (Owners Association) contribution
- € 229.76 per month
Construction
- Type apartment
- Apartment with shared street entrance (apartment)
- Building type
- Resale property
- Year of construction
- 1982
- Type of roof
- Combination roof covered with roof tiles
Surface areas and volume
- Areas
- Living area
- 60 m²
- External storage space
- 4 m²
- Volume in cubic meters
- 200 m³
Layout
- Number of rooms
- 2 rooms (1 bedroom)
- Number of bath rooms
- 1 bathroom and 1 separate toilet
- Bathroom facilities
- Shower and sink
- Number of stories
- 1 story
- Located at
- 1st floor
Energy
- Energy label
- E
- Insulation
- Partly double glazed
- Heating
- Communal central heating
- Hot water
- Electrical boiler (rental)
Cadastral data
- VLISSINGEN C 2003
- Cadastral map
- Ownership situation
- Full ownership
- VLISSINGEN C 2003
- Cadastral map
- Ownership situation
- Full ownership
Exterior space
- Location
- In centre and in residential district
- Garden
- Sun terrace
- Sun terrace
- 3 m² (2.34 metre deep and 1.20 metre wide)
- Garden location
- Located at the west
Storage space
- Shed / storage
- Built-in
- Facilities
- Electricity
Parking
- Type of parking facilities
- Parking on gated property and resident's parking permits
VVE (Owners Association) checklist
- Registration with KvK
- Yes
- Annual meeting
- Yes
- Periodic contribution
- Yes (€ 229.76 per month)
- Reserve fund present
- Yes
- Maintenance plan
- Yes
- Building insurance
- Yes
Photos 19
© 2001-2025 funda


















