
Van Dam van Isseltstraat 74384 GN VlissingenPaauwenburg Noordoost
€ 279,000 k.k.
Description
Aan de Van Dam van Isselstraat 7 in Vlissingen vind je deze goed onderhouden woning, perfect voor wie rustig wil wonen met alle voorzieningen dichtbij. De wijk Paauwenburg staat bekend om haar brede straten, groene plantsoenen en prettige sfeer, ideaal voor gezinnen of starters die op zoek zijn naar een fijne woonplek.
De indeling:
Bij binnenkomst in de hal tref je de meterkast, het toilet en de trapopgang. Vanuit hier loop je door naar de woonkamer van circa 21 m². De grote ramen aan de voor- en achterzijde zorgen voor een fijn lichtinval. De dichte keuken ligt aan de achterzijde en is voorzien van een gaskookplaat, koelkast en vaatwasser. Een praktische ruimte met toegang tot de tuin.
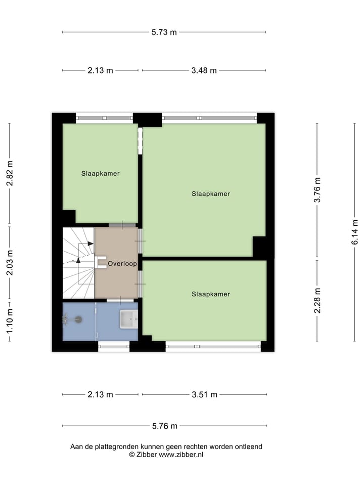
Op de eerste verdieping vind je drie slaapkamers (van 13, 8 en 6 m²). De badkamer is eenvoudig maar verzorgd, voorzien van een douche en wastafel.
De tweede verdieping biedt een flinke zolderruimte met dakraam en de opstelling van de cv-ketel (2024). Hier kun je prima extra bergruimte creëren, maar je kunt het ook goed gebruiken als hobby- of werkkamer.
Ook buiten is het prettig vertoeven. Zowel de voor- als achtertuin zijn netjes aangelegd. De achtertuin ligt op het zuidoosten, waardoor je er vrijwel de hele dag zon hebt. Je vindt hier bovendien een stenen (fietsen-)bergingen een vrije achterom.
De woning is volledig voorzien van dubbel glas en heeft een nieuwe cv-installatie uit 2024, wat zorgt voor comfort en een laag energieverbruik. Met winkels, scholen, openbaar vervoer en het strand allemaal op korte afstand, woon je hier centraal en toch rustig.
Ben je op zoek naar een nette woning met een fijne sfeer en volop mogelijkheden? Kom dan snel kijken. Neem contact op met Dingemanse makelaars, we laten je graag zien waarom dit huis jouw nieuwe thuis kan worden.
Features
Transfer of ownership
- Listed since
- Acceptance
- Available in consultation
- Asking price
- € 279,000 kosten koper
- Asking price per m²
- € 3,986
- Status
- Available
Construction
- Kind of house
- Single-family home, row house
- Building type
- Resale property
- Year of construction
- 1967
- Specific
- Partly furnished with carpets and curtains
- Type of roof
- Gable roof covered with roof tiles
Surface areas and volume
- Areas
- Living area
- 70 m²
- Other space inside the building
- 5 m²
- External storage space
- 10 m²
- Plot size
- 133 m²
- Volume in cubic meters
- 266 m³
Layout
- Number of rooms
- 5 rooms (3 bedrooms)
- Number of bath rooms
- 1 bathroom and 1 separate toilet
- Bathroom facilities
- Shower and sink
- Number of stories
- 3 stories
- Facilities
- Outdoor awning and skylight
Energy
- Energy label
- D
- Insulation
- Double glazing
- Heating
- CH boiler
- Hot water
- CH boiler and electrical boiler
- CH boiler
- Intergas (gas-fired combination boiler from 2024, in ownership)
Cadastral data
- VLISSINGEN L 526
- Cadastral map
- Area
- 133 m²
- Ownership situation
- Full ownership
Exterior space
- Location
- In residential district
- Garden
- Back garden and front garden
- Back garden
- 56 m² (11.00 metre deep and 6.00 metre wide)
- Garden location
- Located at the southeast with rear access
Storage space
- Shed / storage
- Detached brick storage
- Facilities
- Electricity
Parking
- Type of parking facilities
- Public parking
Photos 30
Floorplans 5
© 2001-2025 funda


































