
Description
*English text below*
Op een leuke locatie in Voorburg-Noord gelegen ruim 6-kamerappartement (woon-eetkamer plus 4 aparte kamers). Het appartement heeft een woonoppervlakte van ruim 114 m2, is gebouwd in 1933, is goed onderhouden en in 2019 gerenoveerd. In 2021 is er een geheel nieuw dak met hoogwaardige isolatie geplaatst.
De Van Matenessestraat is een rustige straat in het gewilde Voorburg-Noord op de grens met Den Haag. Omdat het op het grenspunt met Bezuidenhout ligt wordt dit ook wel “het Bezuidenhout van Voorburg” genoemd. Hiervandaan zijn zowel het oude als nieuwe centrum van Voorburg met allerlei winkels en gezelligheid te voet bereikbaar. Ook zijn er in de buurt diverse leuke wijkpleintjes en bevinden er zich diverse buurtwinkeltjes zoals een bakker, poelier, slager, slijterij, kapper en 2 koffiecorners om de hoek! De Haagse binnenstad is eenvoudig bereikbaar en in de zomer is het een fijne fietstocht naar het strand in Scheveningen. Tevens is de woning zeer gunstig gelegen t.o.v. diverse uitvalswegen (Prins Clausplein, A12 en A4), openbaar vervoer (Station Laan van NOI, Station Voorburg en diverse bus-, tram- en Randstadrailverbindingen op loopafstand), zowel lagere als middelbare scholen, diverse sportfaciliteiten en meerdere groenvoorzieningen in de direct omgeving. Kortom, voor ieder wat wils.
Indeling:
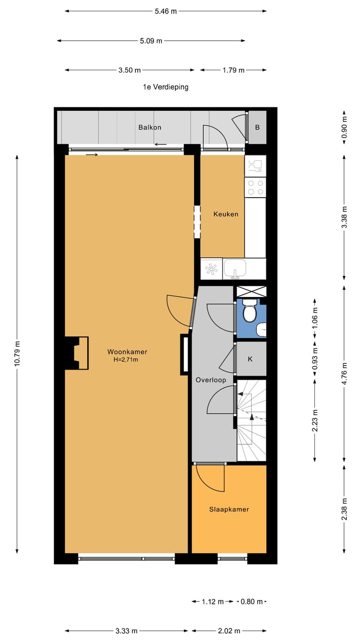
Entree op de begane grond, hal met meterkast en ruimte om een fiets op te hangen. Trap naar de 1e etage.
Overloop, vaste bergkast, licht betegelde toiletruimte met toilet en fontein. Voorzijkamer ca. 2.38 x 2.02. Ruime en vooral zeer lichte doorgebroken woon-eetkamer van ca. 10.80 x 3.50. De woonkamer is voorzien van een hout gestookte open haard en zowel aan de voor- als achterzijde vrij uitzicht. Aan de achterzijde aan schuifpui naar het balkon over de volle breedte van ca. 5.09 x 0.90 met bergkast. Open keuken aan de achterzijde in L-opstelling (uit 2020) welke is voorzien van diverse apparatuur. Ook vanuit de keuken is het balkon bereikbaar.
2e etage:
Lichte overloop met dakkapel, ruime bergkast. Badkamer aan de achterzijde (vernieuwd in 2020) met vaste wastafel, 2e toilet en ruime douche. Grote slaapkamer aan de achterzijde ca. 4.78 x 3.50. Grote slaapkamer voorzijde ca. 4.86 x 3.31. De voorzijkamer is ca. 2.71 x 2.06 en is thans in gebruik als inloopkast maar kan prima een aparte kamer zijn (deur naar de overloop nog aanwezig).
Technische ruimte tussen de 2 grote slaapkamers in met bergruimte en de CV opstelplaats Remeha Quinta 2009). Vanuit deze ruimte is tevens de grote bergvliering over de gehele diepte van de woning bereikbaar.
Dit is een zeer unieke bovenwoning. Er zijn geen aangesloten buren naast of boven, waardoor er veel rust en privacy is. Zowel aan de voor- als achterzijde is er vrij uitzicht.
De woning heeft energielabel C. Er is een zonnepaneel installatie (capaciteit ca. 6020w) geïnstalleerd in 2023.
De badkamer en keuken zijn gerenoveerd in 2020. De nieuwe badkamer is voorzien van een inloopdouche met regendouche en de keuken is voorzien van inbouwapparatuur en afgewerkt met een houten aanrechtblad en LED-verlichting. Door de gehele woning ligt een massief eikenhouten vloer.
Verder is de woning voorzien van een volledig domotica systeem (met Home Assistant), automatische aanpassing van verlichting, verwarming, automatische zonwering, luchtkwaliteit, aanwezigheidsdetectie, alarmsysteem, apparaten, energiemeting, voordeurcamera alles gekoppeld aan een mobiele app.
Oplevering in overleg, kan snel.
Bijzonderheden:
- Eigen grond
- Gebruiksoppervlakte 114,5 m2
- Bouwjaar 1933
- Nieuw dak uit 2021
- Nieuwe zonnepanelen uit 2023
- Keuken en badkamer vernieuwd in 2020
- Woning voorzien van dubbel glas in houten en kunststof kozijnen
- Voor en achterzijde vrij uitzicht
- Geen naaste buren, alleen onderburen
- Actieve VvE, bijdrage € 200,= per maand
- CV combiketel uit 2009 (Remeha Quinta)
- Oplevering in overleg
*** ENGLISH TEXT ***
Spacious 6-room apartment (living-dining room plus 4 separate rooms) at a nice location in Voorburg-Noord. The apartment has a living area of over 114 m2, was built in 1933, is well maintained and renovated in 2019. A completely new roof with high-quality insulation was installed in 2021.
The Van Matenessestraat is a quiet street in Voorburg-Noord on the border with The Hague. Because it is located on the border with Bezuidenhout area, it is also called “the Bezuidenhout of Voorburg”. From here, both the old and new center of Voorburg with all kinds of shops and entertainment can be reached by foot. There are also several nice neighborhood squares in the area and various local shops such as a bakery, poulterer, butcher, liquor store, hairdresser and 2 coffee bars around the corner! The city center of The Hague is easily accessible and in the summer it is a nice bike ride to the beach in Scheveningen. The house is also very conveniently located in relation to various arterial roads (Prins Clausplein, A12 and A4), public transport (Station Laan van NOI, Station Voorburg and various bus, tram and Randstad rail connections within walking distance), both primary and secondary schools, various sports facilities. and several green areas in the immediate vicinity. In short, something for everyone.
Layout:
Entrance on the ground floor, hall with meter cupboard and space to hang a bicycle. Stairs to the 1st floor.
Landing, fixed storage cupboard, modern tiled toilet room with toilet and fountain. Front side room approx. 2.38 x 2.02. Spacious and especially very bright living-dining room of approx. 10.80 x 3.50. The living room has a wood-burning fireplace and unobstructed views at both the front and rear. At the rear there are sliding doors to the balcony (approx. 5.09 x 0.90) over the full width of the house with storage cupboard. Open kitchen at the rear in L-shape (from 2020) which is equipped with various equipment. The balcony is also accessible from the kitchen.
2nd floor:
Bright landing with dormer window, spacious storage cupboard. Bathroom at the rear (renewed in 2020) with sink, 2nd toilet and spacious shower. Large bedroom at the rear approx. 4.78 x 3.50. Large front bedroom approx. 4.86 x 3.31. The front side room is approx. 2.71 x 2.06 and is currently used as a walk-in closet but could easily be a separate room (door to the landing still present).
Technical room between the 2 large bedrooms with storage space and the central heating installation Remeha Quinta 2009). The large storage attic over the entire depth of the house is also accessible from this room.
This is a very unique upstairs apartment. There are no connected neighbors next to or above, so there is a lot of peace and privacy. There is an unobstructed view at both the front and rear.
The house has energy label C. A solar panel installation (capacity approx. 6020w) will be installed in 2023.
The bathroom and kitchen were renovated in 2020. The new bathroom has a walk-in shower with rain shower and the kitchen is equipped with built-in appliances and finished with a wooden counter top and LED lighting. There is a solid oak floor throughout the entire house.
Furthermore, the house is equipped with a complete home automation system (with Home Assistant), automatic adjustment of lighting, heating, automatic sun blinds, air quality, presence detection, alarm system, appliances, energy measurement, front door camera, all linked to a mobile app. Delivery in consultation, can be done quickly.
Particularities:
- Own ground
- Usable living area 114.5 m2
- Year of construction 1933
- New roof from 2021
- New solar panels from 2023
- Kitchen and bathroom renovated in 2020
- House with double glazing in wooden and plastic frames
- Unobstructed view at the front and rear
- No immediate neighbors, only downstairs neighbors
- Active VvE, contribution € 200 per month
- Central heating combination boiler from 2009 (Remeha Quinta)
- Delivery date negotiable
Features
Transfer of ownership
- Last asking price
- € 469,000 kosten koper
- Asking price per m²
- € 4,078
- Status
- Sold
- VVE (Owners Association) contribution
- € 100.00 per month
Construction
- Type apartment
- Upstairs apartment (apartment)
- Building type
- Resale property
- Year of construction
- 1933
- Type of roof
- Gable roof covered with asphalt roofing and roof tiles
Surface areas and volume
- Areas
- Living area
- 115 m²
- Exterior space attached to the building
- 5 m²
- Volume in cubic meters
- 373 m³
Layout
- Number of rooms
- 6 rooms (4 bedrooms)
- Number of bath rooms
- 1 bathroom and 2 separate toilets
- Bathroom facilities
- Shower, toilet, and sink
- Number of stories
- 2 stories
- Facilities
- Smart home, flue, TV via cable, and solar panels
- Located at
- 2nd floor
Energy
- Energy label
- C
- Insulation
- Roof insulation, partly double glazed and floor insulation
- Heating
- CH boiler
- Hot water
- CH boiler
- CH boiler
- Rehma Quinta 35c (gas-fired combination boiler from 2009, in ownership)
Cadastral data
- VOORBURG F 7054
- Cadastral map
- Ownership situation
- Full ownership
Exterior space
- Location
- Alongside a quiet road, in residential district and unobstructed view
- Balcony/roof terrace
- Balcony present
Parking
- Type of parking facilities
- Public parking
VVE (Owners Association) checklist
- Registration with KvK
- Yes
- Annual meeting
- No
- Periodic contribution
- Yes (€ 100.00 per month)
- Reserve fund present
- Yes
- Maintenance plan
- No
- Building insurance
- Yes
Photos 31
© 2001-2025 funda






























