This house on Funda: https://www.funda.nl/en/detail/koop/westerlee/huis-1e-garstelaan-5-b/89489587/

1e Garstelaan 5-B9678 RS WesterleeWesterlee
€ 439,500 k.k.
Description
Vrijstaand wonen met prachtig vrij uitzicht aan de rand van het bos
Op een unieke locatie aan de rand van het bos, met weids uitzicht over het Groningse landschap, staat deze uitstekend onderhouden vrijstaande woning. De woning beschikt over een aangebouwde garage, carport en maar liefst vier ruime slaapkamers.
Wonen in Westerlee
Westerlee is een karakteristiek lintdorp in Groningen met enkele basisvoorzieningen, waaronder een basisschool en diverse sportverenigingen. Op slechts 4 kilometer afstand ligt Winschoten, waar u terecht kunt voor een breed aanbod aan winkels, scholen en andere voorzieningen. Dankzij de nabijgelegen A7 en het treinstation in Scheemda bent u bovendien snel in de stad Groningen.
Indeling van de woning
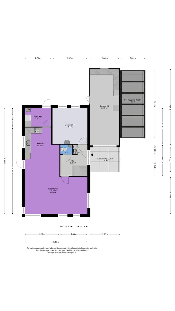
Begane grond:
Via de zijentree komt u in de hal met meterkast, toilet en trapopgang. De verrassend ruime en lichte woonkamer (31,5 m²) is voorzien van grote raampartijen die zorgen voor veel daglicht en een prachtig uitzicht. Aansluitend bevindt zich de open keuken in hoekopstelling, uitgerust met alle moderne inbouwapparatuur.
De bijkeuken biedt ruimte aan de witgoedaansluitingen en de C.V.-opstelling. Daarnaast bevindt zich op de begane grond een ruime slaapkamer (13,5 m²) met een eigen wastafel – ideaal als levensloopbestendige optie of voor gebruik als kantoor aan huis.
Eerste verdieping:
Op de verdieping treft u een overloop en drie slaapkamers van respectievelijk 15 m², 8,6 m² en 7,5 m². De badkamer is netjes onderhouden en beschikt over een douche, wastafel en tweede toilet. Via een vlizotrap is de tweede verdieping bereikbaar, ideaal voor extra bergruimte.
Buitenruimte
De fraai aangelegde tuin is verzorgd en biedt een vrij uitzicht over de omliggende landerijen. Vanuit de tuin heeft u toegang tot de aangebouwde garage en de carport.
Bijzonderheden:
- Goed onderhouden en direct instapklare woning
- Volledig geïsoleerd, voorzien van kunststof kozijnen
- Voorzien van zonnepanelen
- Energielabel A
- Levensloopbestendig wonen mogelijk
- Prachtige ligging met vrij uitzicht en veel privacy
Interesse?
Deze woning is met veel zorg en liefde bewoond door de eerste eigenaar. Bent u benieuwd of dit uw nieuwe thuis kan worden? Neem dan contact met ons op voor een bezichtiging.
Features
Transfer of ownership
- Original asking price
- € 449,500 kosten koper
- Listed since
- Acceptance
- Available in consultation
- Asking price
- € 439,500 kosten koper
- Asking price per m²
- € 3,822
- Status
- Available
Construction
- Kind of house
- Single-family home, detached residential property
- Building type
- Resale property
- Year of construction
- 1990
- Type of roof
- Combination roof covered with asphalt roofing and roof tiles
Surface areas and volume
- Areas
- Living area
- 115 m²
- Other space inside the building
- 24 m²
- Exterior space attached to the building
- 26 m²
- External storage space
- 7 m²
- Plot size
- 500 m²
- Volume in cubic meters
- 510 m³
Layout
- Number of rooms
- 6 rooms (4 bedrooms)
- Number of bath rooms
- 1 bathroom and 1 separate toilet
- Bathroom facilities
- Shower, toilet, and sink
- Number of stories
- 2 stories and an attic
- Facilities
- Solar panels
Energy
- Energy label
- A
- Insulation
- Roof insulation, double glazing, insulated walls and floor insulation
- Heating
- CH boiler
- Hot water
- CH boiler
- CH boiler
- Combination boiler, in ownership
Cadastral data
- SCHEEMDA I 776
- Cadastral map
- Area
- 500 m²
- Ownership situation
- Full ownership
Exterior space
- Location
- On the edge of a forest, alongside a quiet road, in residential district and unobstructed view
- Garden
- Back garden and surrounded by garden
- Back garden
- 160 m² (8.00 metre deep and 20.00 metre wide)
- Garden location
- Located at the north
Storage space
- Shed / storage
- Attached wooden storage
Garage
- Type of garage
- Attached brick garage
- Capacity
- 1 car
- Facilities
- Electricity
Parking
- Type of parking facilities
- Parking on private property
Photos 54
© 2001-2025 funda





















































