This house on Funda: https://www.funda.nl/en/detail/koop/zaandam/huis-texelstraat-80/89500108/

Texelstraat 801506 ZE ZaandamSchilders- en Waddenbuurt
€ 395,000 k.k.
Description
Instapklare eengezinswoning met drie slaapkamers, zolder en zonnige tuin in een rustige straat
Deze instapklare eengezinswoning biedt een ideale combinatie van wooncomfort, ruimte en sfeer. Bij binnenkomst in de hal bevindt zich het toilet en gaat u links de lichte en ruime woonkamer binnen. Vanuit de woonkamer is de open keuken bereikbaar, die direct toegang geeft tot de zonnige achtertuin. De tuin is een fijne, ruime plek om te ontspannen en te genieten.
Op de eerste verdieping bevinden zich drie goed bemeten slaapkamers en de badkamer, praktisch ingericht met douche en wastafel. Via een vaste trap is de zolder bereikbaar, ideaal als extra slaapkamer, werkruimte of bergruimte.
Indeling
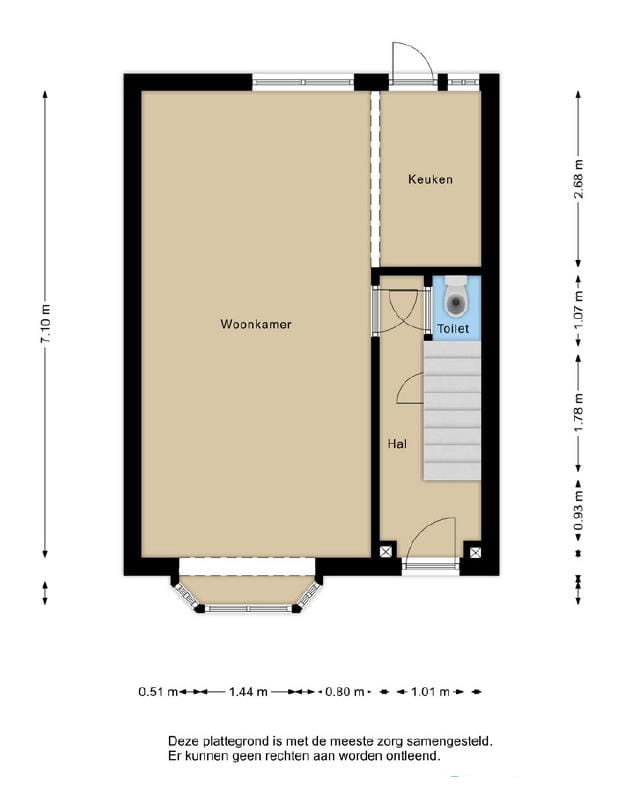
Begane grond: entree, hal met toilet, woonkamer met open keuken en toegang tot de zonnige achtertuin.
Eerste verdieping: overloop met toegang tot drie slaapkamers en de badkamer met douche en wastafel.
Zolder: bereikbaar via vaste trap, geschikt als extra slaapkamer, werkruimte of opslag.
Buurt en ligging
Deze woning ligt in een rustige en kindvriendelijke woonwijk in Zaandam. De straat heeft een prettige sfeer en is ideaal voor gezinnen, met scholen, kinderdagverblijven en speeltuinen in de nabije omgeving. Diverse winkels en supermarkten bevinden zich op korte afstand, zodat alle dagelijkse voorzieningen goed bereikbaar zijn.
Voor ontspanning en recreatie zijn er groene zones en waterpartijen in de buurt, ideaal om te wandelen of te fietsen. Openbaar vervoer en uitvalswegen naar onder andere Amsterdam, Zaandam en Purmerend zijn eenvoudig bereikbaar, waardoor de woning perfect geschikt is voor forenzen.
Bijzonderheden:
- Sfeervolle jaren 1939 woning
- Zonnige achtertuin op het noordoosten
- Zakking NIHIL
- Rustige, kindvriendelijke woonstraat
- Oplevering in overleg
Features
Transfer of ownership
- Listed since
- Acceptance
- Available in consultation
- Asking price
- € 395,000 kosten koper
- Asking price per m²
- € 4,247
- Status
- Available
Construction
- Kind of house
- Single-family home, row house
- Building type
- Resale property
- Year of construction
- 1939
Surface areas and volume
- Areas
- Living area
- 93 m²
- Exterior space attached to the building
- 25 m²
- External storage space
- 8 m²
- Plot size
- 117 m²
- Volume in cubic meters
- 223 m³
Layout
- Number of rooms
- 5 rooms (4 bedrooms)
- Number of bath rooms
- 1 bathroom and 1 separate toilet
- Bathroom facilities
- Shower, walk-in shower, and washstand
- Number of stories
- 2 stories and an attic
- Facilities
- Passive ventilation system
Energy
- Energy label
- G
- Insulation
- Mostly double glazed
- Heating
- CH boiler
- Hot water
- CH boiler
- CH boiler
- Intergas CW4 (gas-fired from 2025, in ownership)
Cadastral data
- ZAANSTAD H 5831
- Cadastral map
- Area
- 117 m²
- Ownership situation
- Full ownership
Exterior space
- Location
- Alongside a quiet road and in residential district
- Garden
- Back garden and front garden
- Back garden
- 25 m² (0.05 metre deep and 0.05 metre wide)
- Garden location
- Located at the northeast
Storage space
- Shed / storage
- Attached wooden storage
- Facilities
- Electricity
Parking
- Type of parking facilities
- Public parking
Photos 29
© 2001-2025 funda




























