
Description
Energielabel A++++
Wonen in luxe en comfort: welkom bij Burgemeester Wilminkhof 8!
Stap binnen in deze exclusieve, duurzame, vrijstaande woning en ervaar direct het summum van luxe en comfortabel wonen. Met een verfijnde combinatie van ruimte, stijl en warmte biedt deze woning alles wat u zoekt in een droomhuis. De royale indeling omvat maar liefst vijf slaapkamers en twee badkamers, waardoor er volop ruimte is voor het hele gezin. Elk detail in het huis is met zorg ontworpen en uitgevoerd met hoogwaardige materialen, wat resulteert in een harmonieus geheel waar sfeer en vakmanschap centraal staan.
De luxe woonkeuken vormt het hart van het huis en is voorzien van uitgebreide en hoogwaardige inbouwapparatuur, perfect voor culinaire liefhebbers en gezellige diners. De stijlvolle en-suite dubbele stalen schuifdeuren in bronskleur geven een unieke uitstraling en verbindt de woonkamer met de riante living. Daarnaast biedt de woning met een royale inpandige garage van maar liefst 76 m² volop mogelijkheden voor bijvoorbeeld een thuiskantoor, salon, praktijk- of hobbyruimte.
De achtertuin is gelegen op het zonnige zuiden en is fraai aangelegd met moderne terrastegels, een verzorgd gazon, een sfeervolle vlonder en een charmante houten overkapping, perfect voor lange zomeravonden. Aan de voorzijde van de woning bevindt zich een oprit met parkeergelegenheid die leidt naar de ruime garage van maar liefst 16 meter diep. De garage met dubbele openslaande deuren biedt volop mogelijkheden voor opslag, hobby’s of extra werkruimte. Aan de rechterzijde van het huis bevindt zich een 2e oprit met parkeerplaats en cortenstaal poort met toegang naar de achtertuin. Tevens zijn er voldoende parkeermogelijkheden aan het begin van de straat.
Het woonhuis is gelegen in de jonge, gewilde woonwijk 'de Waluwe' aan een doodlopend hofje met enkel bestemmingsverkeer. De woning is gebouwd in 2022 en heeft een woonoppervlakte van ca. 236 m² (excl. inpandige garage) en de inhoud bedraagt ca. 1.185 m³. Het geheel is gelegen op een perceel van 501 m².
In de directe omgeving zijn diverse voorzieningen op loopafstand bereikbaar, waaronder het kleinschalige winkelcentrum “De Portage” (supermarkten, slager, bakker, drogist, kapper, etc.), diverse scholen, sportfaciliteiten en een apotheek. Op steenworp afstand bevindt zich “Het Parkeiland”, een wandelgebied met grote speeltuin, viswater en picknicktafels. De historische binnenstad van Zaltbommel met tal van winkels, terrasjes en restaurants is op enkele minuten fietsafstand bereikbaar evenals het treinstation.
Zaltbommel is een gezellig vestingstadje aan de Waal met veel bezienswaardigheden en activiteiten. Het stadje is centraal gelegen aan de A2 en beschikt over een NS Station. De gemeente Zaltbommel beschikt over een ruim opleidingsaanbod, zo zijn er naast het basisonderwijs diverse vormen van buitengewoon en voortgezet onderwijs aanwezig. Tevens beschikt Zaltbommel over moderne sportaccommodaties zoals o.a. een overdekt zwembad, verschillende sportzalen, tennis-, padel-, voetbal- en hockeyvelden. Ook op het gebied van cultuur heeft Zaltbommel veel te bieden, waaronder o.a. een cultureel centrum met schouwburgzaal en muziekschool.
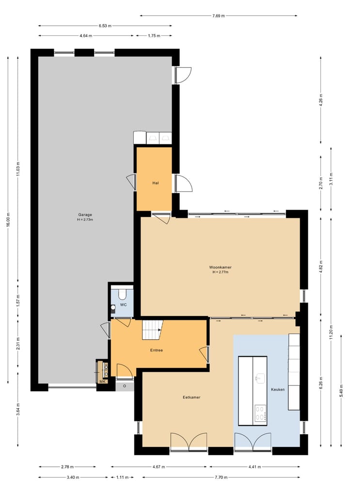
Indeling woonhuis: via de entree stapt u de royale hal binnen, voorzien van garderobe, toiletruimte met luxe Geberit Mera spoel wc, handige schoenenkast en trapopgang naar de eerste verdieping. De hal geeft toegang tot de garage en keuken. De ruim opgezette leefkeuken bevindt zich aan de voorzijde van de woning en is voorzien van luxe keukenunit met kastenwand en kook- en spoeleiland. De keuken is uitgerust met diverse inbouwapparatuur zoals een inductiekookplaat met afzuiging, Quooker voor kokend, gekoeld en bruisend water, ingebouwd zeeppompje, stoomoven, vaatwasser, combi-oven/magnetron en vaatwasser. De keuken en woonkamer worden op stijlvolle wijze gescheiden door prachtige en-suite stalen schuifdeuren. Wanneer deze deuren openstaan, lopen de ruimtes naadloos in elkaar over, wat een gevoel van ruimtelijkheid en verbinding creëert. Vanuit de woonkamer heeft u via de strakke aluminium schuifpui direct toegang tot het terras en de zonnige achtertuin. Aangrenzend bevindt zich de praktische bijkeuken die toegang biedt tot de inpandige garage en achtertuin.
Eerste verdieping: de stalen middenboomtrap met massief eiken treden leidt u naar de ruime overloop die toegang geeft tot 3 ruime slaapkamers, waarbij de masterbedroom is uitgerust met een ruime inloopkast en airco. Eén van de slaapkamers wordt momenteel gebruikt als kantoor, deze kamer is eveneens voorzien van airco. De royale luxe badkamer is voorzien van inloopdouche met regendouche, 6 zijsproeiers, sunshower met UV en infrarood, vrijstaand ligbad met vrijstaande badmengkraan en badmeubel voorzien van dubbele wastafel met inbouwkranen en spiegel met LED verlichting. Het toilet bevindt zich in een separate ruimte.
Tweede verdieping: de overloop geeft toegang tot 2 slaapkamers, beide met inloopkast en voorzien van afgetimmerde knieschotten/ opbergruimte, en 2e badkamer. De moderne badkamer is voorzien van douche, badmeubel met dubbele wastafel voorzien van spiegel met LED verlichting en wandcloset. Deze gehele verdieping is voorzien van een open-nok constructie en dakvensters, wat zorgt voor een extra licht en ruimtelijk effect.
Bijzonderheden:
• bouwjaar 2022;
• energielabel A++++;
• volledig gasloos;
• lucht-water warmtepomp;
• vloerverwarming in de gehele woning en garage;
• 27 zonnepanelen;
• meterkast voorbereid voor aansluiting laadpaal elektrische auto;
• alarminstallatie;
• aluminium kozijnen, allen draai-kiep;
• daklijsten- en goten afgewerkt in zwart zink;
• gevelsteen in apart formaat met terug liggende voeg (gepointerd);
• inpandige garage van maar liefst 76 m²;
• en-suite dubbele stalen schuifdeuren in bronskleur;
• stalen middenboomtrap met massief eiken treden;
• glas/ staal balustrade;
• airco op 3 slaapkamers, kantoor en woonkamer;
• luxe sanitair (o.a. spoeltoilet met föhnfunctie, brilverwarming en geurafzuiging, regendouche, 6 zijsproeiers, sunshower met UV en infrarood, vrijstaand ligbad met vrijstaande badmengkraan, spiegels met LED verlichting, grohe inbouwkranen, inbouwradio)
• 5 slaapkamers;
• 2 badkamers;
• rolluiken op de masterbedroom en 1 slaapkamer op de 2e verdieping;
• buitenscreen schuifpui woonkamer;
• de garage- en voordeur zijn afgewerkt met hardhout.
Deze woning combineert luxe en comfort op een manier die voelt als thuiskomen. De zorgvuldige afwerking, warme uitstraling en grote aandacht voor detail maken dit huis tot een unieke plek waar u met trots zult wonen. Laat u verrassen door de harmonie van stijl en functionaliteit die dit huis te bieden heeft. Of u nu een groot gezin bent dat op zoek is naar ruimte en comfort, een ondernemer die droomt van werken vanuit huis, of juist op zoek bent naar een woning geschikt voor dubbele bewoning; dit pand biedt alles wat u nodig heeft en meer!
Features
Transfer of ownership
- Last asking price
- Price on request
- Status
- Sold
Construction
- Kind of house
- Mansion, detached residential property
- Building type
- Resale property
- Year of construction
- 2022
- Type of roof
- Gable roof covered with roof tiles
Surface areas and volume
- Areas
- Living area
- 236 m²
- Other space inside the building
- 76 m²
- Plot size
- 501 m²
- Volume in cubic meters
- 1,185 m³
Layout
- Number of rooms
- 6 rooms (5 bedrooms)
- Number of bath rooms
- 2 bathrooms and 2 separate toilets
- Bathroom facilities
- 2 double sinks, 2 walk-in showers, bath, underfloor heating, sink, 2 washstands, shower, and toilet
- Number of stories
- 3 stories
- Facilities
- Air conditioning, alarm installation, outdoor awning, skylight, optical fibre, mechanical ventilation, rolldown shutters, and sliding door
Energy
- Energy label
- A++++
- Insulation
- Completely insulated
- Heating
- Heat pump
- Hot water
- CH boiler, electrical boiler and gas water heater
Cadastral data
- ZALTBOMMEL K 2901
- Cadastral map
- Area
- 501 m²
- Ownership situation
- Full ownership
Exterior space
- Location
- Alongside a quiet road and in residential district
- Garden
- Back garden
- Back garden
- 240 m² (15.00 metre deep and 16.00 metre wide)
- Garden location
- Located at the south with rear access
Garage
- Type of garage
- Attached brick garage and built-in
- Capacity
- 3 cars
- Facilities
- Electricity, heating and running water
- Insulation
- Completely insulated
Parking
- Type of parking facilities
- Parking on private property and public parking
Photos 70
© 2001-2025 funda





































































