This house on Funda: https://www.funda.nl/en/detail/koop/zandvoort/huis-van-speijkstraat-10/43075605/

Description
VAN SPEIJKSTRAAT 10 – WITH A DEEP GARDEN, 2 BALCONIES, AND A GARAGE!
This modernized house retains its character and even offers further potential, such as an extension or a different use for the large garage. All these options are available but not necessary; buying a future-proof home is always a good idea.
This typical 1930s family home with an energy label B is centrally located, close to the train station, city center, and even the beach is just a stone's throw away.
The property features a west-facing backyard, a deep garden with favorable sun exposure that has been beautifully landscaped. There's also rear access via the large wooden garage with an electric door.
The layout of this beautiful home is as follows:
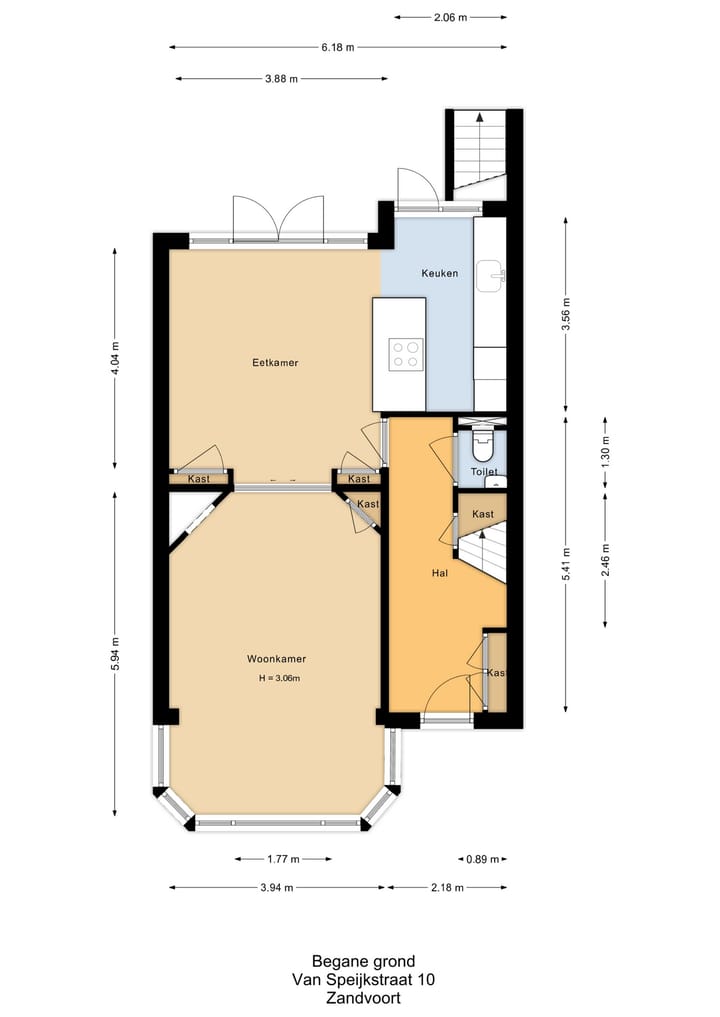
Ground Floor
Entrance with a canopy. Through the beautiful front door, you enter the hall, which is stunning with its 1930s details and the warm wooden floor that extends throughout the entire ground floor. There's a practical under-stairs cupboard and a toilet with a small basin. From this hallway, you have access to the dining room and the open-plan kitchen. The attractive living room is en-suite with sliding doors, a bay window, and a gas fireplace.
French doors lead to the garden, which includes the garage. The modern open kitchen is equipped with built-in appliances and has a door to the garden with an awning above it.
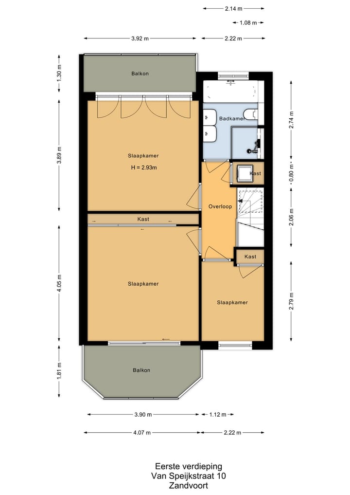
First Floor
Landing, front bedroom with a built-in wardrobe, large bedroom with a wide built-in wardrobe and an awning, with sliding doors to the east-facing balcony at the front of the house. The large back bedroom has access via French doors and windows to a balcony. The modern bathroom boasts high-quality finishes and includes a bathtub, shower, double sink with vanity, and a toilet. There's also a cupboard with a washing machine connection.
Basement (Spacious Storage), space for storage and the central heating system.
- Ready to move in, fully modernized with charming 1930s details
- Beautifully landscaped garden
- Diagonally opposite the train station
- Deep west-facing backyard
- Two balconies
- Extra storage space provided by the large basement
- Wooden garage with an electric door
- Living area approx. 114 m²
- Energy label B
Features
Transfer of ownership
- Last asking price
- € 775,000 kosten koper
- Asking price per m²
- € 6,798
- Status
- Sold
Construction
- Kind of house
- Single-family home, row house
- Building type
- Resale property
- Year of construction
- 1936
- Specific
- Double occupancy possible
- Type of roof
- Flat roof covered with asphalt roofing
- Quality marks
- Energie Prestatie Advies
Surface areas and volume
- Areas
- Living area
- 114 m²
- Other space inside the building
- 6 m²
- Exterior space attached to the building
- 12 m²
- External storage space
- 45 m²
- Plot size
- 204 m²
- Volume in cubic meters
- 471 m³
Layout
- Number of rooms
- 5 rooms (3 bedrooms)
- Number of bath rooms
- 1 bathroom and 1 separate toilet
- Bathroom facilities
- Shower, double sink, toilet, underfloor heating, and washstand
- Number of stories
- 2 stories and a basement
- Facilities
- Outdoor awning, optical fibre, mechanical ventilation, passive ventilation system, flue, TV via cable, solar collectors, and solar panels
Energy
- Energy label
- Insulation
- Roof insulation, double glazing, energy efficient window and insulated walls
- Heating
- CH boiler
- Hot water
- CH boiler
- CH boiler
- Intergas Kompakt HRE (gas-fired combination boiler from 2012, in ownership)
Cadastral data
- ZANDVOORT C 4850
- Cadastral map
- Area
- 204 m²
- Ownership situation
- Full ownership
Exterior space
- Location
- In residential district
- Garden
- Back garden
- Back garden
- 85 m² (13.00 metre deep and 6.50 metre wide)
- Garden location
- Located at the west with rear access
- Balcony/roof terrace
- Balcony present
Garage
- Type of garage
- Garage
- Capacity
- 3 cars
- Facilities
- Electrical door, loft, electricity and running water
- Insulation
- Double glazing
Parking
- Type of parking facilities
- Paid parking and resident's parking permits
Photos 63
© 2001-2026 funda






























































