This house on Funda: https://www.funda.nl/en/detail/koop/zetten/huis-wageningsestraat-65/43715190/

Description
ZETTEN
Wageningsestraat 65
Fraai gerenoveerde en luxe afgewerkte WOONBOERDERIJ (oorsprong 1910) welke tussen 2011-2012 volledig is gestript en waarbij alleen de gevels en dakspanten zijn blijven staan. Vervolgens heeft een aannemersbedrijf de woning naar het hedendaagse, moderne niveau opgebouwd. In 2014 is er tevens een groot multifunctioneel BIJGEBOUW achterin de tuin gerealiseerd met o.a. een STUDIO (ca. 56m2) met eigen voorzieningen, een verwarmde GARAGE (ca. 45m2) en een CARPORT (ca. 30m2) voor 2 auto’s naast elkaar. Het perceel is 1.060m2 groot waarbij de tuin in 2014 opnieuw is aangelegd met o.a. een veelzijdigheid aan fruitbomen, meerdere terrassen en een gazon. Door een gunstige zuid/westligging geniet de tuin maximaal aantal zonuren. Bovendien is er nauwelijks tot geen inkijk. De comfortabele ‘oprijlaan’ (2 auto’s breed) is af te sluiten met een elektrisch bedienbare poort.
Dit is een woning van de buitencategorie. Niet alleen vanwege het hoge luxe- en comfortgehalte, de duurzaamheid en de verzorgde onderhoudsstaat, maar ook vanwege het veelzijdige bijgebouw waar je verschillende invullingen aan kunt geven. De woning heeft een aantal grote pluspunten zoals een gezellige living met ingestucte gashaard, een royale leefkeuken met eilandopstelling, een praktische bijkeuken en een aangebouwde tuinkamer met (eveneens) vloerverwarming. Op de verdieping vinden we naast een riante overloop en nieuwe dakkapellen, 3 zeer volwaardige slaapkamers en een sfeervolle badkamer met alles erop-en-eraan. De woning heeft energielabel A+
Het nog relatief jonge bijgebouw heeft meerdere (leef)ruimtes en hoge zoldervlieringen. Het is volledig verwarmd en heeft eigen voorzieningen zoals een keukenblok, een toilet en gedeeltelijk airconditioning. De garage biedt plaats aan 2 auto’s en is de ideale ‘werkplaats’ voor bijvoorbeeld een ZZP’er. Aansluitend zijn er nog 2 ruimtes die kunnen dienen als kantoor of praktijkruimte. Op het dak zijn 20 zonnepanelen geplaatst (achterzijde, uit het zicht).
Quote van de makelaar: “Hier komen luxe, comfort en woonsfeer met elkaar samen. Zoek jij de X-factor in een woning en kun je het karakter van een meer dan 100 jaar oude woning waarderen? Dan ben je hier aan het juiste adres. Zeker wanneer je een multifunctioneel bijgebouw zoekt als garage/stallingsruimte, gastenverblijf, werkplaats/hobbyruimte, woonstudio of praktijkruimte”.
VOLLEDIGE RENOVATIE
Wanneer alleen de gevels en de dakspanten nog zijn blijven staan, kunnen we dan spreken over nieuwbouw? Deze voormalige woonboerderij (het voorhuis en deel) heeft in ieder geval zijn authentieke karakter en uitstraling behouden. Voorbeelden hiervan zijn de ‘gebroken’ mansardekap met haar originele, keramische dakpannen en de kleurrijke (nog functionele) luiken die stijlvol aftekenen tegen de ‘witgekeimde’ gevels. Hetzelfde geldt voor de eikenhouten staanders van de tuinkamer alsmede de hemelwaterafvoeren die in zink zijn uitgevoerd. Ook zijn er nog enkele stalramen van de voormalige deel behouden gebleven, uiteraard voorzien van nieuwe beglazing. Glas-in-lood bovenlichten (woonkamer en hal) zijn zelfs in isolatieglas geplaatst. De originele dakkapel op de overloop/ ouderslaapkamer is geheel gerenoveerd terwijl de slaapkamers aan de voorzijde ieder een geheel nieuwe dakkapel (in dezelfde stijl) hebben gekregen. In de woning vinden we onder meer nog stijlvolle paneeldeuren en architraven terug. En niet te vergeten het vrijdragende spantwerk van de kapconstructie die op de verdieping in het zicht zijn gelaten.
In de basis zijn er onderdelen vervangen die je normaal gesproken niet snel ziet. Denk daarbij aan riolering, elektra en verwarming. De groepenkast is flink uitgebreid en in elke leefruimte zijn er extra wandcontactdozen en UTP-aansluitingen aangebracht. Strak stucwerk, diverse inbouwspots en massief houten vloerafwerking maken de woning tot een modern en tijdloos geheel.
LUXE & COMFORT
Er is veel luxe en comfort aan de woning toegevoegd. Met respect voor de bouwperiode zijn er smaakvolle keuzes gemaakt waarbij fraaie materialen zijn toegepast. Een echte eye-catcher is de exclusieve eilandkeuken en de symmetrische wandopstelling die is voorzien van A-merk inbouwapparatuur. De vloer is voorzien van vloerverwarming waardoor radiatoren achterwege gelaten konden worden. In de living is er een brede gashaard met hardstenen schouw ‘ingestuct’. Het toilet in de ruime hal is modern en hetzelfde geldt voor de badkamer op de verdieping die al het wenselijke comfort te bieden heeft. Op de verdieping (overloop en ouderslaapkamer) zijn airco’s geplaatst waardoor het er altijd behaaglijk is.
ENERGIELABEL A+
De grondige renovatie, waarbij de woning is volledig is gestript, heeft de woning naar een uitzonderlijk hoog niveau gebracht. Niet alleen qua luxe, maar ook wat comfort en duurzaamheid betreft. De begane grondvloer is vervangen door een geïsoleerde betonvloer met vloerverwarming (zelfs in de tuinkamer), de gevels zijn aan de binnenzijde ‘ingepakt’ met metalstud voorzetwanden en de complete dakconstructie is voorzien geïsoleerde dakplaten (sandwichpanelen). De meeste kozijnen zijn vervangen door hardhout en voorzien van HR++ beglazing. In combinatie met 20 zonnepanelen en 2 airco’s, is het dan ook niet verwonderlijk dat deze woning een opvallend goed energielabel heeft gekregen.
LIVING
De woonkamer is aan de voorzijde gelegen en heeft de volle breedte van de woning (7m binnenmaat). De woonkamer is vergroot doordat er ruimtes bij elkaar zijn getrokken. Wat opvalt is de prettige lichtinval. De zon komt op aan de voorzijde en draait gunstig om de woning heen. Prachtig zijn de glas-in-lood bovenlichten die in isolatieglas zijn geplaatst. Ook de ingebouwde gashaard met hardstenen schouw heeft haar aandeel in het sfeervolle geheel, evenals de nis met houten ‘boekenplanken’. De houten vloer is voorzien van vloerverwarming waardoor radiatoren achterwege gelaten konden worden. Hardstenen vensterbanken, strak stucwerk van wanden en plafond v.v. sierlijsten en inbouwspots maken het plaatje compleet.
ROYALE LEEFKEUKEN
In de voormalige deel is een ware leefkeuken gecreëerd (ca. 35m2). Dit is misschien wel de ruimte waar je overdag de meeste tijd zult doorbrengen. Je kunt er immers een lange eettafel en een lekkere fauteuil kwijt. Hier kun je gezellig met familie of vrienden tafelen terwijl je aan het kokkerellen bent. Het kookeiland biedt daarin de ideale gelegenheid. Het eiland met natuurstenen werkblad is voorzien van een brede 5-pits gaskookplaat (gas-op-glas) met erboven een zwevende afzuigschouw. Mocht je voorkeur uitgaan naar koken op inductie, de aansluiting is reeds voorbereid.
De keuken wordt compleet gemaakt met een brede wandopstelling voorzien van een diep aanrechtblad, eveneens uitgevoerd in natuursteen (composiet). Leuk detail zijn de stalraampjes en de eikenhouten schap boven het aanrecht die het landelijke gevoel versterken. De inbouwapparatuur bestaat uit een koelkast, een stoomoven (2021), een koffiemachine (2021) en een vaatwasser op hoogte (2024). Ook zijn er (gescheiden) prullenbakken geïntegreerd. Achter de paneelfronten met robuuste doch landelijke grepen vindt je verder veel kastruimte zoals handige ladekorven. Het spotplafond zorgt voor een stukje extra sfeer en beleving.
Aangrenzend aan de keuken is een bijkeuken gelegen. Dit is een fijne ruimte om erbij te hebben omdat je hier veel ‘buffer’ hebt voor een extra koel/vriescombi, diverse keukenmachines en voorraad.
AANGEBOUWDE TUINKAMER
Tegelijkertijd met de grootschalige renovatie is er over de volle breedte van de achtergevel een tuinkamer aangebouwd. Je hoeft de dubbele deuren van de woonkeuken maar open te zetten en je vergroot het woongenot met ca. 24m2. De tuinkamer geeft de woning een extra dimensie doordat je hier voor je gevoel al in de tuin zit, maar lekker vanachter het glas van een voor- of najaarszonnetje kunt genieten. Overigens is het hier het gehele jaar goed toeven doordat de natuurstenen vloer (basaltgraniet 80x80) is voorzien van vloerverwarming. En mocht je het buitenleven bij de tuinkamer willen betrekken, dan creëer je eenvoudig een veranda door de brede schuifpuien open te zetten (2 zijden).
Er is niet bezuinigd op deze tuinkamer. Robuuste, houten staanders dragen de dakconstructie die dan weer stijlvol is bekleed met leisteen. Het ontwerp is hierdoor erg stijlvol waarbij er aan de zijkant zelfs nog een stukje overstek van de kap gerealiseerd is. In de tuinkamer zijn er verschillende voorzieningen getroffen zoals een wateraansluiting en afvoer zodat je eventueel nog een buitenkeuken zou kunnen creëren. Er zijn voldoende wandcontactdozen waaronder in het plafond voor het plaatsen van bijvoorbeeld geluidsboxen.
1e VERDIEPING
Via een royale entree met karakteristieke, open trapopgang bereiken we de 1e verdieping. Deze woonlaag is bijzonder ruimtelijk opgezet met o.a. een riante overloop en grote slaapkamers waarbij het accent op de hoge plafonds ligt. De houten draagbalken van de kapconstructie zijn daarbij fraai in het zicht gelaten terwijl stucwerk voor een strak afwerkingsniveau zorgt.
De overloop schakelt 3 slaapkamers en de badkamer aan elkaar. Het is niet zomaar een overloop aangezien je hier veel maatwerk inbouwkasten vindt. Paneeldeuren met authentiek deurbeslag zorgen weer voor die landelijke beleving, evenals de klassieke mansardekap. Bij deze ‘gebroken’ kapconstructie is het onderste gedeelte van de kap vrij stijl waardoor je nauwelijks ruimte verliest. Desondanks zijn er toch 3 brede dakkapellen geplaatst die voor extra ruimte én daglicht zorgen.
De slaapkamers zijn respectievelijk 17m2, 14m2 en 11m2 groot. Er zit dus geen kleine kamer tussen. Elke kamer heeft voldoende wandcontactdozen en een eigen UTP-aansluiting. De ouderslaapkamer aan de achterzijde is voorzien van een eigen airco en inbouwspots in de hoge nok. Op de overloop is een 2e airco geplaatst die onder meer de andere 2 slaapkamers meeneemt.
COMPLETE BADKAMER
Bij een gezinswoning van dit kaliber mag je ook een volwaardige, complete badkamer verwachten. Ook hier is er speels omgegaan met de ruimte van het hoge plafond, het vrijdragende spantwerk en een extra dakvenster. De ruimte is ingedeeld met een 1,2 meter brede inloopdouche (zowel rainshower als handdouche), een ligbad, een stijlvol 2-persoons wastafelmeubel en een 2e zwevend toilet. Het wastafelmeubel is in hout uitgevoerd met aan de bovenzijde een hardstenen blad voorzien van 2 verzonken waskommen. Erboven hangt een brede spiegel die verwarmd is zodat deze niet beslaat. Onder de schuine zijde is er plaats voor een wasmachine en wasdroger naast elkaar. Koude voeten hoef je hier niet te krijgen aangezien de vloer is voorzien van vloerverwarming (op de CV).
BUITENLEVEN
Deze woning staat ook in het teken van het buitenleven. Je krijgt hier namelijk een royale, privacyvolle tuin met veel zonuren. De oriëntatie van de zij- en achtertuin is gunstig, namelijk op het zuid/westen.
In 2014 is de tuin voor een belangrijk gedeelte leeg getrokken en opnieuw aangelegd. Meerdere terrassen met groot formaat tegels, gebakken klinkers in de oprit (waaltjes en dikformaat), een grasgazon en een veelzijdigheid aan fruitbomen kleuren de tuin. Opvallend is dat de tegels vanuit de tuinkamer bijna naadloos doorlopen in het buitenterras. Het grasveld geeft kinderen de gelegenheid om te spelen. Achterin de tuin (naast het bijgebouw) is een ideale hoek voor het plaatsen van speeltoestellen zoals een trampoline zonder dat het echt aanwezig is.
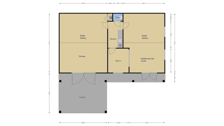
STUDIO & GARAGE
Het bijgebouw is opgedeeld in een dubbele garage (ca. 45m2) en een (muziek)studio van ca. 56m2 groot. Beide ruimtes hebben een zolderverdieping (vide) met een opvallende nokhoogte van 4,5 meter waar je creatief mee om kunt gaan. In de garage kun je er bijvoorbeeld veel (seizoen)spullen opbergen terwijl het in de studio bijvoorbeeld een prima ‘slaapvide’ zou kunnen zijn. De studio is weer onderverdeeld in een grote, multifunctionele ruimte, een keuken met toilet en een afzonderlijk ‘kantoortje’. Uiteraard zijn er voldoende wandcontactdozen en data-aansluitingen, en is er zelfs een alarmsysteem geïnstalleerd. Het gehele bijgebouw (incl. garage) is warm te stoken met een eigen CV-ketel (centrale verwarming). Overigens is de studio ook voorzien van airconditioning die zowel kan verwarmen als koelen.
De garage (7,4m diep bij 6 meter breed) biedt stallingsruimte voor 2 auto’s naast elkaar. Ook zou het een ideale hobbyruimte of klusruimte kunnen zijn. De gehele garage is geïsoleerd (vloer, spouwmuur en dak) waarbij de betonvloer is afgewerkt met een coating.
Het bijgebouw maakt deze woning extra bijzonder en uniek. Vindt maar eens een woning met een relatief nieuw bijgebouw (2014) die volledig is geïsoleerd en eigen voorzieningen heeft. Dit zorgt ervoor dat het bijgebouw voor meerdere doeleinden zeer geschikt is. Denk daarbij aan een praktijkruimte, een kantoor of salon aan huis, een B&B of een muziekstudio. Ook een ZZP’er zou hier prima uit de voeten kunnen. En heb je een tiener of twintiger die nog wel even thuis wil wonen maar dan meer op zichzelf, dan biedt zich hier de ideale gelegenheid aan. Hetzelfde geldt voor eventuele mantelzorg.
CARPORT & OPRIT
Aan de voorzijde van de garage is een 2 auto’s brede carport aangebouwd. Ook hier ondersteunen eikenhouten staanders het pannengedekte zadeldak. De carport zorgt ervoor dat je 2 auto’s altijd beschut tegen weersinvloeden kunt parkeren. Op een winterdag ijskrabben is hier verleden tijd.
De oprit is tot aan de carport maar liefst 37 meter lang en voelt aan als een ‘oprijlaan’. De oprit is breed aangelegd waardoor je elkaar niet in de weg hoeft te staan. Zo kan de gehele familie en/of vriendengroep op deze oprit parkeren. Noemenswaardig is de dubbele poort aan het begin van de oprit. Deze is elektrisch en opstand te bedienen. Hierdoor kun je het perceel helemaal afsluiten, ook handig wanneer je bijvoorbeeld huisdieren hebt.
CIJFERS IN BEELD
Woonoppervlak woning: ca. 189m2
Woonoppervlak bijgebouw: ca. 56m2
Totaal woonoppervlak: ca. 245m2
Grote, dubbele garage: ca. 45m2
Dubbele carport: ca. 30m2
Inhoud: ca. 685m3 (excl. bijgebouw)
Perceelgrootte: 1.060m2
LET OP
Omdat Funda maar een beperkt aantal leestekens accepteert, kun je op onze website remkostevens.nl het vervolg van deze tekst lezen over de indelingen van zowel de woning als het bijgebouw, informatie omtrent het winkeldorp Zetten, de centrale ligging in de regio en alle pluspunten waarom je deze woning gezien moet hebben.
DISCLAMER
Deze informatie is door ons met de nodige zorgvuldigheid samengesteld. Onzerzijds wordt echter geen enkele aansprakelijkheid aanvaard voor enige onvolledigheid, onjuistheid of anderszins, dan wel de gevolgen daarvan. Alle opgegeven maten en oppervlakten zijn indicatief. Van toepassing zijn de NVM-voorwaarden.
Features
Transfer of ownership
- Last asking price
- € 995,000 kosten koper
- Asking price per m²
- € 4,061
- Status
- Sold
Construction
- Kind of house
- Converted farmhouse, detached residential property
- Building type
- Resale property
- Year of construction
- 1910
- Specific
- Double occupancy possible and partly furnished with carpets and curtains
- Type of roof
- Mansard roof covered with roof tiles
- Quality marks
- Energie Prestatie Advies
Surface areas and volume
- Areas
- Living area
- 245 m²
- Exterior space attached to the building
- 30 m²
- External storage space
- 45 m²
- Plot size
- 1,060 m²
- Volume in cubic meters
- 685 m³
Layout
- Number of rooms
- 4 rooms (3 bedrooms)
- Number of bath rooms
- 1 bathroom and 1 separate toilet
- Bathroom facilities
- Shower, double sink, walk-in shower, bath, toilet, underfloor heating, sink, and washstand
- Number of stories
- 2 stories
- Facilities
- Air conditioning, alarm installation, skylight, optical fibre, mechanical ventilation, flue, sliding door, and TV via cable
Energy
- Energy label
- A+
- Insulation
- Roof insulation, double glazing, energy efficient window, insulated walls, floor insulation and completely insulated
- Heating
- CH boiler, gas heater and partial floor heating
- Hot water
- CH boiler
- CH boiler
- Nefit Proline HR (gas-fired combination boiler from 2024, in ownership)
Cadastral data
- VALBURG F 124
- Cadastral map
- Area
- 1,060 m²
- Ownership situation
- Full ownership
Exterior space
- Location
- Open location and unobstructed view
- Garden
- Back garden, surrounded by garden, front garden and side garden
- Back garden
- 708 m² (29.50 metre deep and 24.00 metre wide)
- Garden location
- Located at the southwest with rear access
Storage space
- Shed / storage
- Detached brick storage
- Facilities
- Loft, electricity, heating and running water
Garage
- Type of garage
- Carport, garage with carport and detached brick garage
- Capacity
- 2 cars
- Facilities
- Loft, electricity, heating and running water
- Insulation
- Roof insulation, double glazing, insulated walls and floor insulation
Parking
- Type of parking facilities
- Parking on private property and public parking
Photos 101
© 2001-2025 funda




































































































