This house on Funda: https://www.funda.nl/en/detail/koop/zevenaar/appartement-marktstraat-8/43530199/

Marktstraat 86901 AL ZevenaarCentrum
€ 599,000 k.k.
Description
Karakteristiek pand met op dit moment een winkelruimte op begane grond en een bovenwoning op de verdiepingen. Het pand ligt op een A-locatie in het centrum van Zevenaar!
Oorspronkelijk is het pand gebouwd in 1951. Daarna meerdere keren verbouwd tot de indeling op dit moment. Echter zijn bij de verbouwingen wel de unieke kenmerken behouden gebleven. De mooie originele pui met overdekte ingang is inmiddels uniek geworden in het generieke straatbeeld van rechte puien.
Op de verdieping is er een ruime bovenwoning met 3 slaapkamers en het dakterras op het westen. Het dakterras is maar liefst 99 m2 groot en een perfect plekje om gezellig met vrienden/familie te genieten van de avondzon. Het dakterras is voorzien van diverse terrassen en ligt privé en rustig.
De Marktstraat 8 8a ligt in DE winkelstraat van het centrum van Zevenaar, tegenover onder meer Bakker Bart. Het horecaplein en het Raadhuisplein zijn op korte afstand gelegen.
Deze winkel/woning wordt u aangeboden met een vraagprijs van € 599.000,- k.k.
Indeling woning
Begane grond:
Entree met trap naar...
Eerste verdieping:
Overloop, toilet met fontein, keuken met inbouwkeuken voorzien van rvs blad, woonkamer met eetkamer voorzien van houten vloer, bijkeuken met opstelling witgoed, dakterras, gelegen op het westen, is bereikbaar via eetkamer en bijkeuken.
Tweede verdieping:
Overloop met voldoende kast- en bergruimte, 3 ruime slaapkamers waarvan 2 met inbouwkasten, badkamer met ligbad, douche, toilet en wastafel.
Via de bergruimte op de overloop kunt u met een vlizotrap de vliering bereiken.
Indeling winkel
Overdekte entree met toegang naar ruime winkelruimte, via doorloop met kelder en meterkast naar voorste winkelgedeelte, met achter in de winkel een kantoor, magazijn met kelder en de werkplaats met achteringang, wasruimte en toilet.
Er zijn 2 kelders bereikbaar van +/- 3x5 en 3x2.
Bijzonderheden:
Oorspronkelijke bouwjaar: 1952 (diverse malen verbouwd).
Energielabel D.
Cv-ketel (woning): Nefit Trendline, februari 2015.
Uitstekende locatie.
Pannendak vervangen in 2018.
Aanvaarding en oplevering in overleg.
Woning
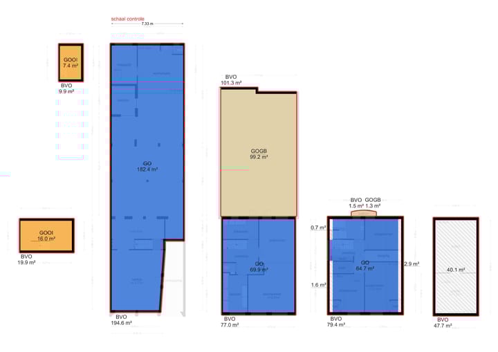
Woonoppervlakte bovenwoning: 135 m2.
Oppervlakte dakterras: 99 m2.
Aluminium kozijnen, met zonnescherm, aan de voorzijde.
Originele paneeldeuren.
Woonkamer en eetkamer voorzien van fraaie houten vloer.
Winkel
Winkelruimte: 180 m2.
Bergruimte winkel: 21 m2 (kelders).
Volledige breedte: 7,33 m.
Bestemming: Centrum-1.
Zonnescherm aan de voorzijde.
Features
Transfer of ownership
- Listed since
- Acceptance
- Available in consultation
- Asking price
- € 599,000 kosten koper
- Asking price per m²
- € 4,437
- Status
- Available
Construction
- Type apartment
- Upstairs apartment
- Building type
- Resale property
- Year of construction
- 1951
- Type of roof
- Hip roof covered with roof tiles
Surface areas and volume
- Areas
- Living area
- 135 m²
- Other space inside the building
- 206 m²
- Exterior space attached to the building
- 101 m²
- Volume in cubic meters
- 1,252 m³
Layout
- Number of rooms
- 8 rooms (3 bedrooms)
- Number of bath rooms
- 1 bathroom and 1 separate toilet
- Bathroom facilities
- Shower, bath, toilet, and sink
- Number of stories
- 2 stories, a loft, and a basement
- Facilities
- Optical fibre, flue, and TV via cable
- Located at
- 2nd floor
Energy
- Energy label
- D
- Insulation
- Roof insulation and partly double glazed
- Heating
- CH boiler
- Hot water
- CH boiler
- CH boiler
- Nefit Trendline Easy (gas-fired combination boiler from 2015, in ownership)
Cadastral data
- ZEVENAAR A 1139
- Cadastral map
- Ownership situation
- Full ownership
Exterior space
- Location
- In centre
- Garden
- Sun terrace
- Sun terrace
- 101 m² (13.01 metre deep and 7.77 metre wide)
- Garden location
- Located at the west
- Balcony/roof terrace
- Balcony present
Parking
- Type of parking facilities
- Paid parking
VVE (Owners Association) checklist
- Registration with KvK
- No
- Annual meeting
- No
- Periodic contribution
- No
- Reserve fund present
- No
- Maintenance plan
- No
- Building insurance
- No
Commercial property
- Retail space
- 200 m², built-in
Photos 52
Floorplans 7
© 2001-2025 funda


























































