This house on Funda: https://www.funda.nl/en/detail/koop/zwijndrecht/huis-ballade-117/89633333/

Ballade 1173335 EM ZwijndrechtDe As
€ 469,000 k.k.
Description
Weer een mooie woning op de markt!
Deze goed onderhouden woning is gelegen in de rustige en groene wijk Heer Oudelands Ambacht. Op loopafstand van recreatiegebied Kijfhoek, nabij winkelcentrum Oudeland, scholen en uitvalswegen. De Ballade is een rustige en zeer kindvriendelijke straat. Deze woning is gebouwd in 1997 onder een fraaie architectuur en met een goede uitstraling. Energielabel B, 3 tot 4 slaapkamers, een zonnige woonkamer met openslaande deuren naar de tuin, een dakkapel en onder andere een complete keuken aan de straatzijde maken dit huis compleet.
Kortom deze woning vinkt al je woonwensen af, bel of mail ons voor een bezichtiging!
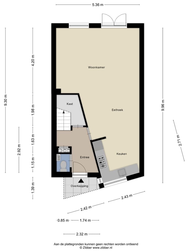
Indeling:
Begane grond: Entree met hal voorzien van de meterkast, garderoberuimte, trap naar de 1e verdieping en een zeer ruime trapkast. De toiletruimte is geheel betegeld en voorzien van een hangend toilet en een fonteintje.
De zonnige en tuingerichte woonkamer is voorzien van openslaande deuren naar de achtertuin.
Aan de voorzijde is de ruime open keuken gelegen met zicht op de straat. De keuken is voorzien van een L-vormige opstelling met een stenen werkblad, een vaatwasser, een 5 pits gaskookplaat, afzuigkap, een combi-oven, koelkast en een vriezer.
Afmeting woonkamer/keuken circa: 5.36/2.43x4.20/9.30 en 9.96 diepste punt.
De hal, woonkamer en de keuken zijn voorzien van eiken houten vloerdelen, tijdloos en fraai!
1e VERDIEPING:
Overloop met toegang tot 3 volwaardige slaapkamers en de badkamer.
- 1e slaapkamer, gelegen aan de straatzijde met afmeting 3.29x3.97 met 2 ramen en rolluiken.
- 2e slaapkamer, gelegen aan de tuinzijde met afmeting 2.84x3.75 met 1 raam en een rolluik.
- 3e slaapkamer, gelegen aan de tuinzijde met afmeting 2.37x4.77 met 1 raam en een rolluik.
Slaapkamer 2 en 3 zijn voorzien van laminaat.
De geheel betegelde badkamer meet circa 1.97x2.69 en bestaat uit een wastafelmeubel uit 2021, een douchecabine met een glazen wand, een ligbad en een toilet. Verder is de badkamer voorzien van een raam en een radiator.
2e VERDIEPING:
De 2e verdieping bestaat uit een grote open ruimte die eventueel in te delen is in een voorzolder, een 4e slaapkamer en een vliering. Nu een fijne multifunctionele ruimte van circa 5.33x3.94 plus ruimte achter de 1.50 lijn. met de opstelplaats wasmachine/droger, de combiketel uit 2021, 2 dakramen en een vaste kast met 3 schuifdeuren.
TUIN:
Aangelegde voortuin en een gezellige achtertuin van circa 7.00x5.50 met een ligging op het zuidwesten voorzien van een terras, beplanting en een stenen berging van circa 8 m² met elektra. Via een achterom is het achterpad te bereiken en aan de achtergevel een elektrisch zonnescherm en een buitenkraan.
BIJZONDERHEDEN:
-Energielabel B.
-Betonnen vloeren.
-Houten kozijnen, rondom dubbelglas.
-Deels kunststof kozijnen.
-Vloer-, dak- en spouwmuurisolatie.
-3 slaapkamers en een dakkapel.
-Diverse elektrische rolluiken.
-Nette achtertuin met privacy.
-Gebruiksoppervlakte circa 117 m².
-Circa 19 m² achter de 1.50 lijn (onder andere bergruimte).
-Externe bergruimte is 8 m².
-Bouwjaar 1997.
-Fijne, rustige en groene wijk.
-Inhoud circa 411 m3.
-Gelegen op 124 m² eigen grond.
-Intergas combiketel uit 2021.
Oplevering: In overleg.
De meting en berekeningen zijn op basis van de ”Meetinstructie bepalen gebruiksoppervlakten woningen” en ”Meetinstructie bepalen bruto inhoud woningen” a.d.h.v. de NEN2580:2007 NL, ‘Oppervlakten en inhouden van gebouwen – Termen, definities en bepalingsmethoden’, inclusief het correctieblad NEN 2580:2007/C1:2008. Op dit meetcertificaat zijn de in dit meetrapport genoemde aannames en voorbehouden van toepassing. Rapport opgemaakt door Zibber B.V., naar beste kennis en wetenschap, geheel te goeder trouw en voldoet aan de eisen van NTA 2581:2011 3 Toelichting bij rapport Informatie over het rapport Zibber B.V. heeft een meetrapport samengesteld, waarin de gebruiksoppervlakten gesplitst per woonlaag en/of bijzondere ruimten zijn aangegeven. Het meetrapport is opgesteld conform de NTA:2011 NL. De meting en berekeningen zijn conform de richtlijnen NEN2580:2007 NL, ‘Oppervlakten en inhouden van gebouwen – Termen, definities en bepalingsmethoden’, inclusief het correctieblad NEN 2580:2007/C1:2008 en voor zover relevant conform de NTA 2581 ‘Opstellen van meetrapporten volgens NEN2580’. Met uitzondering van de afwijkingen aangegeven in de meetinstructie Juli 2020 opgesteld door NVM, Vastgoed Pro, VBO, VNG, NRVT en de Waarderingskamer. Op dit meetcertificaat zijn de in dit meetrapport genoemde aannames en voorbehouden van toepassing.
Rechtsgeldige koopovereenkomst pas ná ondertekening: Een mondelinge overeenstemming tussen de particuliere verkoper en de particuliere koper is niet rechtsgeldig. Met andere woorden: er is (nog) geen koop. Er is pas sprake van een rechtsgeldige koop als de particuliere verkoper en de particuliere koper de koopovereenkomst hebben ondertekend. Dit vloeit voort uit artikel 7:2 Burgerlijk Wetboek. Een bevestiging van de mondelinge overeenstemming per e-mail of een toegestuurd concept van de koopovereenkomst wordt overigens niet gezien als een ‘ondertekende koopovereenkomst’
Features
Transfer of ownership
- Listed since
- Acceptance
- Available in consultation
- Asking price
- € 469,000 kosten koper
- Asking price per m²
- € 4,009
- Status
- Available
Construction
- Kind of house
- Single-family home, row house
- Building type
- Resale property
- Year of construction
- 1997
- Specific
- Partly furnished with carpets and curtains
- Type of roof
- Combination roof covered with roof tiles
Surface areas and volume
- Areas
- Living area
- 117 m²
- External storage space
- 8 m²
- Plot size
- 124 m²
- Volume in cubic meters
- 411 m³
Layout
- Number of rooms
- 5 rooms (4 bedrooms)
- Number of bath rooms
- 1 bathroom and 1 separate toilet
- Bathroom facilities
- Shower, bath, toilet, and washstand
- Number of stories
- 3 stories
- Facilities
- Outdoor awning, skylight, rolldown shutters, and TV via cable
Energy
- Energy label
- B
- Insulation
- Roof insulation, double glazing, insulated walls and floor insulation
- Heating
- CH boiler
- Hot water
- CH boiler
- CH boiler
- Intergas (gas-fired combination boiler from 2021, in ownership)
Cadastral data
- ZWIJNDRECHT E 3732
- Cadastral map
- Area
- 124 m²
Exterior space
- Location
- Alongside a quiet road, sheltered location and in residential district
- Garden
- Back garden and front garden
- Back garden
- 39 m² (7.00 metre deep and 5.50 metre wide)
- Garden location
- Located at the southwest with rear access
Storage space
- Shed / storage
- Detached brick storage
- Facilities
- Electricity
Parking
- Type of parking facilities
- Public parking
Photos 39
Floorplans 4
© 2001-2025 funda










































