This house on Funda: https://www.funda.nl/en/detail/koophuur/soest/huis-torenstraat-14/43269757/

Torenstraat 143764 CM SoestSoest Midden
€ 650,000 k.k.
€ 2,750 p/mo.
Description
Twee-onder-één-kapwoning – Torenstraat 14, Soest
Volledig vernieuwde twee-onder-één-kapwoning met hoogwaardige afwerking, drie ruime slaapkamers, luxe badkamer en moderne keuken. De woning beschikt over vloerverwarming op alle verdiepingen, een hybride verwarmingsinstallatie en zonnepanelen. Met energielabel A+++ is de woning zeer energiezuinig.
Indeling
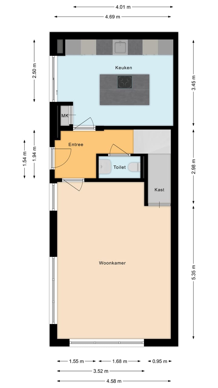
Begane grond
Entree met hal, meterkast en modern toilet met fonteintje. Vanuit de hal toegang tot de lichte woonkamer met grote raampartijen, ingebouwde wandnissen met LED-verlichting en een visgraat pvc-vloer. De woonkamer staat in open verbinding met de moderne keuken. Deze is uitgevoerd met een kookeiland, inductiekookplaat met geïntegreerde afzuiging, combi-oven, oven, vaatwasser, koel-vriescombinatie en veel bergruimte in de kastenwand. Via een schuifpui is de tuin bereikbaar. Vanuit de woonkamer is tevens de trapkast toegankelijk.
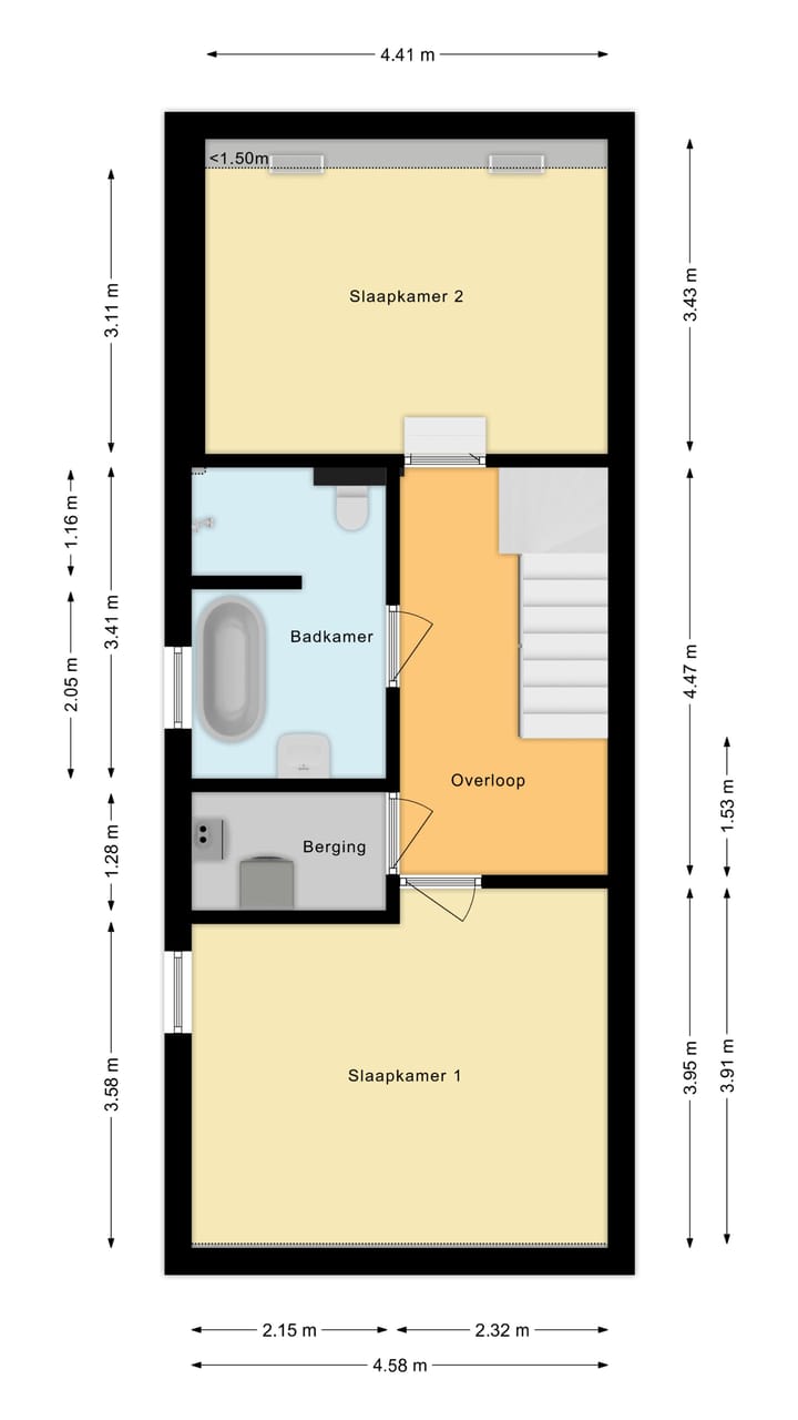
Eerste verdieping
Overloop met toegang tot twee slaapkamers. De badkamer is luxe uitgevoerd met een vrijstaand ligbad, inloopdouche, wastafelmeubel met waskom en een tweede toilet. Ook bevindt zich hier een aparte technische ruimte/berging met aansluitingen voor wasmachine en droger.
Tweede verdieping (zolder)
Ruime derde slaapkamer met veel lichtinval door de dakkapel en meerdere ramen. Onder de schuine kap is praktische opbergruimte aanwezig, deels afgewerkt met vaste kasten.
Kelder
Vanuit de keuken is via een luik toegang tot de kelderruimte. Deze ruimte is voorzien van betonvloer en gestucte wanden en biedt plaats aan technische installaties zoals de verdeler voor de vloerverwarming en de watermeter. De kelder is geschikt voor opslag en praktische bergruimte.
Buiten
De woning heeft een verzorgd aangelegde voortuin met sierbeplanting en een achtertuin met bestrating en erfafscheiding. Daarnaast is er een externe berging (ca. 5 m²) aanwezig.
Energie
Deze woning is voorzien van een energielabel A+++ en voldoet daarmee aan de hoogste energie-eisen. Het huis beschikt over een hybride verwarmingsinstallatie (Intergas Kombi Kompakt HReco 36 in combinatie met warmtepomp, 2025), volledige vloerverwarming en zonnepanelen met een capaciteit van 2.352 Wp. Dankzij de uitstekende isolatie is de woning zeer duurzaam en energiezuinig.
Omgeving
De woning ligt aan de Torenstraat in Soest, in de wijk Soest Midden. Op loopafstand zijn winkels, horeca en voorzieningen aanwezig. Ook scholen en openbaar vervoer bevinden zich in de directe nabijheid. Voor natuurliefhebbers zijn de Soester Duinen en het poldergebied op korte fietsafstand bereikbaar.
Kenmerken
- Twee-onder-één-kapwoning (1938, volledig vernieuwd in 2025)
- Woonoppervlakte ca. 130 m²
- Perceeloppervlakte: nader te bepalen via Kadaster
- Bruto inhoud ca. 463 m³
- 3 slaapkamers
- Luxe badkamer met ligbad, inloopdouche en toilet
- Moderne keuken met kookeiland en inbouwapparatuur
- Kelder bereikbaar vanuit de keuken
- Volledige vloerverwarming
- Hybride warmtepompinstallatie (2025)
- Energielabel A+++
- Zonnepanelen (2.352 Wp)
- Verkoop door belegger (niet zelf bewoond en geen lijst van zaken en vragenlijst aanwezig)
Bent u benieuwd naar deze moderne woning? Wij nodigen u graag uit voor een bezichtiging.
Features
Transfer of ownership
- Listed since
- Acceptance
- Available in consultation
- Asking price
- € 650,000 kosten koper
- Asking price per m²
- € 5,000
- Rental price
- € 2,750 per month (no service charges)
- Deposit
- € 5,500 one-off
- Rental agreement
- Indefinite duration
- Status
- Available
Construction
- Kind of house
- Single-family home, double house
- Building type
- Resale property
- Year of construction
- 1915
- Type of roof
- Gable roof covered with roof tiles
Surface areas and volume
- Areas
- Living area
- 130 m²
- Other space inside the building
- 6 m²
- External storage space
- 5 m²
- Plot size
- 180 m²
- Volume in cubic meters
- 474 m³
Layout
- Number of rooms
- 4 rooms (3 bedrooms)
- Number of bath rooms
- 1 bathroom and 1 separate toilet
- Bathroom facilities
- Walk-in shower, bath, toilet, underfloor heating, sink, and washstand
- Number of stories
- 2 stories and an attic
- Facilities
- Skylight, optical fibre, passive ventilation system, sliding door, TV via cable, and solar panels
Energy
- Energy label
- A+++
- Insulation
- Triple glazed and completely insulated
- Heating
- CH boiler and heat pump
- Hot water
- CH boiler
- CH boiler
- Intergas Kombi Kompakt HReco 36 (gas-fired combination boiler from 2025, in ownership)
Cadastral data
- SOEST K 4169
- Cadastral map
- Area
- 180 m²
- Ownership situation
- Full ownership
Exterior space
- Garden
- Back garden, front garden and side garden
- Back garden
- 25 m² (5.00 metre deep and 5.00 metre wide)
- Garden location
- Located at the west
Storage space
- Shed / storage
- Detached brick storage
- Facilities
- Electricity
Parking
- Type of parking facilities
- Public parking
Photos 43
© 2001-2025 funda










































