Save
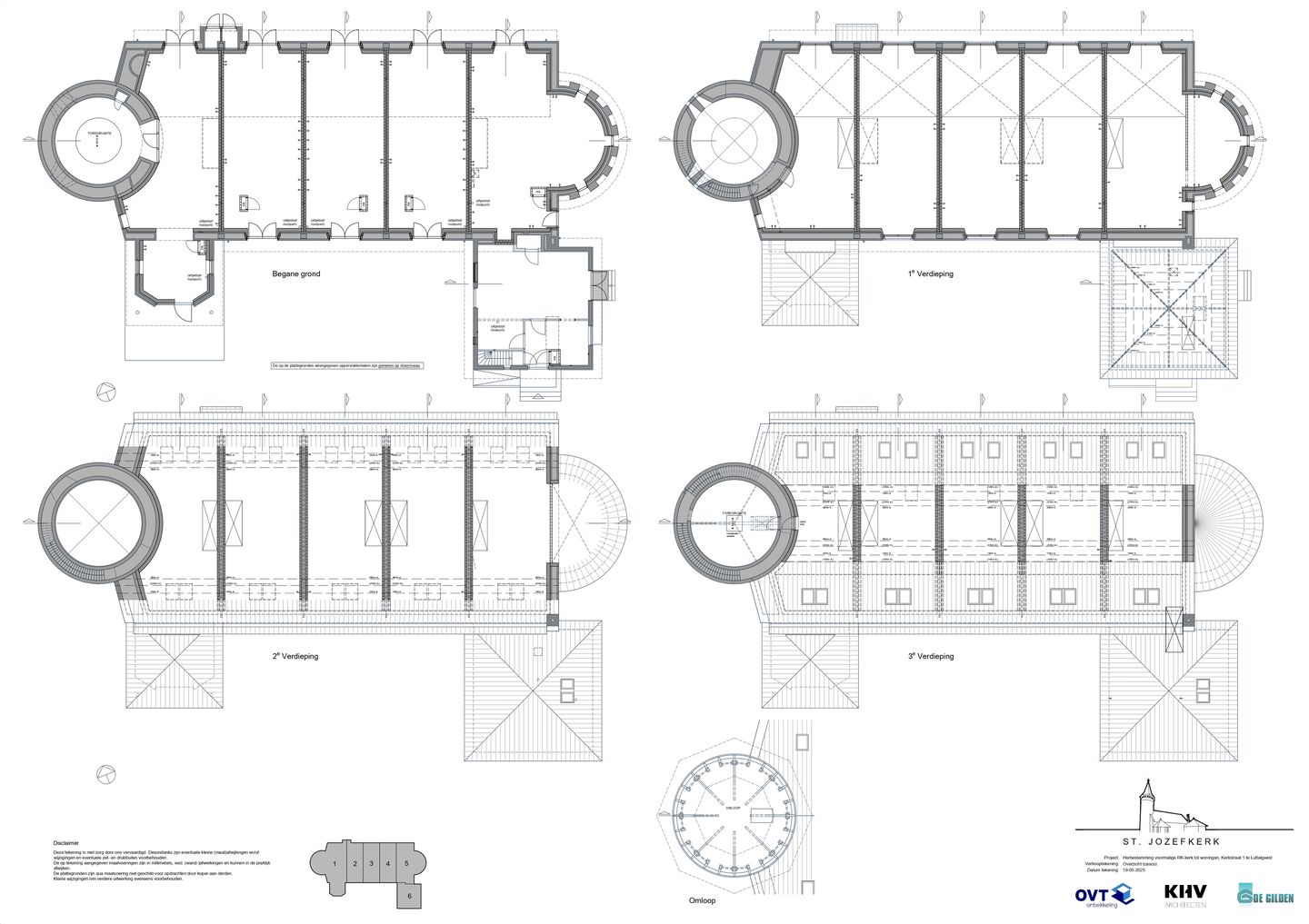
Sint Jozef
8315 AD Luttelgeest
€ 175,500 - € 525,500 v.o.n.
Interested? These are the next steps you can expect
View photos again
11 / 20
All media
Advertisement