This house on Funda: https://www.funda.nl/en/detail/recreatie/eanjum/huis-easterskans-7-228/42189357/

Easterskâns 7-2289133 DB EanjumOostmahorn
€ 249,500 k.k.
Description
In Oudfriese stijl gebouwde 8-persoons luxe recreatiewoning gelegen op het park Landal Esonstad.
De woning (type 8L) ligt in het centrum van het park nabij alle voorzieningen zoals diverse horeca- en winkelvoorzieningen maar ook het hoofdgebouw met daarin het zwembad en de indoor speelhal. De woning is onlangs gerestyled waarbij onder andere nieuwe meubels en bedden zijn geplaatst, de wanden zijn geschilderd en de badkamer is aangepast. Vanuit de achtertuin die op het zuidoosten is gelegen kijkt men over een binnenwater.
Het park ligt aan de rand Nationaal Park Lauwersmeer en er is een opstapplaats voor de snelle veerdienst naar Schiermonnikoog. Dit is dé plek om heerlijk te ontspannen en te genieten van de natuur! Ook ligt Landal Esonstad nabij de historische en gezellige stad Dokkum, dit op slechts 15 km afstand.
Indeling
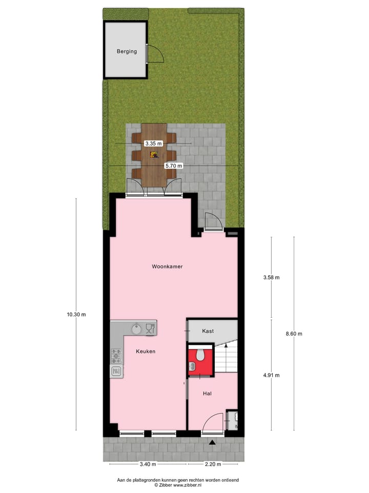
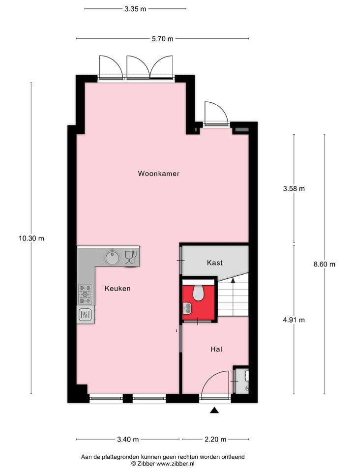
Begane grond: binnenkomst via een ruime entree/hal met toilet en meterkast. Vanuit de hal loopt u door naar de L-vormige keuken met een ruime eethoek. De moderne keuken is voorzien van alle gangbare inbouwapparatuur. Via de open keuken is er toegang tot de lichte en sfeervolle woonkamer met tuindeuren naar terras en achtertuin op het zuidoosten en aan het water. In de achtertuin vindt u tevens een houten berging (ca. 4 m²).
1e Verdieping: overloop, een tweetal slaapkamers waarvan één zeer royaal met openslaande deuren naar het balkon, badkamer voorzien van ligbad, toilet, wastafelmeubel, witgoedaansluiting en inloopdouche met Sunshower.
2e Verdieping: overloop, vaste kast met cv-opstelling, twee ruime slaapkamers, twee de badkamer met toilet, wastafelmeubel en inloopdouche.
Zolder: een (afsluitbare) zolderruimte met voldoende opbergmogelijkheid.
- Volledig gestoffeerd en gemeubileerd;
- Vrijstaande houten tuinberging;
- Verhuur van de woningen gaat via Landal Esonstad, verhuur in eigen beheer is niet toegestaan.
Voorzieningen Landal Esonstad:
- Indoor speelparadijs, overdekt zwembad met apart peuterbad, Turks stoombad, whirlpool en sauna, Pitch & Putt golfbaan, snackbar, parkwinkel;
- Uitgaansgelegenheden Brasserie De Waegh en Stadscafé en Pizzeria Uccello;
- Snelle veerverbinding met m.s. Esonborg naar Schiermonnikoog, in het hoogseizoen zelfs dagelijks;
- Volop wandel- en fietsroutes in het aangrenzende natuurgebied.
Features
Transfer of ownership
- Original asking price
- € 265,000 kosten koper
- Listed since
- Acceptance
- Available in consultation
- Asking price
- € 249,500 kosten koper
- Status
- Available
- Permanent occupancy
- Permanent occupancy is not allowed
Construction
- Kind of house
- Single-family home, row house
- Building type
- Resale property
- Year of construction
- 2006
- Specific
- Furnished and with carpets and curtains
- Type of roof
- Hipped roof covered with roof tiles
Surface areas and volume
- Areas
- Living area
- 139 m²
- Other space inside the building
- 3 m²
- Exterior space attached to the building
- 6 m²
- External storage space
- 4 m²
- Plot size
- 122 m²
- Volume in cubic meters
- 509 m³
Layout
- Number of rooms
- 5 rooms (4 bedrooms)
- Number of bath rooms
- 2 bathrooms and 1 separate toilet
- Bathroom facilities
- 2 showers, bath, 2 toilets, and 2 washstands
- Number of stories
- 3 stories and an attic
- Facilities
- Mechanical ventilation and TV via cable
Energy
- Energy label
- A
- Insulation
- Roof insulation, double glazing, insulated walls and floor insulation
- Heating
- CH boiler
- Hot water
- CH boiler
- CH boiler
- Gas-fired combination boiler, in ownership
Cadastral data
- ANJUM G 1524
- Cadastral map
- Area
- 122 m²
- Ownership situation
- Full ownership
Exterior space
- Location
- Alongside a quiet road, alongside waterfront and in recreation park
- Garden
- Back garden
- Back garden
- 45 m² (7.50 metre deep and 6.00 metre wide)
- Garden location
- Located at the southeast
- Balcony/roof terrace
- Balcony present
Storage space
- Shed / storage
- Detached wooden storage
Parking
- Type of parking facilities
- Public parking
Photos 44
Floorplans 6
© 2001-2025 funda

















































