This house on Funda: https://www.funda.nl/en/detail/recreatie/heeg/huis-de-burd-25-b012/43138653/

De Burd 25-B0128621 JX HeegVerspreide huizen Heeg
€ 725,000 k.k.
Eye-catcherExclusieve recreatievilla aan open vaarwater in hartje Friesland!
Description
Prachtige, riet gedekte recreatievilla, direct aan open vaarwater, midden in het Friese merengebied. Een heerlijk familiehuis!
De woningen zijn gebouwd onder moderne architectuur, riet gedekt, v.v. forse raampartijen en aan de buitenzijde afgewerkt met zwart houten delen. Een zeer stijlvol en chique geheel, exclusief en zeer hoogwaardig afgewerkt. Gebouwd in 2023, dus hoogwaardig geïsoleerd en volledig gasloos. Er zijn 4 zonnepanelen aangebracht. Werkelijk in staat van nieuw en zo te betrekken!
Een echt familiehuis, met 2 badkamers en 4 slaapkamers. Het totale woonoppervlak bedraagt ca. 106 m². De gehele begane grond is v.v. een mooie marmoleum vloer met vloerverwarming en de verdieping wordt verwarmd middels airco units. De woning beschikt over fraai sanitair, een sauna en een mooie keukenopstelling met diverse inbouwapparatuur. Een zeer comfortabel geheel.
De woning is gelegen op een mooi perceel grond, kadastraal 327 m² eigen grond. Aan de straatzijde zijn 2 eigen parkeerplekken aangelegd. De tuin aan de zijkant is gelegen op het zuiden, de achtertuin is pal west georiënteerd. Er kan dus optimaal van de zon worden geprofiteerd. Aan de noordzijde is een flinke schuur/berging aangebouwd.
Aan de waterzijde is een eigen aanlegsteiger gerealiseerd, met zwemtrap. De totale oeverlengte bedraagt ca. 12 meter. Vanaf hier vaar je in enkele minuten naar het veilige zeilwater van de Weisleat en de Idzegeaster Poel. Een ideale leeromgeving voor beginnende zeilers. Tevens is dit gebied ook een eldorado voor kanoliefhebbers. Er zijn verschillende routes mogelijk om Oudega of Gaastmeer te bereiken. Via de beweegbare brug in het centrum van Heeg, zijn ook Heegermeer en De Fluessen snel en gemakkelijk bereikbaar. En voor de beginnende zeilers... de bekende zeilschool De Bird is op loopafstand gelegen!
Als eigenaar kunt u ervoor kiezen om uw villa (deels) te verhuren, dit is geheel vrijblijvend. De verhuur, marketing en administratie worden professioneel en zorgeloos verzorgd door recreatiebedrijf ‘Aan het Water’. Wanneer u besluit de woning, net als de huidige eigenaar, beschikbaar te stellen voor verhuur, kunt u zelf nog steeds maximaal 89 dagen per jaar gebruikmaken van de woning voor eigen recreatief gebruik.
De vraagprijs is kosten koper en exclusief btw. Indien u de woning net als de huidige eigenaar voor verhuur aanbiedt, is de btw in principe niet verschuldigd. U treedt dan fiscaal in de plaats van de verkoper voor de nog resterende periode of er start een nieuwe termijn van 10 jaar voor de herziening van de btw-aftrek. Laat u hierover goed informeren.
Besluit u de woning niet te verhuren, dan zal de koopsom worden verhoogd met het nog niet vervallen BTW bedrag. Let op: in dat geval betreft dit het resterende btw-bedrag dat nog niet eerder is afgedragen, aangezien de woning al deels in de btw-regeling is betrokken.
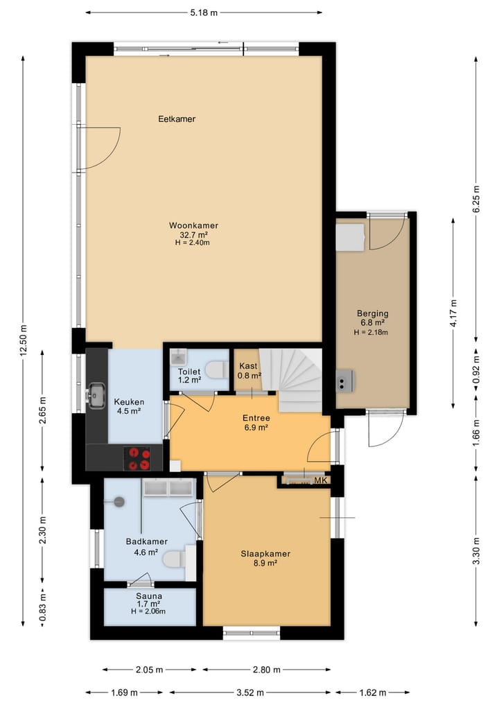
Indeling:
Hal/entree met toilet en meterkast, ouderslaapkamer met eigen badkamer v.v. inloopdouche, 2e toilet en wastafelmeubel met dubbele wastafel en een 2 persoons sauna, L-vormige living (ca. 37 m²) met brede glaspartij + schuifpui in zowel zuid- als westgevel, open keuken met flinke hoekopstelling en diverse inbouwapparatuur.
1e verdieping:
Overloop met 3e toilet, 2x bergruimte, 3 slaapkamers, badkamer met dakkapel en v.v. inloopdouche en wastafelmeubel.
Bijzonderheden:
* Bouwjaar 2023.
* Inhoud ca. 377 m³.
* Woonoppervlak ca. 103 m².
* Perceelgrootte 327 m².
* Volledig gas loos.
* Vloerverwarming begane grond en badkamer 1e verdieping.
* Verwarming middels luchtwarmtepomp.
* Oplaadpaal aanwezig t.b.v. elektrische auto.
* Inventaris in overleg ter overname.
* Kwartaal bijdrage € 508,00 Villapark Wetterhaghe.
* Rust, ruimte, water...
Features
Transfer of ownership
- Listed since
- Acceptance
- Available in consultation
- Asking price
- € 725,000 kosten koper
- Status
- Available
- Permanent occupancy
- Permanent occupancy is not allowed
Construction
- Kind of house
- Single-family home, detached residential property
- Building type
- Resale property
- Year of construction
- 2023
- Type of roof
- Gable roof covered with cane
Surface areas and volume
- Areas
- Living area
- 106 m²
- External storage space
- 7 m²
- Plot size
- 327 m²
- Volume in cubic meters
- 395 m³
Layout
- Number of rooms
- 5 rooms (4 bedrooms)
- Number of bath rooms
- 2 bathrooms and 2 separate toilets
- Bathroom facilities
- 2 double sinks, 2 walk-in showers, and toilet
- Number of stories
- 2 stories
- Facilities
- Mechanical ventilation, sliding door, and TV via cable
Energy
- Energy label
- A++
- Insulation
- Completely insulated
- Heating
- Partial floor heating
- Hot water
- Electrical boiler
Cadastral data
- HEEG H 1038
- Cadastral map
- Area
- 327 m²
- Ownership situation
- Full ownership
Exterior space
- Location
- Alongside a quiet road, along waterway, alongside waterfront, outside the built-up area, open location and unobstructed view
- Garden
- Back garden and side garden
- Back garden
- 60 m² (5.00 metre deep and 12.00 metre wide)
- Garden location
- Located at the west with rear access
Storage space
- Shed / storage
- Attached wooden storage
- Facilities
- Electricity, heating and running water
Parking
- Type of parking facilities
- Parking on private property
Photos 62
Floorplans 3
© 2001-2025 funda
































































