
Mastersein 12-14G8523 NK IdskenhuizenIdskenhuizen
€ 675,000 k.k.
Description
Uniek recreatief vastgoed in het hart van Friesland
?Luxe watervilla’s aan open vaarwater – rust, ruimte en vrijheid
Woning G is één van de elf exclusieve watervilla’s op een kleinschalig recreatieproject aan het Idskenhuistermeer, in het pittoreske Friese dorp Idskenhuizen. Deze vrijstaande woning is gelegen op een royaal perceel - 465m2 - met directe ligging aan open vaarwater en biedt daarmee een zeldzame kans voor wie op zoek is naar een tweede thuis op een unieke locatie in Nederland.
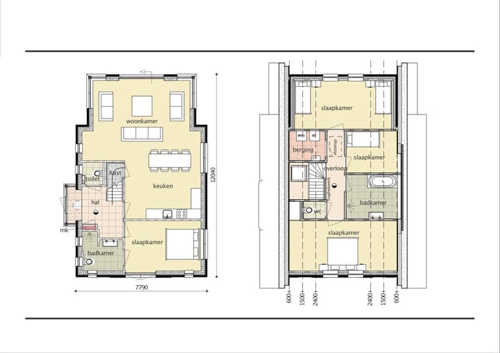
Deze vrijstaande recreatie villa biedt ruimte aan 8-personen en is opgeleverd in 2019. Deze woning is volledig ingericht voor comfortabel recreatief verblijf. De indeling is ruim en praktisch, met een open leefruimte, moderne keuken en vier volwaardige slaapkamers, waarvan één op de begane grond – toegankelijk voor minder validen. De luxe uitrusting omvat onder meer een buitensauna en een buitenkeuken, ideaal voor lange zomeravonden aan het water. De tuin is fraai aangelegd en biedt veel privacy, met directe ligging aan het water. Honden zijn toegestaan, waardoor ook huisdier eigenaren zich hier thuis zullen voelen.
Dankzij de privé-aanlegplaats is uw sloep of zeilboot altijd binnen handbereik. Vanuit de tuin vaart u direct het meer op, met verbinding naar de Friese meren, waaronder het Sneekermeer en de Langweerder Wielen.
De kern van watersportprovincie Friesland
Idskenhuizen is een authentiek Fries dorp, centraal gelegen tussen de bekende merengebieden. Vanuit uw villa vaart u direct het meer op, met toegang tot de Friese meren zoals de Langweerder Wielen, het Sneekermeer, het Heegermeer en de Fluessen. Het Idskenhuistermeer zelf is relatief ondiep en daardoor rustig – ideaal voor zeilen, vissen, suppen of gewoon ontspannen aan het water.
Dankzij de ligging aan open vaarwater en het kleinschalige karakter van de omgeving is dit project uitermate geschikt voor wie rust en natuur zoekt, zonder in te leveren op bereikbaarheid. Binnen 10 minuten rijdt u naar Lemmer of Sneek, met alle voorzieningen en horeca op korte afstand.
Nabije voorzieningen en recreatie?
Op slechts 2 kilometer afstand ligt Golfclub BurgGolf Sint Nicolaasga – een 18-holes golfbaan in een gevarieerd landschap van bos en weiland. In de directe omgeving vindt u diverse fiets- en wandelroutes, natuurgebieden zoals De Alde Feanen, en karakteristieke dorpen als Sloten en Langweer.
Rendement en gebruik combineren
Verhuur en beheer worden professioneel verzorgd door Idskenhuizen. Dit betekent zorgeloos eigendom met aantrekkelijk rendement, zonder dat u zich hoeft te bekommeren om onderhoud, planning of administratie. Verhuur is op dit park overigens niet verplicht ( huidige huren dienen gehonoreerd te worden ).
Let op: De koopsom is excl. BTW
Features
Transfer of ownership
- Listed since
- Acceptance
- Available in consultation
- Asking price
- € 675,000 kosten koper
- Status
- Available
- Permanent occupancy
- Permanent occupancy is not allowed
Construction
- Kind of house
- Villa, detached residential property (residential property on water)
- Building type
- Resale property
- Year of construction
- 2019
- Specific
- Furnished and with carpets and curtains
- Type of roof
- Gable roof covered with cane
Surface areas and volume
- Areas
- Living area
- 138 m²
- Other space inside the building
- 41 m²
- External storage space
- 12 m²
- Plot size
- 465 m²
- Volume in cubic meters
- 377 m³
Layout
- Number of rooms
- 7 rooms (4 bedrooms)
- Number of bath rooms
- 2 bathrooms and 2 separate toilets
- Bathroom facilities
- Sauna, 2 walk-in showers, 2 toilets, underfloor heating, 2 sinks, 2 washstands, and bath
- Number of stories
- 2 stories and a loft
- Facilities
- Skylight, mechanical ventilation, passive ventilation system, flue, sauna, sliding door, and TV via cable
Energy
- Energy label
- Not available
- Insulation
- Roof insulation, double glazing, energy efficient window, insulated walls, floor insulation and completely insulated
- Heating
- CH boiler and partial floor heating
- Hot water
- CH boiler
- CH boiler
- Remeha (gas-fired combination boiler from 2018, in ownership)
Cadastral data
- LANGWEER E 4900
- Cadastral map
- Area
- 465 m²
- Ownership situation
- Full ownership
Exterior space
- Location
- Along waterway, alongside waterfront, in centre and in recreation park
- Garden
- Surrounded by garden
Storage space
- Shed / storage
- Detached wooden storage
- Facilities
- Electricity
- Insulation
- No insulation
Garage
- Type of garage
- Parking place
Parking
- Type of parking facilities
- Parking on private property
Photos 46
© 2001-2026 funda













































