This house on Funda: https://www.funda.nl/en/detail/recreatie/markelo/huis-traasweg-5-m24/43985188/

Traasweg 5-M247475 PS MarkeloVerspreide huizen Markelo
€ 182,500 k.k.€ 155,000 k.k.
Description
Op Landgoed Kattenbergse Hoeve, in het prachtige buitengebied van Markelo, staat deze luxe welness lodge met eigen sauna, buitenspa en fraai aangelegde tuin. Een heerlijke plek om te ontspannen en te relaxen, omgeven door een bosrijk heuvellandschap met fraaie vergezichten.
De fraaie 4-persoons lodge is voorzien van grote ramen en schuifpuien, waardoor er niet alleen een mooie lichtinval is, maar waardoor ook de living doorloopt naar het ruime terras. Dit wordt extra versterkt door de (sier)gashaard voor zowel binnen als buiten. De lodge is gebouwd in 2021, voorzien van twee slaapkamers en twee badkamers en wordt aangeboden inclusief complete inventaris en is direct klaar voor de verhuur.
Voor de verhuur en het beheer sluit de koper van deze lodge een individuele overeenkomst met Mooi Twente Lodges Bezit & Beheer B.V., onder management van Landgoed Kattenbergse Hoeve. Zij zorgen voor de verhuur, het park, de receptie en de algemene faciliteiten. Een combinatie van verhuur en eigen gebruik is mogelijk.
Mooi Twente Lodges heeft een succesvol verhuur- en beheerconcept met uitstekende huurinkomsten.
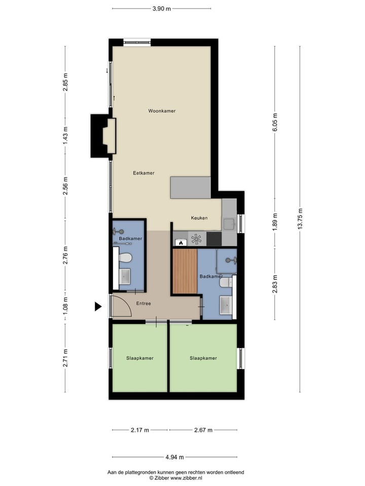
De lodge heeft de volgende indeling:
Entree - woonkamer met eetgedeelte en open keuken - twee slaapkamers - twee badkamers, waarvan één met sauna.
De keuken is compleet ingericht met de volgende apparatuur:
kookplaat gas op glas - afzuigkap - koel-vriescombinatie - combi magnetron en vaatwasser.
De lodge heeft 2 badkamers:
- badkamer 1 is voorzien van: inloopdouche met regendouche, wastafel, toilet, designradiator en Finse sauna met
glazen wand
- badkamer 2 is voorzien van: inloopdouche met regendouche, wastafel, toilet en designradiator
Landgoed Kattenbergse Hoeve:
Landgoed Kattenbergse Hoeve" is gelegen net buiten de bebouwde kom van het gezellige dorp Markelo, één van de oudste dorpen van Twente.
Het park is omgeven door weelderige groene velden, glooiende heuvels en uitgestrekte bossen, waardoor het een ideale bestemming is voor natuurliefhebbers en rustzoekers.
Op het park zijn diverse voorzieningen zoals een receptiegebouw, zwembad, bistro, cafetaria, oplaadpunt EV, kleine parkshop met veel streekproducten, babyroom, wasserette, speeltuin, fietsverhuur, recreatieruimte, sportveld, etc..
Het dorp Markelo is op korte afstand gelegen. Ook de historische Hanzesteden zoals Deventer en Zutphen zijn in ca. 25 minuten te bereiken. De bereikbaarheid is uitstekend op ca. 5 minuten rijden vanaf de autosnelweg A1.
Voor meer informatie over het park, kunt u ook kijken op: of
Omzetbelasting:
De koopsom van € 155.000,- k.k. is exclusief 21% BTW en overdrachtsbelasting (in 2026 is de overdrachtsbelasting 8%).
Omdat het chalet primair bedoeld is voor de verhuur is er de mogelijkheid om de BTW over de koopsom terug te vragen.
Bijzonderheden:
- kavel van ca. 409 m2 (appartementsrecht)
- gunstige ligging, omringd door veel groen
- De lodge is voorzien van een cv-installatie, (sier)gashaard en airco voor zowel koelen als verwarmen.
- de vloeren zijn uitgevoerd in pvc
- buitenwanden zijn onderhoudsarm uitgevoerd
- kunststof kozijnen
- 4 persoons jacuzzi op het terras (de waterlevering en reiniging van de jacuzzi wordt centraal geregeld middels
separate leidingen vanuit voorraadtank beheerder)
- 2 elektrisch bedienbare screens op de pergola
- overdekte, afsluitbare fietsenstalling bij de receptie met mogelijkheid voor het opladen van elektrische fietsen
- in de kelder van de receptie is er een wasruimte voor de gasten
Features
Transfer of ownership
- Original asking price
- € 182,500 vrij op naam
- Listed since
- Acceptance
- Available in consultation
- Asking price
- € 155,000 kosten koper
- Status
- Available
- Permanent occupancy
- Permanent occupancy is not allowed
Construction
- Kind of house
- Bungalow, detached residential property
- Building type
- Resale property
- Year of construction
- 2021
- Specific
- Furnished and with carpets and curtains
- Type of roof
- Flat roof covered with asphalt roofing
Surface areas and volume
- Areas
- Living area
- 63 m²
- Plot size
- 409 m²
- Volume in cubic meters
- 233 m³
Layout
- Number of rooms
- 3 rooms (2 bedrooms)
- Number of bath rooms
- 2 bathrooms
- Bathroom facilities
- Sauna, 2 walk-in showers, 2 toilets, and 2 sinks
- Number of stories
- 1 story
- Facilities
- Air conditioning, outdoor awning, and sauna
Energy
- Energy label
- C
- Insulation
- Roof insulation, double glazing, insulated walls and floor insulation
- Heating
- CH boiler and gas heater
- Hot water
- CH boiler
- CH boiler
- HR (gas-fired combination boiler from 2021, in ownership)
Cadastral data
- MARKELO P 1270
- Cadastral map
- Area
- 409 m²
- Ownership situation
- Full ownership
Exterior space
- Location
- Sheltered location, outside the built-up area, in wooded surroundings and in recreation park
- Garden
- Surrounded by garden
Parking
- Type of parking facilities
- Parking on private property
Photos 30
Floorplans
© 2001-2025 funda






























