
Verlengde Breevaart 3-0282811 LR ReeuwijkReeuwijkse Hout
€ 240,000 k.k.
Description
Zonnige 4-persoons recreatiewoning met terras aan het water.
Landal Vakantiepark De Reeuwijkse plassen
Middenin het Groene Hart nabij Gouda ligt dit gezellige vakantiepark. Dit park heeft 283 duurzaam gebouwde waterwoningen. Een natuurspeeleiland en centrumgebouw met receptie, overdekt zwembad en supermarkt. In restaurant Mercatu kunt u ontspannen terwijl van een smaakvolle lunch- of diner geniet. Het park is bovendien de ideale uitvalsbasis voor fiets-, wandel- en vaartochten. Maar ook voor een bezoek aan interessante steden als Amsterdam, Den Haag, Rotterdam en Gouda. In het nabijgelegen vogelpark Avifauna kunt u bovendien allerlei soorten vogels bewonderen.
De woning
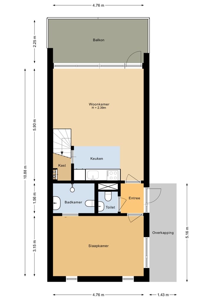
Deze moderne 4-persoons Waterwoning van het type 4CT, heeft een heerlijk terras aan het water. Er staat vanzelfsprekend comfortabel tuinmeubilair. Vanaf het terras loopt u de gezellige woonkamer in. Deze heeft een comfortabele moderne zithoek, een eethoek en een open keuken. De keuken is voorzien van moderne gemakken en inbouwapparatuur zoals een combimagnetron en vaatwasser.
Breed toegankelijk
Deze woning is breed toegankelijk en geschikt voor gasten die wat extra comfort wensen, slecht ter been zijn of een rollator of krukken gebruiken. De slaapkamer en badkamer met vlakke douche bevinden zich op de begane grond.
Het toegangspad naar de woning en de (eigen) parkeerplaats zijn verhard. In de slaapkamer op de begane grond staan twee bedden, te weten een 1-persoons boxspring en een hoog-laagbed met papegaai, softtopper. De kamer heeft een draaicirkel van minimaal 150cm en flatscreen-tv. Aangrenzende badkamer met vlakke douchehoek, een douchezitje en een verhoogd toilet met extra beugels.
Op de verdieping bevinden zich de tweede slaapkamer met heerlijke boxspringbedden, berging en de tweedebadkamer met ligbad, inloopdouche en wastafel.
-Deze woning is gebouwd in 2016 en geschikt voor gasten met een lichamelijke beperking (MIVA).
-Duurzaam gebouwde recreatiewoning
-In deze recreatiewoning zijn twee huisdieren toegestaan.
-Deze recreatiewoning heeft een zonnige ligging aan het water.
-Gelegen op erfpacht grond, jaarlijkse canon van toepassing.
Features
Transfer of ownership
- Listed since
- Acceptance
- Available in consultation
- Asking price
- € 240,000 kosten koper
- Status
- Available
- Permanent occupancy
- Permanent occupancy is not allowed
Construction
- Kind of house
- Single-family home, corner house
- Building type
- Resale property
- Year of construction
- 2016
- Specific
- Furnished and with carpets and curtains
- Type of roof
- Gable roof covered with roof tiles
Surface areas and volume
- Areas
- Living area
- 78 m²
- Other space inside the building
- 10 m²
- Exterior space attached to the building
- 20 m²
- Volume in cubic meters
- 168 m³
Layout
- Number of rooms
- 3 rooms (2 bedrooms)
- Number of bath rooms
- 2 bathrooms and 1 separate toilet
- Bathroom facilities
- 2 showers, toilet, 2 sinks, and bath
- Number of stories
- 2 stories
Energy
- Energy label
- A
- Heating
- CH boiler
- Hot water
- CH boiler
Cadastral data
- REEUWIJK K 991A
- Cadastral map
- Area
- 1 m²
- Ownership situation
- Long-term lease (end date of long-term lease: 04-09-2114)
- Fees
- € 1,004.00 per year
Exterior space
- Location
- Alongside waterfront and in recreation park
- Garden
- Sun terrace
- Balcony/roof terrace
- Balcony present
Parking
- Type of parking facilities
- Public parking
Photos 36
Floorplans 2
© 2001-2025 funda





































