This house on Funda: https://www.funda.nl/en/detail/recreatie/wedde/huis-paviljoenweg-2-h18/88458869/

Paviljoenweg 2-H189698 XX WeddeVerspreide huizen in de Weddermarke
€ 144,000 k.k.
Description
Recreëren aan water en bos!
De vrijstaande woning is gelegen op Villapark Weddermeer, in één van de mooiste gebieden van Groningen, genaamd Westerwolde. Door de prachtige ligging op een park met veel water en bos is deze woning zeer geliefd bij vissers, wandelaars en levensgenieters!
Weddermeer beschikt o.a. over een zwembad, restaurant, fietsverhuur en tijdens de vakantieperiodes een recreatieteam. Ook in de omgeving is genoeg vertier. Verken de omgeving per kano, ga langs de historische Vestingstad Bourtange, wandel tussen Dinosaurussen in Dinopark Tenaxx of geniet van wellness in Resort Fontana Bad Nieuweschans.
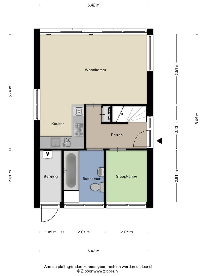
U komt via de voordeur aan de zijkant van de woning binnen in een ruime hal met aan de rechterzijde de trap naar de verdieping en de deur naar de woonkamer met open keuken.
De woonkamer ligt aan de waterzijde en biedt hierdoor een prachtig uitzicht in eigen tuin en over het water. De woonkamer heeft een zit- en eethoek en een open keuken, voorzien van een koelkast, gaskookplaat, vaatwasser en combimagnetron.
Aan de linkerzijde in de hal vindt u de deur naar de slaapkamer op de begane grond en de deur naar de badkamer met bad, toilet en wastafel.
Via de vaste trap in de hal komt u op de 2e verdieping, waar zich 2 slaapkamers bevinden, een sauna en een 2e badkamer. De slaapkamers zijn ingericht voor 5 personen (1 op de begane grond en 4 personen op de verdieping). Op een van de slaapkamers op de verdieping is een zonnebank aanwezig en een extra wastafel. De badkamer is voorzien van toilet, fontein en douchecabine.
Aan de buitenzijde van de woning ziet u aan de voorzijde een ruime tuin en is er een eigen parkeerplaats. Aan deze zijde is nog een berging met de Heteluchtverwarmingsunit en wasmachine aansluiting. De achterzijde van de woning heeft de hoofdtuin aan het water met eigen steiger en een terras bij de woning.
De woning is geheel voorzien van kunststof kozijnen, waardoor er weinig onderhoud aan de buitenzijde van de woning is, ook ideaal voor verhuur. De inventaris is inclusief in de koopsom, waardoor u direct de woning kunt benutten en/of verhuren.
Wedde ligt nabij het dorp Vlagtwedde waar men alles heeft wat men nodig heeft, er is een grote supermarkt, er zijn verschillende kleinere winkels en gezellige eetgelegenheden. Het gebied Westerwolde is uitermate geschikt voor het toerisme, zo ligt Bourtange op steenworp afstand, zijn er mooie fiets- en wandelroutes te volgen en vele oudheden te bekijken. Op het park, bij de receptie, maar zeker ook de makelaar kan u hier alles over vertellen.
Helaas is permanente bewoning op deze kavel niet toegestaan; de woning is uitsluitend te verhuren via de bedrijfsmatige exploitatie op het park of u kunt de woning behouden voor eigen gebruik (tweede woning, recreatief wonen).
De woning ligt langs de rand van het park en heeft de voorzieningen op loopafstand, zoals o.a. het hoofdgebouw, restaurant en zwembad. Het is een prachtig aangelegd park met veel voorzieningen in en rondom, zoals een zwemvijver, visvijver, snackbar, restaurant, tennisbaan en kanoverhuur. Hierdoor is de verhuur van een woning op dit park erg rendabel.
Het verwachtte rendement ligt rond de 4% op basis van verhuur gegevens van de huidige eigenaar, maar de verhuur is zeker niet verplicht! Ook is het mogelijk de woning te behouden als tweede woning voor uitsluitend eigen gebruik. Meer informatie hierover kunt u opvragen via ons makelaarskantoor.
Nieuwsgierig? U bent welkom voor een rondleiding!
Hieronder een kleine opsomming van bijzonderheden;
• Ruime woning aan het water gelegen
• Vrijstaand
• Grotendeels gerenoveerd
• Perceel eigendom
• Steiger
• Goed rendement mogelijk
• Kunststof kozijnen
Features
Transfer of ownership
- Original asking price
- € 160,000 kosten koper
- Listed since
- Acceptance
- Available in consultation
- Asking price
- € 144,000 kosten koper
- Status
- Available
- Permanent occupancy
- Permanent occupancy is not allowed
Construction
- Kind of house
- Bungalow, detached residential property
- Building type
- Resale property
- Year of construction
- 1992
- Specific
- Furnished
- Type of roof
- Gable roof covered with roof tiles
- Accessibility
- Accessible for the elderly
Surface areas and volume
- Areas
- Living area
- 70 m²
- Other space inside the building
- 3 m²
- Plot size
- 371 m²
- Volume in cubic meters
- 284 m³
Layout
- Number of rooms
- 4 rooms (3 bedrooms)
- Number of bath rooms
- 2 bathrooms
- Bathroom facilities
- Sauna, bath, 2 toilets, 2 sinks, and shower
- Number of stories
- 2 stories
- Facilities
- Sauna
Energy
- Energy label
- Not available
- Insulation
- Double glazing
- Heating
- Hot air heating
- Hot water
- CH boiler
Cadastral data
- WEDDE D 3614
- Cadastral map
- Area
- 371 m²
- Ownership situation
- Full ownership
Exterior space
- Location
- In recreation park
- Garden
- Surrounded by garden
Parking
- Type of parking facilities
- Parking on gated property and parking on private property
Photos 35
Floorplans 2
© 2001-2025 funda




































