Dit huis op Funda: https://www.funda.nl/detail/koop/den-haag/appartement-houtweg-70/43184370/

Houtweg 702514 BN Den HaagWillemspark
€ 475.000 k.k.
Omschrijving
Houtweg 70, 2514BN 's-Gravenhage - Buurtschap 2005.
Midden in het gezellige Centrum 2005 vindt u dit perfecte appartement.
Gelegen aan de mooie gracht van de Nieuwe Uitleg, vlakbij openbaar vervoer (tramlijn 9, bus 18, 22, 64) en het Centraal Station op loopafstand. Om de hoek van het Lange Voorhout en de gezellige restaurants van de Denneweg.
Het appartement is in goede staat en gelegen op de parterre, welke wordt bereikt door de met video bewaakte, mooie entree.
Omschrijving:
Gemeenschappelijk afgesloten entree, hal, tweede hal met toegang tot trappenhuis en lift.
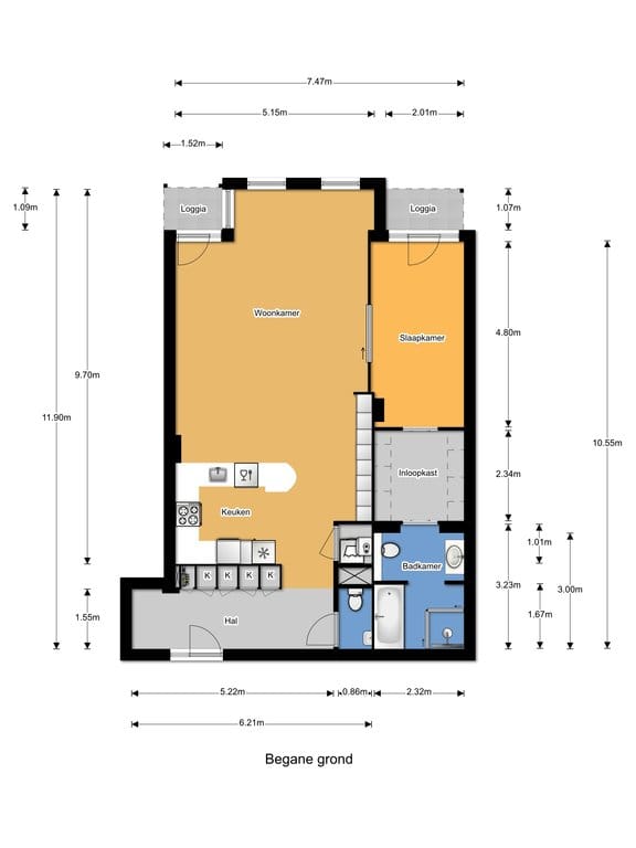
Het appartement is echter gelegen op de parterre. Via een kleine trap bereikt men het appartement met ruime entree met garderobe. Royale woon/eetkamer (ca. 50 m2) met twee kleine balkons aan de voorzijde.
Mooie hoekkeuken met apparatuur. Aansluitend slaapkamer (ca. 9,64 m2) welke van de woonkamer wordt gescheiden door een mooie volledig in stijl gemaakte schuif separatie.
Deze slaapkamer heeft via deurtjes toegang tot een inloopkast naar de moderne badkamer voorzien van douche, bad, wc en wastafel. Aparte wc bij ingang appartement. Kast met CV ketel voor warmwatervoorziening. Opstelplaats voor een wasmachine. Gehele appartement is voorzien van een goede laminaatvloer.
Kelderberging aanwezig alsook een gemeenschappelijke fietsenberging met een eigen toegang.
Bijzonderheden:
- eigen grond
- stadsverwarming
- actieve Vereniging van Eigenaars
- ouderdomsclausule van toepassing.
- beschermd stadsgezicht Centrum Den Haag
- openbaar vervoer (tramlijn 9, bus 18, 22, 64) zeer nabij.
- kunststof kozijnen met dubbel glas
- zonder opknappen te betrekken
- bouwjaar 1984.
- woonoppervlakte ca. 85,84 m2.
- VVE Euro 295,-- per maand INCLUSIEF verwarming.
- Energielabel C.
ENGLISH:
In the middle of the happening Centrum 2005, perfect apartment/pied-à-terre. Situated on the beautiful Canal of the Nieuwe Uitleg, close to Central Station and public transportation.
The Lange Voorhout and the shops and restaurants of the Denneweg are around the corner.
It is a well maintained ground floor apartment which can be reached via the grand entrance with security camera.
Communal, closed entrance, hall, 2nd hall with access to the stairs and elevator.
The apartment is on the ground floor. Via small stairs the apartment can be reached.
Spacious entrance with cloak area.
Large living/dining room (approx. 85,84 m2) with 2 small balconies at the front.
Beautiful corner kitchen with appliances. Bedroom (approx. 9,64 m2) which is separated by custom made sliding separation doors from the living room.
This bedroom has access to the walk-in closet to the bathroom with shower, bath, toilet and wash basin.
Separate toilet in the hallway.
Closet with central heating system. Connection for washing machine. The entire apartment has laminate floors.
The apartment also has a cellar storage and communal bicycle storage.
Interested in this apartment? Bring your own NVM real estate agent. They will save you time, money and worries.
Addresses of NVM real estate agents can be found on Funda.
Appointments: 0626112026
Kenmerken
Overdracht
- Aangeboden sinds
- Aanvaarding
- Per direct beschikbaar
- Vraagprijs
- € 475.000 kosten koper
- Vraagprijs per m²
- € 5.523
- Status
- Beschikbaar
- Bijdrage VvE
- € 295,00 per maand
Bouw
- Soort appartement
- Portiekflat (appartement)
- Soort bouw
- Bestaande bouw
- Bouwjaar
- 1982
- Toegankelijkheid
- Toegankelijk voor ouderen
Oppervlakten en inhoud
- Gebruiksoppervlakten
- Wonen
- 86 m²
- Gebouwgebonden buitenruimte
- 4 m²
- Externe bergruimte
- 6 m²
- Inhoud
- 276 m³
Indeling
- Aantal kamers
- 2 kamers (1 slaapkamer)
- Aantal badkamers
- 1 badkamer en 1 apart toilet
- Badkamervoorzieningen
- Douche, ligbad, en toilet
- Aantal woonlagen
- 1 woonlaag
- Voorzieningen
- Lift, mechanische ventilatie, en TV kabel
Energie
- Energielabel
- C
- Isolatie
- Dubbel glas
- Verwarming
- Stadsverwarming
- Warm water
- Centrale voorziening
Kadastrale gegevens
- 'S-GRAVENHAGE P 9934
- Kadastrale kaart
- Eigendomssituatie
- Volle eigendom
Buitenruimte
- Ligging
- Aan rustige weg, aan water en in centrum
- Balkon/dakterras
- Balkon aanwezig
Bergruimte
- Schuur/berging
- Inpandig
- Voorzieningen
- Elektra
Parkeergelegenheid
- Soort parkeergelegenheid
- Betaald parkeren, parkeergarage en parkeervergunningen
VvE checklist
- Inschrijving KvK
- Ja
- Jaarlijkse vergadering
- Ja
- Periodieke bijdrage
- Ja (€ 295,00 per maand)
- Reservefonds aanwezig
- Ja
- Onderhoudsplan
- Ja
- Opstalverzekering
- Ja
Foto's 24
Plattegronden 2
© 2001-2025 funda

























