
Nieuwe Rijn 105-B2312 JN LeidenHavenwijk-Zuid
€ 505.000 k.k.
Omschrijving
Het monumentale appartement is gelegen binnen de singels van Leiden en kijkt uit over de gracht.
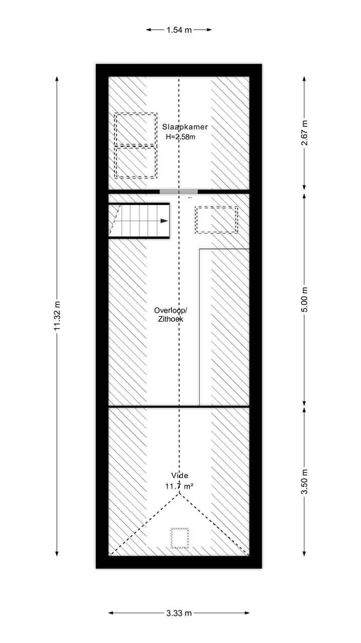
Het is een 3 kamer appartement met 2 slaapkamers en een extra Vide ruimte. Het plafond is ruim 4 meter hoog voor een extra ruim gevoel.
De keuken heeft een magnetron oven combi. De badkamer is voorzien van een douche en bad.
De slaapkamer gelegen onder het dat heeft een groot raam dat volledig open geschoven kan worden.
Er is een gemeenschappelijke entree en de kosten voor de VVE bedragen 150 euro per maand. Daarnaast is er een gemeenschappelijke fietsruimte die vanuit buiten te bereiken is.
Kenmerken
Overdracht
- Aangeboden sinds
- Aanvaarding
- In overleg
- Vraagprijs
- € 505.000 kosten koper
- Vraagprijs per m²
- € 7.113
- Status
- Beschikbaar
- Bijdrage VvE
- € 150,00 per maand
Bouw
- Soort appartement
- Bovenwoning (appartement)
- Soort bouw
- Bestaande bouw
- Bouwjaar
- 1670
- Specifiek
- Monument
Oppervlakten en inhoud
- Gebruiksoppervlakten
- Wonen
- 71 m²
- Inhoud
- 250 m³
Indeling
- Aantal kamers
- 3 kamers (2 slaapkamers)
- Aantal badkamers
- 1 badkamer en 1 apart toilet
- Badkamervoorzieningen
- Douche, ligbad, en wastafel
- Aantal woonlagen
- 2 woonlagen
Energie
- Energielabel
- Niet verplicht
- Isolatie
- Dakisolatie en gedeeltelijk dubbel glas
- Verwarming
- Cv-ketel
- Warm water
- Cv-ketel
- Cv-ketel
- Combiketel
Kadastrale gegevens
- LEIDEN C 2422
- Kadastrale kaart
- Eigendomssituatie
- Volle eigendom
Buitenruimte
- Ligging
- In centrum
VvE checklist
- Inschrijving KvK
- Ja
- Jaarlijkse vergadering
- Ja
- Periodieke bijdrage
- Ja (€ 150,00 per maand)
- Reservefonds aanwezig
- Nee
- Onderhoudsplan
- Ja
- Opstalverzekering
- Ja
Foto's 19
© 2001-2025 funda


















